Folklands says ..
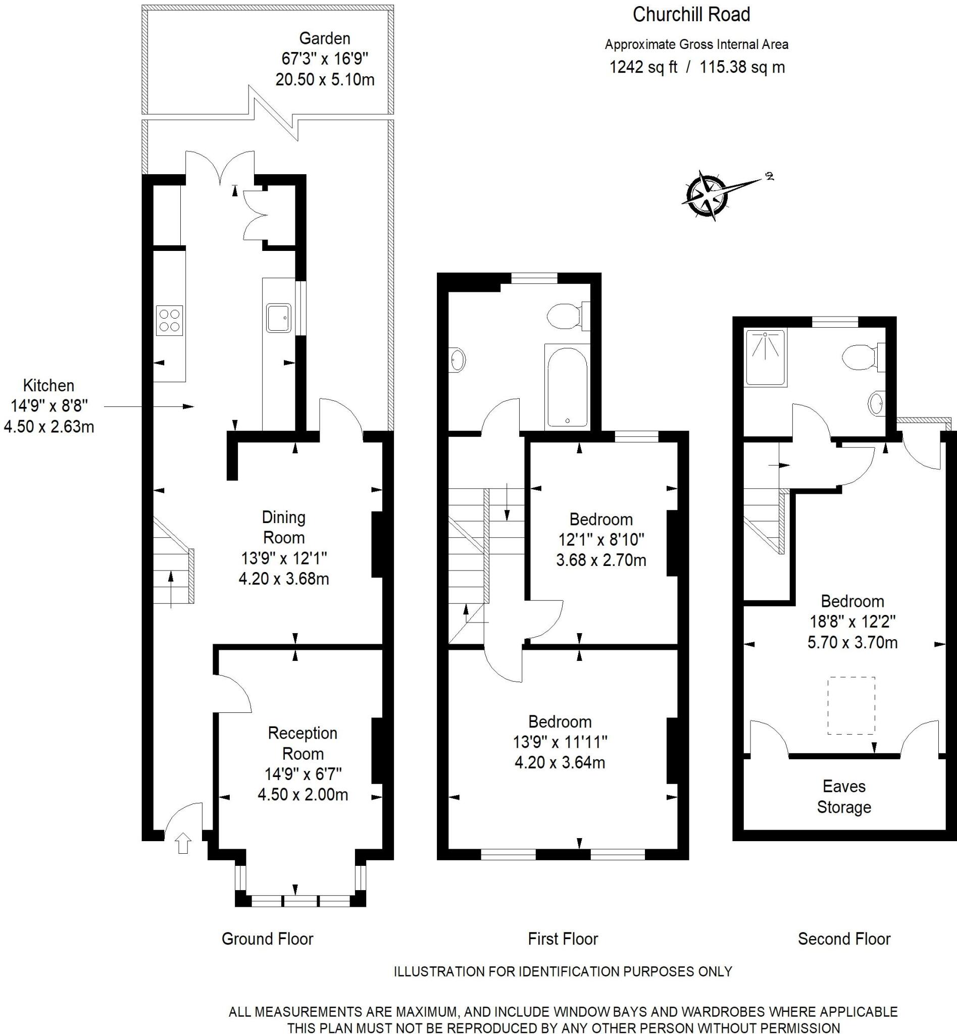
A smartly presented three double bedroom semi-detached house situated within this quiet residential road, conveniently located only 0.3 miles from Purley Oaks train station and 0.4 miles from Sanderstead train station, which provide direct services to both London Bridge & Victoria stations. H...
Property Oracle says ..
This three-bedroom semi-detached house is located on Churchill Road in South Croydon, Greater London. The property benefits from being close to several schools, including Purley Oaks Primary School (rated Good by Ofsted) and Harris Academy Purley (rated Outstanding), and is also conveniently located near several train stations, such as Purley Oaks and Sanderstead. The house itself is in relatively good condition, with some minor cosmetic updates potentially needed. It features a garden, although it is relatively small. The list price of £485,000 seems slightly high compared to the average price of £409,864 for the area. However, considering the property’s location, condition, and the presence of a garden, the price may still be considered reasonable for some buyers. The average price per square foot in the area is £456, and this property is slightly above average in terms of size at 1,241.94 sqft. More information on the plot size would allow for a more comprehensive analysis of the land value.
Therefore, we give this property 6 / 10. *Disclaimer: This is our option and does constitute a recommendation or financial advice. Do your own research. *
- Price
- 6
- Condition
- 7
- Location
- 8
- Land
- 5
- Bedrooms
- 3
- Bathrooms
- 2
- Sqft (est)
- 1,241.94
The heatmap indicates the level of crime in the area. The color of the heatmap indicates the crime severity and recency.
Metrics Year-on-Year
- Average area value
- 428,077.00 £Increased by 11.32 %
- Est sale value
- 879,293.52 £Increased by 124.76 %
- Average area rental value
- 1,801.00 £/moIncreased by 9.82 %
- Est letting value
- 2,483.88 £/moIncreased by 100.00 %
- Est rental Yield
- 5.05 %Decreased by 1.37 %
- Crime Rate
- 4.00 %Unchanged by 0.00 %
Agent Activity
Folklands created the listing.
Nearby Schools
| Name | Type | Ofsted | Distance |
|---|---|---|---|
| Purley Oaks Primary School | Community School | Good | 0.56 KM |
| Purley Oaks Children'S Centre | Children's Centre Linked Site | 0.57 KM | |
| Regina Coeli Catholic Primary School | Voluntary Aided School | Good | 0.78 KM |
| St Giles School | Community Special School | Good | 0.80 KM |
| Harris Academy Purley | Academy Sponsor Led | Outstanding | 0.87 KM |
Images
Nearby Streets
| Name | Average Price | Average Sqft | Distance |
|---|---|---|---|
| Allenby Avenue | £ 0 | 0 | 0.00 KM |
| Magdala Road | £ 0 | 0 | 0.00 KM |
| Joshua Close | £ 0 | 0 | 0.00 KM |
| White Hill | £ 0 | 0 | 0.00 KM |
| Heath Close | £ 390,000 | 0 | 0.00 KM |
Nearby Transport
| Name | NLC | TLC | Distance |
|---|---|---|---|
| Purley Oaks | 5430 | PUO | 0.50 KM |
| Sanderstead | 5433 | SNR | 0.84 KM |
| South Croydon | 5410 | SCY | 1.54 KM |
| Riddlesdown | 5432 | RDD | 2.08 KM |
| Purley | 5379 | PUR | 2.11 KM |
Nearby Listings
| Address | Price | Type | Score | Distance |
|---|---|---|---|---|
| Churchill Road, South Croydon | £ 465,000 | BUY | Unknown | 0.00 KM |
| Churchill Road, South Croydon | £ 485,000 | BUY | 6 / 10 | 0.00 KM |
| Churchill Road, South Croydon | £ 435,000 | BUY | Unknown | 0.02 KM |
| Churchill Road, South Croydon | £ 430,000 | BUY | 7 / 10 | 0.03 KM |
| Churchill Road, South Croydon | £ 450,000 | BUY | 7 / 10 | 0.06 KM |
Nearby Properties
| Address | Price | Distance |
|---|---|---|
| 107 Churchill Road | £ 210,000 | 0.05 KM |
| 79 Churchill Road | £ 450,000 | 0.05 KM |
| 71 Churchill Road | £ 390,000 | 0.05 KM |
| 103 Churchill Road | £ 346,000 | 0.05 KM |
| 83 Churchill Road | £ 370,000 | 0.05 KM |