Griffin Lodge, Bellamour Way, Colton, Rugeley, Staffordshire
By Avocado Property
£ 480,000
Reviews
3 out of 5 stars
Avocado Property says ..
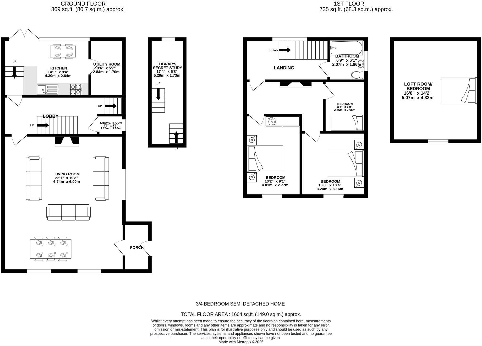
An exceptional opportunity to own part of one of Staffordshire’s most historic homes. Griffin Lodge is the west wing of the grand and iconic Colton House, a Grade II* listed building steeped in history and architectural beauty.
Property Oracle says ..
Griffin Lodge is a substantial property situated in Colton, Staffordshire. The location benefits from being close to a highly-rated primary school (The St. Mary’s Cofe Primary School) and is within reasonable commuting distance of Rugeley Trent Valley train station. The property itself appears to be a period property, well-maintained and offering considerable space. The images show a large garden, adding to its appeal. While the list price is higher than the average for the area, the size of the property and its features suggest it may represent reasonable value for money, particularly in comparison to other properties in the immediate vicinity. However, a lack of precise details regarding the property’s condition and the absence of square footage data for comparable properties limit the accuracy of this analysis.
Therefore, we give this property 7 / 10. *Disclaimer: This is our option and does constitute a recommendation or financial advice. Do your own research. *
- Price
- 7
- Condition
- 8
- Location
- 8
- Land
- 7
- Bedrooms
- 4
- Bathrooms
- 2
- Sqft (est)
- 1,251.15
- Lot (est)
- 1,604.00
The heatmap indicates the level of crime in the area. The color of the heatmap indicates the crime severity and recency.
Metrics Year-on-Year
- Average area value
- 65,000.00 £Decreased by 67.00 %
- Est sale value
- 153,891.45 £Decreased by 39.11 %
- Average area rental value
- 725.00 £/moIncreased by 21.44 %
- Est letting value
- 1,251.15 £/mo
- Est rental Yield
- 13.38 %Increased by 267.58 %
- Crime Rate
- 0.00 %
Agent Activity
Avocado Property created the listing.
Nearby Schools
| Name | Type | Ofsted | Distance |
|---|---|---|---|
| The St. Mary'S Cofe Primary School | Academy Converter | Good | 0.24 KM |
| Chancel Primary School | Community School | Good | 2.15 KM |
| Forest Hills Primary School | Academy Sponsor Led | 2.67 KM | |
| Churchfield Cofe Primary Academy | Academy Converter | Requires improvement | 3.00 KM |
| St Joseph'S Catholic Primary School | Voluntary Aided School | Good | 3.35 KM |
Images
Nearby Streets
| Name | Average Price | Average Sqft | Distance |
|---|---|---|---|
| Heathway | £ 82,500 | 0 | 0.00 KM |
| Bellamour Lane | £ 0 | 0 | 0.00 KM |
| Moor Lane | £ 0 | 0 | 0.00 KM |
| Park Lane | £ 0 | 0 | 0.00 KM |
| Deanery Close | £ 360,000 | 0 | 0.00 KM |
Nearby Transport
| Name | NLC | TLC | Distance |
|---|---|---|---|
| Rugeley Trent Valley | 1084 | RGL | 1.38 KM |
| Rugeley Town | 1135 | RGT | 3.22 KM |
Nearby Listings
| Address | Price | Type | Score | Distance |
|---|---|---|---|---|
| Griffin Lodge, Bellamour Way, Colton, Rugeley, Staffordshire | £ 480,000 | BUY | 7 / 10 | 0.00 KM |
| Malt House Farm, Bellamour Way, Colton, | £ 800,000 | BUY | 7 / 10 | 0.00 KM |
| Martlin Lane, Colton, Rugeley | £ 350,000 | BUY | 7 / 10 | 0.31 KM |
| High Street, Colton | £ 335,000 | BUY | Unknown | 0.54 KM |
| Colton Cottage, Colton, Staffordshire, WS15 | £ 1,425,000 | BUY | 8 / 10 | 0.54 KM |
Nearby Properties
| Address | Price | Distance |
|---|---|---|
| Orchard House | £ 465,000 | 0.12 KM |
| Malt House Farm | £ 600,000 | 0.12 KM |
| Brackendale | £ 560,000 | 0.12 KM |
| Greyhound Cottage | £ 180,000 | 0.12 KM |
| The Croft | £ 640,000 | 0.16 KM |