Hunters says ..
Welcome to this charming two-bedroom ground floor apartment, an ideal opportunity for first-time buyers or buy-to-let investors. Set within a well-maintained building, this accommodation offers a comfortable and convenient lifestyle.
Property Oracle says ..
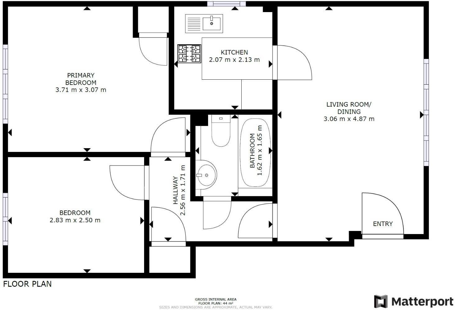
This property is a 2-bedroom apartment located in Bolton Grange, Yeadon, Leeds. The apartment is in good condition and benefits from a modern kitchen and bathroom. While the plot size is small, the location is convenient with nearby schools and transportation links. The list price of £140,000 is lower than the average price for the area, but this is likely due to the smaller size of the apartment and the lack of outdoor space. Compared to similar properties in the area, the price seems reasonable.
Therefore, we give this property 6 / 10. *Disclaimer: This is our option and does constitute a recommendation or financial advice. Do your own research. *
- Price
- 7
- Condition
- 8
- Location
- 7
- Land
- 2
- Bedrooms
- 2
- Bathrooms
- 1
- Sqft (est)
- 483.19
The heatmap indicates the level of crime in the area. The color of the heatmap indicates the crime severity and recency.
Metrics Year-on-Year
- Average area value
- 353,462.00 £Increased by 18.49 %
- Est sale value
- 147,372.95 £Decreased by 8.41 %
- Average area rental value
- 1,110.00 £/moDecreased by 0.09 %
- Est letting value
- 0.00 £/moDecreased by 100.00 %
- Est rental Yield
- 3.77 %Decreased by 15.66 %
- Crime Rate
- 13.00 %Unchanged by 0.00 %
Agent Activity
Hunters created the listing.
Nearby Schools
| Name | Type | Ofsted | Distance |
|---|---|---|---|
| Rufford Park Primary School | Foundation School | Good | 0.39 KM |
| Benton Park School | Community School | Good | 0.92 KM |
| Rawdon Littlemoor Primary School | Foundation School | Good | 1.50 KM |
| Rawdon St Peter'S Church Of England Voluntary Controlled Primary School | Voluntary Controlled School | Good | 1.64 KM |
| Aireborough Children'S Centre | Children's Centre | 1.66 KM |
Images
Nearby Streets
| Name | Average Price | Average Sqft | Distance |
|---|---|---|---|
| Grange Crescent | £ 299,950 | 0 | 0.00 KM |
| Alma Street | £ 0 | 0 | 0.00 KM |
| Club Row | £ 0 | 0 | 0.00 KM |
| Castle Grange | £ 150,000 | 0 | 0.00 KM |
| Hanover House | £ 0 | 0 | 0.00 KM |
Nearby Transport
| Name | NLC | TLC | Distance |
|---|---|---|---|
| Apperley Bridge | 8562 | APY | 3.90 KM |
| Guiseley | 8567 | GSY | 4.35 KM |
| Horsforth | 8499 | HRS | 5.55 KM |
| New Pudsey | 8506 | NPD | 6.55 KM |
| Menston | 8574 | MNN | 7.14 KM |
Nearby Listings
| Address | Price | Type | Score | Distance |
|---|---|---|---|---|
| Bolton Grange, Yeadon, Leeds | £ 140,000 | BUY | 6 / 10 | 0.00 KM |
| Bolton Grange, Yeadon, Leeds | £ 120,000 | BUY | 6 / 10 | 0.03 KM |
| Bolton Grange, Yeadon, Leeds | £ 130,000 | BUY | 6 / 10 | 0.04 KM |
| East View, Yeadon, Leeds, West Yorkshire | £ 550,000 | BUY | 7 / 10 | 0.08 KM |
| East View, Yeadon, Leeds | £ 225,000 | BUY | 6 / 10 | 0.12 KM |
Nearby Properties
| Address | Price | Distance |
|---|---|---|
| 1 Bolton Manor | £ 200,000 | 0.03 KM |
| 6 Bolton Grange | £ 125,000 | 0.03 KM |
| 7 Bolton Manor | £ 158,000 | 0.03 KM |
| 16 Bolton Grange | £ 98,250 | 0.03 KM |
| 12 Bolton Grange | £ 115,000 | 0.03 KM |