NO
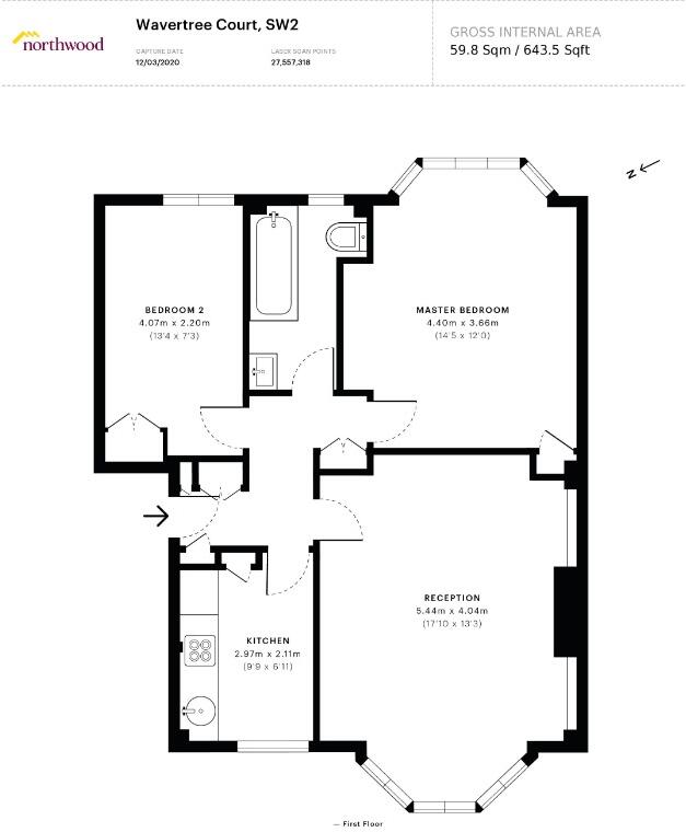
Wavertree Court, Streatham Hill, London, SW2
By Northwood Sales
£ 350,000
Reviews
3 out of 5 stars
Northwood Sales says ..
A really excellent spacious 2 bedroom flat on the first floor of this iconic 1930's development. The property is in excellent condition throughout. and benefits from the security and convenience of having the Porter's office directly below on the ground floor.
Property Oracle says ..
Therefore, we give this property 7 / 10. *Disclaimer: This is our option and does constitute a recommendation or financial advice. Do your own research. *
- Price
- 8
- Condition
- 6
- Location
- 7
- Land
- 7
- Bedrooms
- 2
- Bathrooms
- 1
- Sqft (est)
- 643.68
The heatmap indicates the level of crime in the area. The color of the heatmap indicates the crime severity and recency.
Metrics Year-on-Year
- Average area value
- 628,333.00 £Decreased by 11.41 %
- Est sale value
- 530,392.32 £Increased by 18.39 %
- Average area rental value
- 2,316.00 £/moDecreased by 1.28 %
- Est letting value
- 1,931.04 £/moIncreased by 50.00 %
- Est rental Yield
- 4.42 %Increased by 11.34 %
- Crime Rate
- 9.00 %Unchanged by 0.00 %
from 709,221.00 £
from 448,001.28 £
from 2,346.00 £/mo
from 1,287.36 £/mo
from 3.97 %
from 9.00 %
Agent Activity
Northwood Sales created the listing.
Nearby Schools
| Name | Type | Ofsted | Distance |
|---|---|---|---|
| Christ Church, Streatham Church Of England Primary School | Academy Converter | 0.48 KM | |
| The Orchard School | Voluntary Aided School | Outstanding | 0.57 KM |
| The Livity School | Community Special School | Good | 0.58 KM |
| Richard Atkins Primary School | Community School | Good | 0.78 KM |
| Holmewood Nursery School | Local Authority Nursery School | Outstanding | 0.83 KM |
Images
Nearby Streets
| Name | Average Price | Average Sqft | Distance |
|---|---|---|---|
| Claremont Close | £ 400,000 | 0 | 0.00 KM |
| Leigham Court Road | £ 0 | 0 | 0.00 KM |
| Hartwell Close | £ 0 | 0 | 0.00 KM |
| Cherry Tree Drive | £ 0 | 0 | 0.00 KM |
| New Park Road | £ 0 | 0 | 0.00 KM |
Nearby Transport
| Name | NLC | TLC | Distance |
|---|---|---|---|
| Streatham Hill | 5435 | SRH | 0.48 KM |
| Streatham | 5383 | STE | 1.92 KM |
| Tulse Hill | 5390 | TUH | 2.15 KM |
| West Norwood | 5438 | WNW | 2.52 KM |
| Brixton | 5081 | BRX | 2.68 KM |
Nearby Listings
| Address | Price | Type | Score | Distance |
|---|---|---|---|---|
| Wavertree Court, Streatham Hill, London, SW2 | £ 350,000 | BUY | 7 / 10 | 0.00 KM |
| Streatham Hill, London, SW2 | £ 325,000 | BUY | 5 / 10 | 0.01 KM |
| Streatham Hill, London | £ 375,000 | BUY | 7 / 10 | 0.01 KM |
| Streatham Hill, Streatham Hill | £ 350,000 | BUY | 7 / 10 | 0.01 KM |
| Streatham Hill, Streatham Hill | £ 300,000 | BUY | 7 / 10 | 0.01 KM |
Nearby Properties
| Address | Price | Distance |
|---|---|---|
| 31 Wyatt Park Road | £ 700,000 | 0.12 KM |
| 13 Wyatt Park Road | £ 360,000 | 0.12 KM |
| 1b Wyatt Park Road | £ 335,000 | 0.12 KM |
| 25 Wyatt Park Road | £ 870,100 | 0.12 KM |
| 37 Wyatt Park Road | £ 770,000 | 0.12 KM |