Yopa says ..
A bay fronted semi detached property situated in the heart of Oldbury close to various amenities. This three bedroom property is perfect for a couple or family and comes with off road parking, a modern kitchen/breakfast room, and a fantastic large garden. Viewing highly recommended.
Property Oracle says ..
The property is a semi-detached house located on Clay Lane in Oldbury, West Midlands. It features three bedrooms and one bathroom.
The location benefits from nearby transportation options, including Langley Green train station, and several schools, including The Orchard School which has an “Outstanding” Ofsted rating.
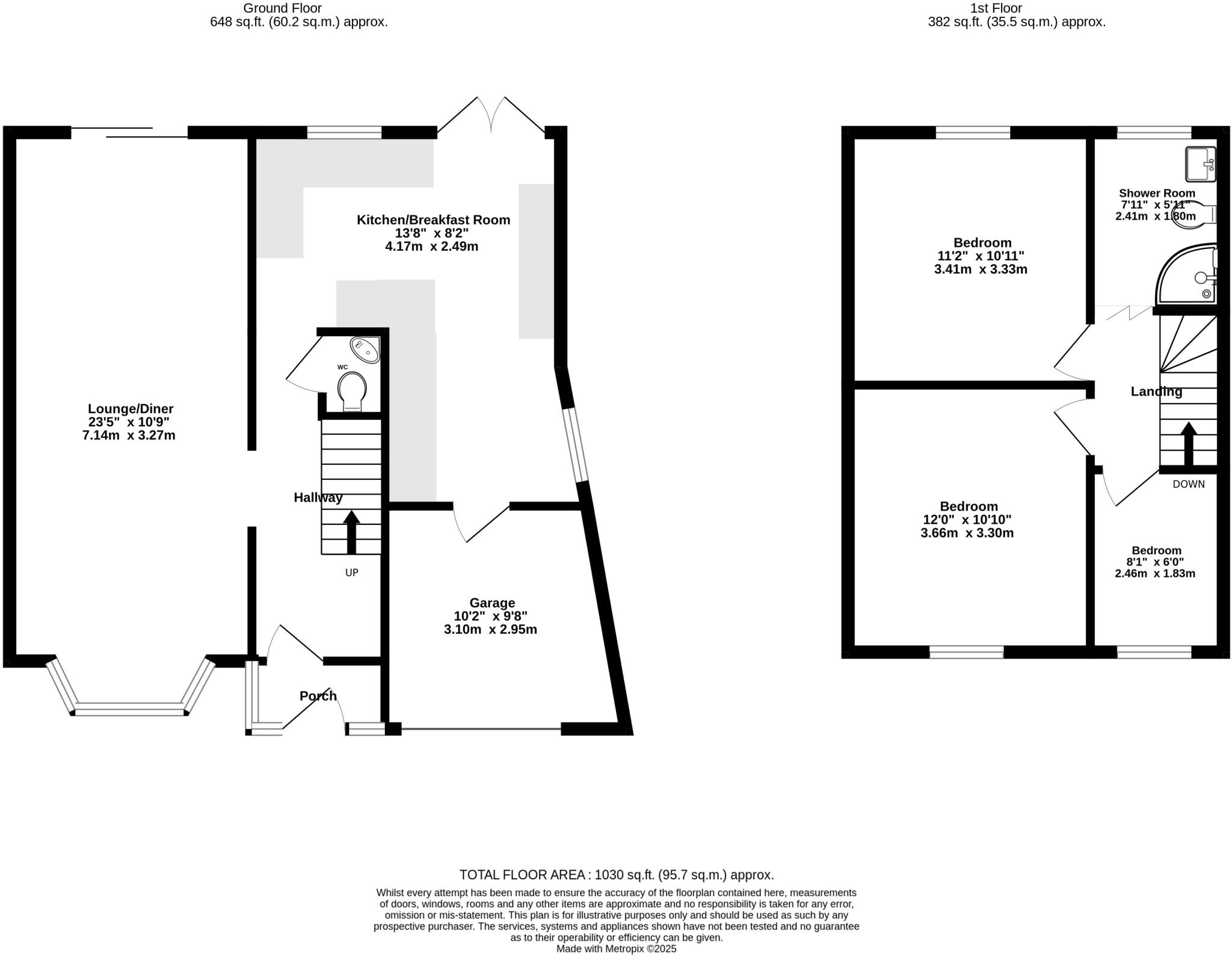
Based on the images, the property appears to be in good condition, with a modern kitchen and bathroom. The property also benefits from a garage.
The property has a good-sized garden with a patio area.
The list price of £275,000 is slightly above the average price for the area (£270,000). However, the average square footage in the area is 743, and the square footage for this property is not provided. Therefore, it is difficult to determine if the price is reasonable based on square footage alone. Considering the condition and features of the property, the price seems reasonable.
Therefore, we give this property 7 / 10. *Disclaimer: This is our option and does constitute a recommendation or financial advice. Do your own research. *
- Price
- 7
- Condition
- 8
- Location
- 7
- Land
- 7
- Bedrooms
- 3
- Bathrooms
- 1
- Sqft (est)
- 809.01
The heatmap indicates the level of crime in the area. The color of the heatmap indicates the crime severity and recency.
Metrics Year-on-Year
- Average area value
- 270,000.00 £Increased by 41.58 %
- Est sale value
- 293,670.63 £Increased by 61.33 %
- Average area rental value
- 936.00 £/moDecreased by 3.51 %
- Est letting value
- 809.01 £/moUnchanged by 0.00 %
- Est rental Yield
- 4.16 %Decreased by 31.80 %
- Crime Rate
- 4.00 %Unchanged by 0.00 %
Agent Activity
Yopa created the listing.
Nearby Schools
| Name | Type | Ofsted | Distance |
|---|---|---|---|
| Al Khair Primary School | Other Independent School | Inadequate | 0.20 KM |
| The Orchard School | Community Special School | Outstanding | 0.42 KM |
| Langley Primary School | Community School | Good | 0.42 KM |
| Causeway Green Primary School | Community School | Good | 0.93 KM |
| Oldbury Academy | Academy Converter | Requires improvement | 1.00 KM |
Images
Nearby Streets
| Name | Average Price | Average Sqft | Distance |
|---|---|---|---|
| Sycamore Road | £ 237,990 | 0 | 0.00 KM |
| Woodfield Avenue | £ 0 | 0 | 0.00 KM |
| Uncle Ben's Close | £ 0 | 0 | 0.00 KM |
| Oak Green Way | £ 0 | 0 | 0.00 KM |
| Broad Street | £ 0 | 0 | 0.00 KM |
Nearby Transport
| Name | NLC | TLC | Distance |
|---|---|---|---|
| Langley Green | 4607 | LGG | 1.22 KM |
| Rowley Regis | 4606 | ROW | 2.19 KM |
| Sandwell And Dudley | 1149 | SAD | 2.31 KM |
| Smethwick Galton Bridge | 1114 | SGB | 4.04 KM |
| Smethwick Rolfe Street | 1150 | SMR | 4.92 KM |
Nearby Listings
| Address | Price | Type | Score | Distance |
|---|---|---|---|---|
| Clay Lane, Oldbury, B69 | £ 275,000 | BUY | 7 / 10 | 0.00 KM |
| Clay Lane, Oldbury, West Midlands, B69 | £ 399,950 | BUY | 5 / 10 | 0.01 KM |
| Sycamore Road, Oldbury, B69 | £ 255,000 | BUY | 7 / 10 | 0.04 KM |
| Clay Lane, Oldbury | £ 180,000 | BUY | 6 / 10 | 0.06 KM |
| Clay Lane, Oldbury | £ 260,000 | BUY | 6 / 10 | 0.09 KM |
Nearby Properties
| Address | Price | Distance |
|---|---|---|
| 54 Clay Lane | £ 116,000 | 0.01 KM |
| 18 Clay Lane | £ 95,000 | 0.01 KM |
| 52 Clay Lane | £ 185,000 | 0.01 KM |
| 70 Clay Lane | £ 84,995 | 0.01 KM |
| 46 Clay Lane | £ 107,000 | 0.01 KM |