Hoskins Street, Newport, NP20
By Number One Real Estate
£ 150,000
Reviews
2 out of 5 stars
Number One Real Estate says ..
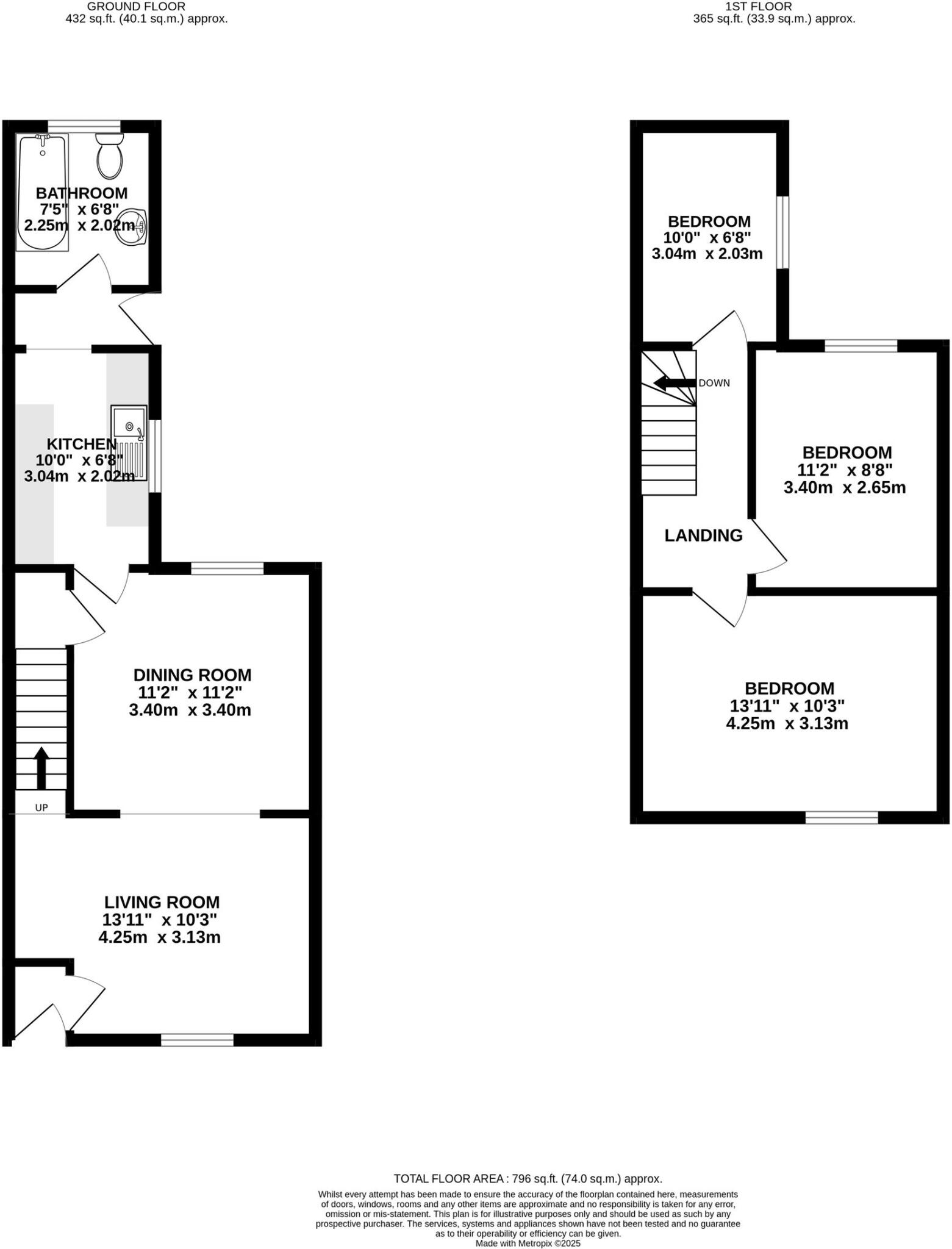
**GUIDE PRICE: £150,000 - £160,000**MID TERRACE PROPERTY**THREE BEDROOMS**OPEN PLAN LOUNGE/DINER**KITCHEN**GROUND FLOOR BATHROOM**ENCLOSED GARDEN SPACE**CENTRAL LOCATION**
Property Oracle says ..
This is a three-bedroom terraced house on Hoskins Street, Newport. The property is listed for £150,000. It is located in a residential area with proximity to schools and transportation. The property appears to be in a traditional style and requires some renovation. It includes a rear garden that needs some attention. The price seems reasonable compared to other properties in the area, making it a potentially good value for buyers willing to undertake some improvements.
Therefore, we give this property 5 / 10. *Disclaimer: This is our option and does constitute a recommendation or financial advice. Do your own research. *
- Price
- 7
- Condition
- 5
- Location
- 6
- Land
- 4
- Bedrooms
- 3
- Bathrooms
- 1
- Sqft (est)
- 796.53
The heatmap indicates the level of crime in the area. The color of the heatmap indicates the crime severity and recency.
Metrics Year-on-Year
- Average area value
- 592,760.00 £Decreased by 27.61 %
- Est sale value
- 555,977.94 £Decreased by 16.90 %
- Average area rental value
- 2,532.00 £/moDecreased by 6.77 %
- Est letting value
- 1,593.06 £/moUnchanged by 0.00 %
- Est rental Yield
- 5.13 %Increased by 28.89 %
- Crime Rate
- 11.00 %Unchanged by 0.00 %
Agent Activity
Number One Real Estate created the listing.
Nearby Schools
| Name | Type | Ofsted | Distance |
|---|---|---|---|
| Crindau Junior & Infant School | Welsh Establishment | 0.54 KM | |
| St Mary'S R.C. Primary School | Welsh Establishment | 0.68 KM | |
| Maindee C.P. School | Welsh Establishment | 0.90 KM | |
| St Woolos Primary School | Welsh Establishment | 1.14 KM | |
| Newport Nursery School | Welsh Establishment | 1.16 KM |
Images
Nearby Streets
| Name | Average Price | Average Sqft | Distance |
|---|---|---|---|
| Shrewsbury Close | £ 80,000 | 0 | 0.00 KM |
| Canterbury Close | £ 0 | 0 | 0.00 KM |
| Bond Street | £ 173,236 | 0 | 0.00 KM |
| Adelaide Street | £ 190,000 | 0 | 0.00 KM |
| Albany Street | £ 152,500 | 0 | 0.00 KM |
Nearby Transport
| Name | NLC | TLC | Distance |
|---|---|---|---|
| Newport (South Wales) | 3674 | NWP | 0.93 KM |
| Pye Corner | 1663 | PYE | 5.05 KM |
| Cwmbran | 3738 | CWM | 7.30 KM |
| Rogerstone | 9921 | ROR | 7.98 KM |
Nearby Listings
| Address | Price | Type | Score | Distance |
|---|---|---|---|---|
| Hoskins Street, Newport, NP20 | £ 150,000 | BUY | 5 / 10 | 0.00 KM |
| Hoskins Street, Newport | £ 140,000 | BUY | 5 / 10 | 0.01 KM |
| Hoskins Street, Newport | £ 140,000 | BUY | 6 / 10 | 0.01 KM |
| Hoskins Street, Newport | £ 140,000 | BUY | 7 / 10 | 0.01 KM |
| Hoskins Street, Newport | £ 140,000 | BUY | 6 / 10 | 0.07 KM |
Nearby Properties
| Address | Price | Distance |
|---|---|---|
| 20 Hoskins Street | £ 75,000 | 0.01 KM |
| 17 Hoskins Street | £ 23,000 | 0.01 KM |
| 70 Hoskins Street | £ 125,000 | 0.01 KM |
| 22 Hoskins Street | £ 95,000 | 0.01 KM |
| 9 Hoskins Street | £ 158,000 | 0.01 KM |