Lucetta Lane, Dorchester, Dorset, DT1
By Greenslade Taylor Hunt
£ 300,000
Reviews
3 out of 5 stars
Greenslade Taylor Hunt says ..
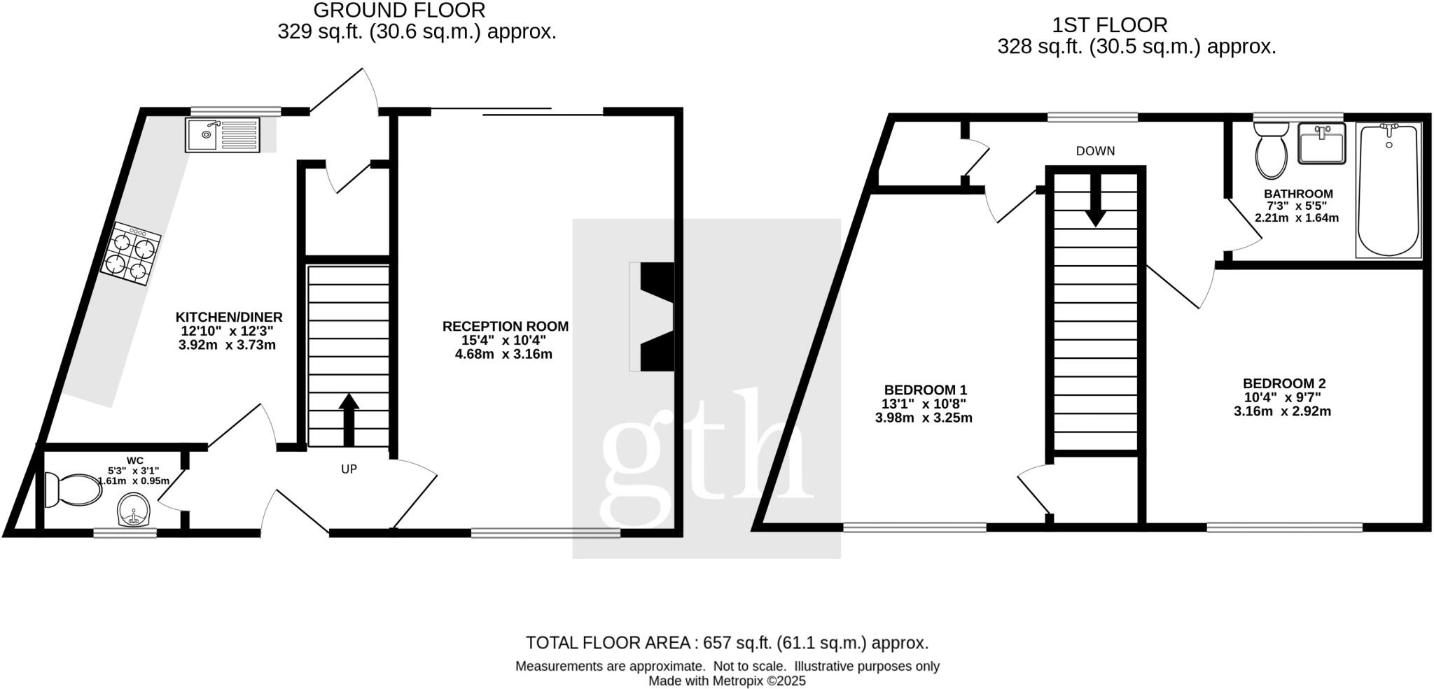
Well presented two bedroom end of terrace home situated in one of Dorchester's most sought after residential areas. Offered with no onward chain.
Property Oracle says ..
Therefore, we give this property 7 / 10. *Disclaimer: This is our option and does constitute a recommendation or financial advice. Do your own research. *
- Price
- 8
- Condition
- 7
- Location
- 8
- Land
- 7
- Bedrooms
- 2
- Bathrooms
- 1
- Sqft (est)
- 610.61
The heatmap indicates the level of crime in the area. The color of the heatmap indicates the crime severity and recency.
Metrics Year-on-Year
- Average area value
- 252,499.00 £Decreased by 16.20 %
- Est sale value
- 206,386.18 £Increased by 0.90 %
- Average area rental value
- 1,225.00 £/moIncreased by 0.91 %
- Est letting value
- 610.61 £/moUnchanged by 0.00 %
- Est rental Yield
- 5.82 %Increased by 20.50 %
- Crime Rate
- 4.00 %Unchanged by 0.00 %
from 301,314.00 £
from 204,554.35 £
from 1,214.00 £/mo
from 610.61 £/mo
from 4.83 %
from 4.00 %
Agent Activity
Greenslade Taylor Hunt created the listing.
Nearby Schools
| Name | Type | Ofsted | Distance |
|---|---|---|---|
| St Mary'S Catholic First School, Dorchester | Academy Converter | Good | 0.05 KM |
| St Osmund'S Church Of England Middle School | Academy Converter | 0.39 KM | |
| Manor Park Church Of England First School | Voluntary Controlled School | Good | 0.49 KM |
| Sunninghill Preparatory School | Other Independent School | 0.58 KM | |
| Dorchester Middle School | Academy Converter | Requires improvement | 2.10 KM |
Images
Nearby Streets
| Name | Average Price | Average Sqft | Distance |
|---|---|---|---|
| Mixen Lane | £ 355,000 | 0 | 0.00 KM |
| Holbaek Close | £ 0 | 0 | 0.00 KM |
| Caernarvon Close | £ 0 | 0 | 0.00 KM |
| Victoria Terrace | £ 250,000 | 0 | 0.00 KM |
| Renfrew Close | £ 0 | 0 | 0.00 KM |
Nearby Transport
| Name | NLC | TLC | Distance |
|---|---|---|---|
| Dorchester South | 5961 | DCH | 0.86 KM |
| Dorchester West | 5962 | DCW | 1.47 KM |
| Upwey | 5967 | UPW | 7.78 KM |
Nearby Listings
| Address | Price | Type | Score | Distance |
|---|---|---|---|---|
| Lucetta Lane, Dorchester, Dorset, DT1 | £ 300,000 | BUY | 7 / 10 | 0.00 KM |
| Lucetta Lane, Dorchester | £ 275,000 | BUY | 7 / 10 | 0.07 KM |
| Lornton Walk, Dorchester | £ 280,000 | BUY | Unknown | 0.17 KM |
| Thomas Hardy Gardens, Dorchester, DT1 | £ 290,000 | BUY | 6 / 10 | 0.17 KM |
| Monmouth Road, Dorchester | £ 315,000 | BUY | 7 / 10 | 0.17 KM |
Nearby Properties
| Address | Price | Distance |
|---|---|---|
| 9 Lucetta Lane | £ 285,000 | 0.02 KM |
| 15 Lucetta Lane | £ 95,000 | 0.02 KM |
| 5 Lucetta Lane | £ 91,000 | 0.02 KM |
| 10 Lucetta Lane | £ 236,000 | 0.02 KM |
| 19 Lucetta Lane | £ 232,500 | 0.02 KM |