Laskowski & Co says ..
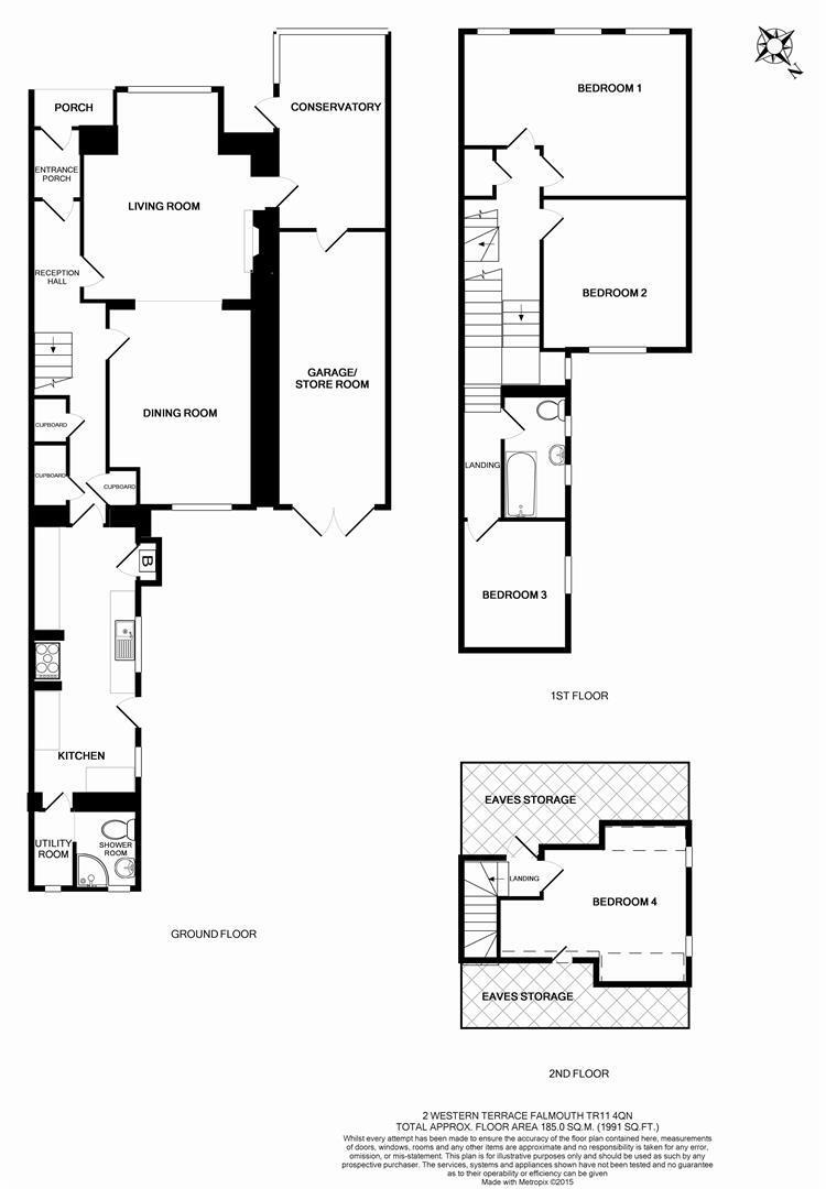
Occupying a prominent position on the corner of ever-popular Western Terrace and Marlborough Road, perfectly located for schools, the seafront, beaches, harbourside, town centre, and all amenities, a superbly proportioned 3-storey, semi-detached house which offers well appointed and versatile 4 b...
Property Oracle says ..
The property is a 4-bedroom, 2-bathroom house with a total area of 1,991.32 sqft. It is situated on Marlborough Road in Falmouth Penwerris, Cornwall. The list price is £650,000. The location is desirable due to its proximity to schools and railway stations, and the average house price on Marlborough Road is £510,000. The property seems to be in relatively good condition, with no visible signs of significant structural damage or disrepair. It benefits from a sizeable garden. The list price of £650,000 appears to be at the higher end of the market compared to the average price of £452,079 in the area. However, the property’s larger size and desirable location justify a premium. Further investigation into recent comparable sales is recommended.
Therefore, we give this property 7 / 10. *Disclaimer: This is our option and does constitute a recommendation or financial advice. Do your own research. *
- Price
- 7
- Condition
- 8
- Location
- 9
- Land
- 7
- Bedrooms
- 4
- Bathrooms
- 2
- Sqft (est)
- 1,991.32
The heatmap indicates the level of crime in the area. The color of the heatmap indicates the crime severity and recency.
Metrics Year-on-Year
- Average area value
- 386,259.00 £Increased by 9.54 %
- Est sale value
- 804,493.28 £Increased by 18.48 %
- Average area rental value
- 1,492.00 £/moDecreased by 18.74 %
- Est letting value
- 1,991.32 £/moUnchanged by 0.00 %
- Est rental Yield
- 4.64 %Decreased by 25.76 %
- Crime Rate
- 11.00 %Unchanged by 0.00 %
Agent Activity
Laskowski & Co created the listing.
Nearby Schools
| Name | Type | Ofsted | Distance |
|---|---|---|---|
| King Charles Primary School | Academy Converter | 0.15 KM | |
| Falmouth University | Higher Education Institutions | 0.47 KM | |
| Falmouth & Penryn Children'S Centre | Children's Centre | 0.50 KM | |
| Marlborough School | Community School | Requires improvement | 0.53 KM |
| Falmouth Primary Academy | Academy Sponsor Led | Good | 0.98 KM |
Images
Nearby Streets
| Name | Average Price | Average Sqft | Distance |
|---|---|---|---|
| Marlborough Road | £ 510,000 | 0 | 0.00 KM |
| West Place | £ 0 | 0 | 0.00 KM |
| Woodland Close | £ 0 | 0 | 0.00 KM |
| Theydon Road | £ 0 | 0 | 0.00 KM |
| Swanpool Hill | £ 0 | 0 | 0.00 KM |
Nearby Transport
| Name | NLC | TLC | Distance |
|---|---|---|---|
| Penmere | 3499 | PNM | 0.90 KM |
| Falmouth Town | 3591 | FMT | 1.13 KM |
| Falmouth Docks | 3508 | FAL | 2.11 KM |
| Penryn (Cornwall) | 3525 | PYN | 4.68 KM |
| Perranwell | 3528 | PRW | 8.49 KM |
Nearby Listings
| Address | Price | Type | Score | Distance |
|---|---|---|---|---|
| Falmouth | £ 650,000 | BUY | 7 / 10 | 0.00 KM |
| Albany Road, Falmouth, TR11 | £ 400,000 | BUY | Unknown | 0.10 KM |
| (Flat 1 & 2) Western Terrace, Falmouth, TR11 | £ 460,000 | BUY | 5 / 10 | 0.15 KM |
| Albany Road, Falmouth | £ 495,000 | BUY | 7 / 10 | 0.15 KM |
| FALMOUTH | £ 625,000 | BUY | 6 / 10 | 0.15 KM |
Nearby Properties
| Address | Price | Distance |
|---|---|---|
| 53 Marlborough Road | £ 280,000 | 0.05 KM |
| 49 Marlborough Road | £ 225,000 | 0.05 KM |
| 54 Marlborough Road | £ 240,000 | 0.05 KM |
| 50 Marlborough Road | £ 530,000 | 0.05 KM |
| Gwengala | £ 355,000 | 0.05 KM |