Building Plot at the Old Grain Store, Millburn Street, Kirkcudbright
Williamson & Henry logo

Building Plot at the Old Grain Store, Millburn Street, Kirkcudbright

By Williamson & Henry

£ 100,000

Reviews

2 out of 5 stars

Williamson & Henry says ..

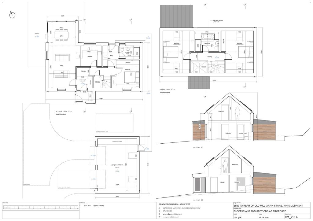
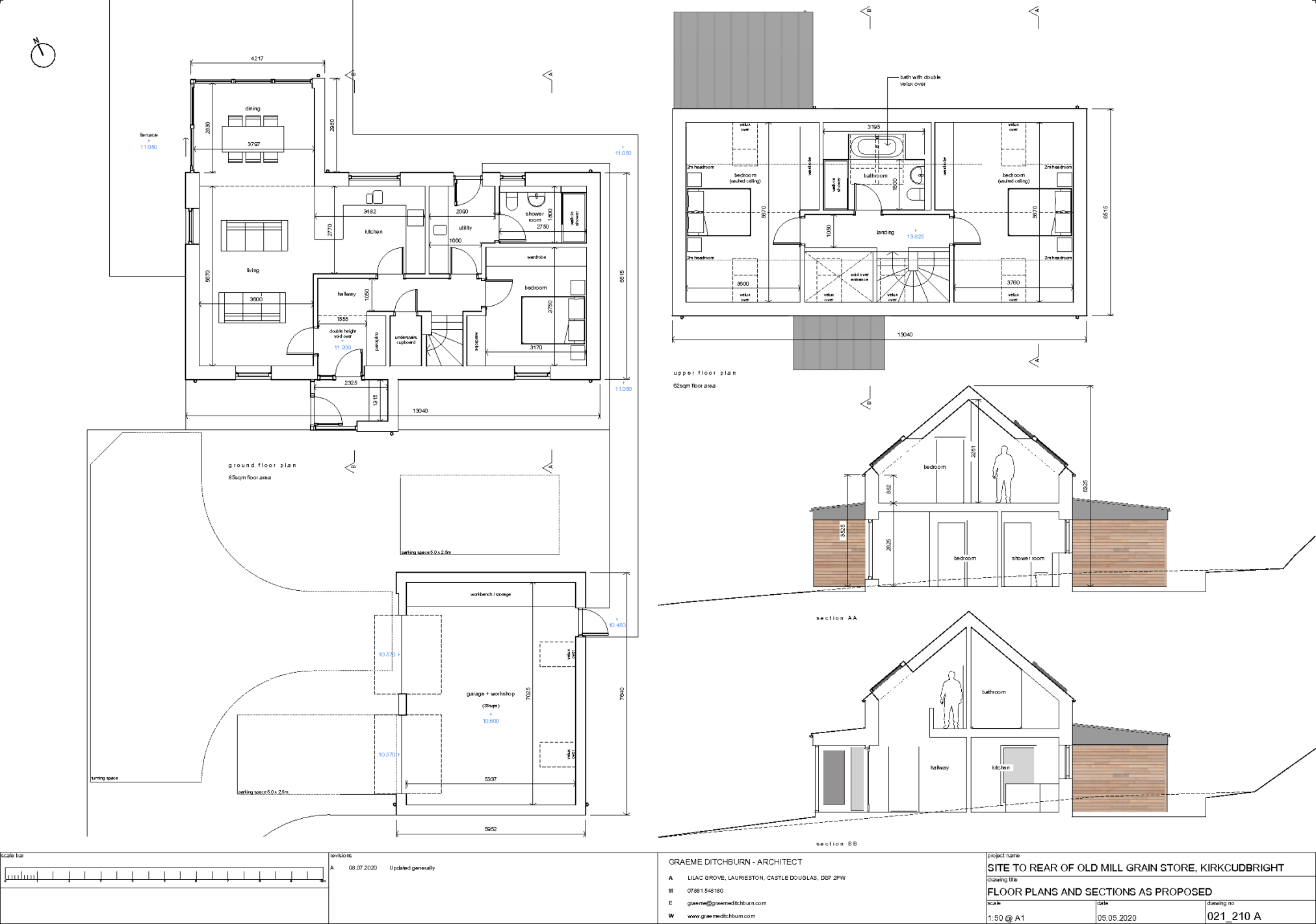
Excellent residential serviced building plot for sale with full planning permission for one and a half storey detached dwelling and detached double garage. Sited within the popular harbour town of Kirkcudbright close to Kirkcudbright Town Centre.

Property Oracle says ..

This listing presents a building plot in Kirkcudbright, a town known for its artistic character and harbour. The plot includes approved plans for a substantial, two-story dwelling with a double garage and a potential sunroom. The plans showcase a modern design incorporating wood and stone elements. While the exact plot size isn’t provided, the site plan suggests a relatively compact footprint. The property’s location, proximity to the town centre, and planned structure makes it suitable for buyers looking to build a home in a charming town. However, a lack of information regarding plot size and nearby amenities prevents a more comprehensive evaluation. Also, the actual condition of the plot is not specified. The absence of detailed specifications or images of the land’s current condition leaves the specifics of the terrain and its preparation undefined. Buyers should conduct a thorough investigation to ascertain its buildability and to determine the potential costs of land preparation before proceeding.

Therefore, we give this property 4 / 10. *Disclaimer: This is our option and does constitute a recommendation or financial advice. Do your own research. *

Price
6
Condition
1
Location
7
Land
2
Bedrooms
3
Bathrooms
2
Sqft (est)
1,560.77

The heatmap indicates the level of crime in the area. The color of the heatmap indicates the crime severity and recency.

Metrics Year-on-Year

Average area value
507,692.00 £
Decreased by 14.14 %
from 591,271.00 £
Est sale value
842,815.80 £
Increased by 25.58 %
from 671,131.10 £
Average area rental value
1,925.00 £/mo
Decreased by 6.28 %
from 2,054.00 £/mo
Est letting value
3,121.54 £/mo
Increased by 100.00 %
from 1,560.77 £/mo
Est rental Yield
4.55 %
Increased by 9.11 %
from 4.17 %
Crime Rate
0.00 %
from 0.00 %

Agent Activity

  • Williamson & Henry marked this listing as sold.

  • Williamson & Henry created the listing.

Images

Building Plot at the Old Grain Store, Millburn Str Building Plot at the Old Grain Store, Millburn Str Building Plot at the Old Grain Store, Millburn Str Building Plot at the Old Grain Store, Millburn Str Building Plot at the Old Grain Store, Millburn Str

Nearby Streets

NameAverage PriceAverage SqftDistance
St Cuthbert Road £ 000.00 KM
Beaconsfield Place £ 000.00 KM
Victoria Park £ 000.00 KM
Dee Walk £ 000.00 KM
Castle Bank £ 000.00 KM

Nearby Listings

AddressPriceTypeScoreDistance
Building Plot at the Old Grain Store, Millburn Street, Kirkcudbright £ 100,000BUY4 / 100.00 KM
20 Millburn Street, Kirkcudbright £ 695,000BUY8 / 100.05 KM
34 Millburn Street, Kirkcudbright £ 168,000BUY7 / 100.17 KM
16A St Marys Street, Kirkcudbright, Dumfries & Galloway, DG6 £ 140,000BUY6 / 100.29 KM
13 Bridge Street, Kirkcudbright £ 140,000BUY6 / 100.29 KM