Cow & Co says ..
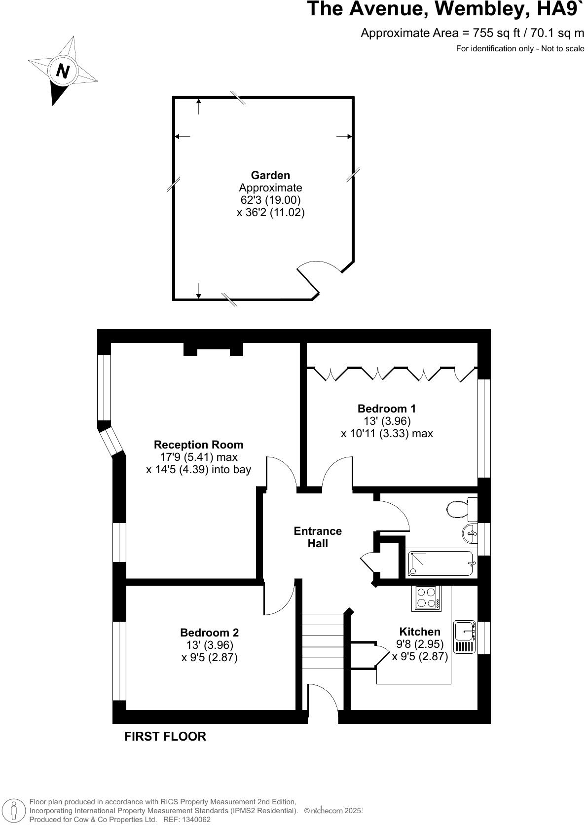
GUIDE PRICE £400,000 - £450,000 A charming 2-bedroom first floor maisonette with a long lease and boasting a spacious 755 sq ft of accommodation. Features a lovely generous sized garden and modern amenities. Situated in a sought-after location, this property offers a perfect blen...
Property Oracle says ..
Therefore, we give this property 7 / 10. *Disclaimer: This is our option and does constitute a recommendation or financial advice. Do your own research. *
- Price
- 8
- Condition
- 6
- Location
- 7
- Land
- 7
- Bedrooms
- 2
- Bathrooms
- 1
- Sqft (est)
- 755.00
- Lot (est)
- 2,248.83
The heatmap indicates the level of crime in the area. The color of the heatmap indicates the crime severity and recency.
Metrics Year-on-Year
- Average area value
- 626,246.00 £Increased by 2.14 %
- Est sale value
- 456,020.00 £Increased by 5.78 %
- Average area rental value
- 2,336.00 £/moIncreased by 26.00 %
- Est letting value
- 1,510.00 £/moIncreased by 100.00 %
- Est rental Yield
- 4.48 %Increased by 23.42 %
- Crime Rate
- 1.00 %Unchanged by 0.00 %
from 613,151.00 £
from 431,105.00 £
from 1,854.00 £/mo
from 755.00 £/mo
from 3.63 %
from 1.00 %
Agent Activity
Cow & Co created the listing.
Nearby Schools
| Name | Type | Ofsted | Distance |
|---|---|---|---|
| Preston Manor School | Academy Converter | Good | 0.49 KM |
| Ashley College | Pupil Referral Unit | Good | 0.78 KM |
| St Christopher'S Prep School | Other Independent School | 0.94 KM | |
| Ark Academy | Academy Sponsor Led | Outstanding | 0.95 KM |
| Wembley Primary School | Community School | Good | 1.18 KM |
Images
Nearby Streets
| Name | Average Price | Average Sqft | Distance |
|---|---|---|---|
| Wilson Drive | £ 0 | 0 | 0.00 KM |
| Ashley Gardens | £ 649,950 | 0 | 0.00 KM |
| May Lane | £ 0 | 0 | 0.00 KM |
| Hillside Gardens | £ 775,000 | 0 | 0.00 KM |
| Public Right of Way 54 | £ 225,000 | 0 | 0.00 KM |
Nearby Transport
| Name | NLC | TLC | Distance |
|---|---|---|---|
| Wembley Stadium | 1509 | WCX | 1.76 KM |
| North Wembley | 1422 | NWB | 2.02 KM |
| Wembley Central | 1423 | WMB | 2.22 KM |
| South Kenton | 1453 | SOK | 2.33 KM |
| Stonebridge Park | 1454 | SBP | 3.17 KM |
Nearby Listings
| Address | Price | Type | Score | Distance |
|---|---|---|---|---|
| The Avenue, Wembley, HA9 | £ 400,000 | BUY | 7 / 10 | 0.00 KM |
| The Avenue, Wembley Park HA9 9QL | £ 435,000 | BUY | Unknown | 0.07 KM |
| West Close, Wembley, London, HA9 | £ 650,000 | BUY | 7 / 10 | 0.09 KM |
| Beverley Gardens, Wembley, HA9 | £ 650,000 | BUY | 6 / 10 | 0.13 KM |
| Beverley Gardens, Wembley | £ 750,000 | BUY | 6 / 10 | 0.13 KM |
Nearby Properties
| Address | Price | Distance |
|---|---|---|
| 106a The Avenue | £ 138,000 | 0.09 KM |
| 104a The Avenue | £ 235,000 | 0.09 KM |
| 104 The Avenue | £ 60,000 | 0.09 KM |
| 76a The Avenue | £ 225,000 | 0.09 KM |
| 66a The Avenue | £ 225,000 | 0.09 KM |