Whittingham Road, Glanton, Alnwick, Northumberland
EL

Whittingham Road, Glanton, Alnwick, Northumberland

By Elizabeth Humphreys Homes

£ 350,000

Reviews

3 out of 5 stars

Elizabeth Humphreys Homes says ..

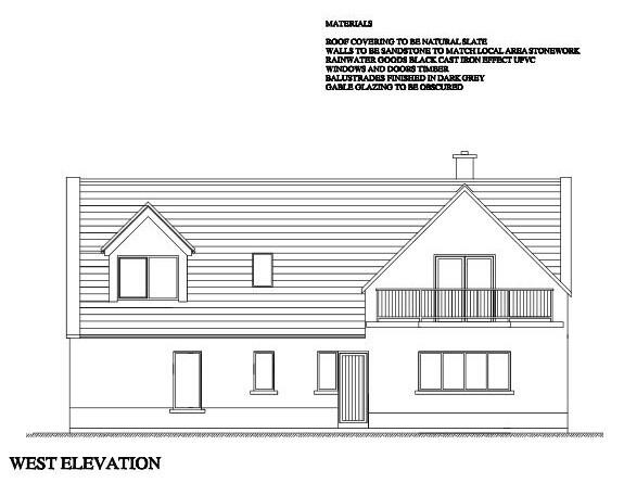
A unique home and garden with countryside views and with planning permission for a three bedroomed dwelling to the rear. Elizabeth Humphreys Homes are delighted to welcome to the market this stone-built 2 bedroomed detached cottage located in the Northumberland village of Glanton. The propert...

Property Oracle says ..

This is a detached bungalow in Glanton, Northumberland, listed for £350,000. The property has two bedrooms and two bathrooms, with a total square footage of 1,050. The house appears to be in good condition, with modern kitchen and bathrooms. It benefits from a good-sized garden with a shed and play area. The location is rural, which may appeal to some, but it is worth noting the nearest school is 2.62 km away. Considering the square footage and the average price per square foot in the area, the property seems reasonably priced. Overall, this property would be well-suited to a small family or couple looking for a quiet life in the countryside. The property also has a garage.

Therefore, we give this property 7 / 10. *Disclaimer: This is our option and does constitute a recommendation or financial advice. Do your own research. *

Price
7
Condition
8
Location
7
Land
7
Bedrooms
2
Bathrooms
2
Sqft (est)
1,050.00

The heatmap indicates the level of crime in the area. The color of the heatmap indicates the crime severity and recency.

Metrics Year-on-Year

Average area value
625,000.00 £
Increased by 9.15 %
from 572,608.00 £
Est sale value
695,100.00 £
Increased by 24.67 %
from 557,550.00 £
Average area rental value
1,525.00 £/mo
Increased by 1.26 %
from 1,506.00 £/mo
Est letting value
1,050.00 £/mo
Unchanged by 0.00 %
from 1,050.00 £/mo
Est rental Yield
2.93 %
Decreased by 7.28 %
from 3.16 %
Crime Rate
321.00 %
Unchanged by 0.00 %
from 321.00 %

Agent Activity

  • Elizabeth Humphreys Homes created the listing.

Nearby Schools

NameTypeOfstedDistance
Whittingham Church Of England Primary SchoolVoluntary Controlled SchoolGood2.62 KM
Branton Community Primary SchoolCommunity SchoolGood4.67 KM

Images

Photo 1 Photo 3 Photo 4 Photo 5 Photo 6 Photo 7 Photo 8 Photo 9 Photo 10 Photo 11 Photo 12 Photo 13 Photo 14 Photo 15 Photo 16 Photo 2 Photo 17 Photo 18 Photo 19 Photo 20 Photo 21 Photo 22 Photo 23 Photo 24 Photo 25 Photo 26 Photo 27 Photo 28 Photo 29 Photo 30 Photo 31 Photo 32 Photo 33 Photo 34 Photo 35 Photo 36 Photo 37 Photo 38 Photo 39 Photo 40 Photo 41 Photo 42 Photo 43 Photo 44

Nearby Streets

NameAverage PriceAverage SqftDistance
Mount View £ 000.00 KM
West Turnpike £ 500,00000.00 KM

Nearby Listings

AddressPriceTypeScoreDistance
Whittingham Road, Glanton, Alnwick, Northumberland £ 350,000BUY7 / 100.00 KM
Whittingham Road, Glanton, NE66 £ 175,000BUY5 / 100.01 KM
Front Street, Glanton £ 145,000BUY6 / 100.11 KM
The Lane, Glanton, NE66 £ 195,000BUY6 / 100.11 KM
St Margarets Place, Glanton, Northumberland, NE66 £ 795,000BUY8 / 100.15 KM

Nearby Properties

AddressPriceDistance
Cumbye £ 290,5000.01 KM
6 Whittingham Road £ 225,0000.01 KM
1 South View £ 128,0000.06 KM
3 South View £ 185,0000.06 KM
5 South View £ 135,5000.06 KM