Thomas Samuel says ..
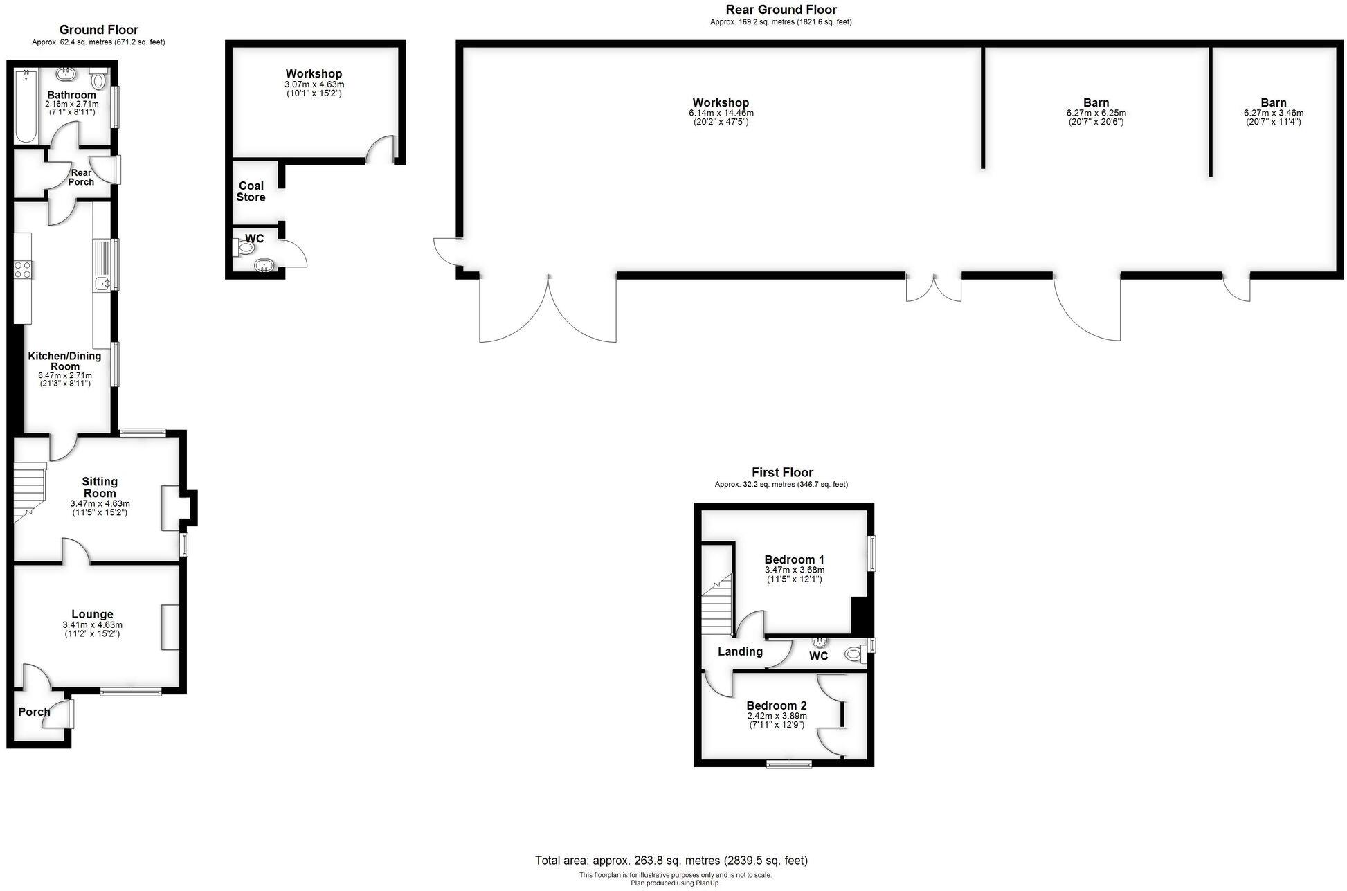
Fantastic development opportunity on New Cut Lane, HalsallSet on approximately one acre of land, this two-bedroom semi-detached cottage offers an exceptional opportunity for full renovation or redevelopment, subject to the necessary planning permissions.
Property Oracle says ..
Peet’s Cottage is a two-bedroom cottage located on New Cut Lane in Halsall, West Lancashire. The property is listed for £600,000. The cottage is situated in a rural location and appears to be in need of renovation. The property benefits from a large plot of land, including a garden with a pond and several outbuildings. Nearby schools include Christ The King Catholic High School and Sixth Form Centre, and Our Lady Of Lourdes Catholic Primary School. The nearest train station is Birkdale, which is 3.89 KM away.
Therefore, we give this property 5 / 10. *Disclaimer: This is our option and does constitute a recommendation or financial advice. Do your own research. *
- Price
- 4
- Condition
- 4
- Location
- 6
- Land
- 9
- Bedrooms
- 2
- Bathrooms
- 1
- Sqft (est)
- 2,839.52
The heatmap indicates the level of crime in the area. The color of the heatmap indicates the crime severity and recency.
Metrics Year-on-Year
- Average area value
- 382,533.00 £Increased by 3.77 %
- Est sale value
- 1,044,943.36 £Increased by 5.44 %
- Average area rental value
- 1,090.00 £/moDecreased by 17.67 %
- Est letting value
- 2,839.52 £/moUnchanged by 0.00 %
- Est rental Yield
- 3.42 %Decreased by 20.65 %
- Crime Rate
- 0.00 %
Agent Activity
Thomas Samuel created the listing.
Nearby Schools
| Name | Type | Ofsted | Distance |
|---|---|---|---|
| Christ The King Catholic High School And Sixth Form Centre | Voluntary Aided School | Requires improvement | 2.38 KM |
| Our Lady Of Lourdes Catholic Primary School | Voluntary Aided School | Good | 2.64 KM |
| Farnborough Road Infant School | Community School | Good | 2.68 KM |
| Farnborough Road Junior School | Community School | Good | 2.68 KM |
| Kew Woods Primary School | Academy Converter | 2.84 KM |
Images
Nearby Streets
| Name | Average Price | Average Sqft | Distance |
|---|---|---|---|
| Birkdale Cop | £ 0 | 0 | 0.00 KM |
Nearby Transport
| Name | NLC | TLC | Distance |
|---|---|---|---|
| Birkdale | 2352 | BDL | 3.89 KM |
| Hillside | 2231 | HIL | 4.09 KM |
| Southport | 2262 | SOP | 4.42 KM |
| Meols Cop | 2357 | MEC | 4.48 KM |
| Ainsdale | 2350 | ANS | 5.83 KM |
Nearby Listings
| Address | Price | Type | Score | Distance |
|---|---|---|---|---|
| New Cut Lane, Halsall | £ 600,000 | BUY | 5 / 10 | 0.00 KM |
| New Cut Lane, Halsall L39 8SN | £ 300,000 | BUY | Unknown | 1.62 KM |
| New Cut Lane, Halsall, PR8 3DJ | £ 525,000 | BUY | 8 / 10 | 1.65 KM |
| Moss Gardens, Southport, Lancashire, PR8 | £ 360,000 | BUY | 7 / 10 | 1.67 KM |
| Moss Road, Southport, PR8 4JQ | £ 200,000 | BUY | 7 / 10 | 1.72 KM |
Nearby Properties
| Address | Price | Distance |
|---|---|---|
| The Willows | £ 250,000 | 0.51 KM |
| Rainbag Cottage | £ 380,000 | 1.62 KM |
| 94 New Cut Lane | £ 125,000 | 1.65 KM |
| 90 New Cut Lane | £ 100,000 | 1.65 KM |
| 8 Moss Gardens | £ 339,950 | 1.67 KM |