Potash Farm Development Site, Ipswich Road, Holbrook, Suffolk, IP9
By Fenn Wright
£ 685,000
Reviews
2 out of 5 stars
Fenn Wright says ..
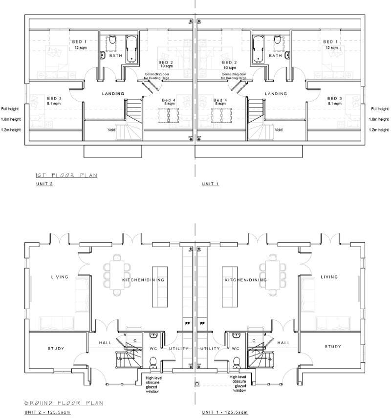
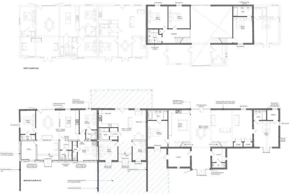
The site lies to the north of Holbrook, set back from the B1080 between Holbrook and Freston, in a peaceful rural setting surrounded by open arable fields. Holbrook village, just to the south, offers everyday amenities including a convenience store, medical practise, village hall, church and seco...
Property Oracle says ..
This is a development opportunity in Holbrook, Suffolk. The existing structures require significant work, but the large plot offers considerable potential for redevelopment. The location provides a balance between rural living and accessibility to nearby towns. The price reflects the development potential but prospective buyers should carefully consider the costs associated with renovating or rebuilding on the site.
Therefore, we give this property 5 / 10. *Disclaimer: This is our option and does constitute a recommendation or financial advice. Do your own research. *
- Price
- 5
- Condition
- 3
- Location
- 6
- Land
- 8
- Bedrooms
- 0
- Bathrooms
- 0
- Sqft (est)
- 593.09
The heatmap indicates the level of crime in the area. The color of the heatmap indicates the crime severity and recency.
Metrics Year-on-Year
- Average area value
- 230,000.00 £Decreased by 47.60 %
- Est sale value
- 198,092.06 £Decreased by 10.93 %
- Average area rental value
- 875.00 £/moDecreased by 22.91 %
- Est letting value
- 593.09 £/mo
- Est rental Yield
- 4.57 %Increased by 47.42 %
- Crime Rate
- 0.00 %
Agent Activity
Fenn Wright created the listing.
Nearby Schools
| Name | Type | Ofsted | Distance |
|---|---|---|---|
| Holbrook Academy | Academy Converter | Good | 0.75 KM |
| Holbrook Primary School | Community School | Good | 0.95 KM |
| Royal Hospital School | Other Independent School | 2.69 KM | |
| Stutton Church Of England Primary School | Academy Sponsor Led | 3.98 KM | |
| Ipswich High School | Other Independent School | 4.43 KM |
Images
Nearby Streets
| Name | Average Price | Average Sqft | Distance |
|---|---|---|---|
| Woodlands Road | £ 0 | 0 | 0.00 KM |
| B1080 | £ 775,000 | 0 | 0.00 KM |
| Berners Field | £ 0 | 0 | 0.00 KM |
| Wagstaff Close | £ 1,750,000 | 0 | 0.00 KM |
Nearby Transport
| Name | NLC | TLC | Distance |
|---|---|---|---|
| Ipswich | 7217 | IPS | 6.25 KM |
| Wrabness | 6907 | WRB | 6.48 KM |
| Derby Road (Ipswich) | 7212 | DBR | 6.79 KM |
| Westerfield | 7226 | WFI | 9.56 KM |
Nearby Listings
| Address | Price | Type | Score | Distance |
|---|---|---|---|---|
| Potash Farm Development Site, Ipswich Road, Holbrook, Suffolk, IP9 | £ 685,000 | BUY | 5 / 10 | 0.00 KM |
| Rodwell Close, Holbrook, Ipswich, Suffolk, IP9 | £ 600,000 | BUY | 7 / 10 | 0.58 KM |
| Abbott Way, Holbrook, Ipswich | £ 400,000 | BUY | 7 / 10 | 0.59 KM |
| Abbott Way, Holbrook, Ipswich, Suffolk, IP9 | £ 315,000 | BUY | 7 / 10 | 0.68 KM |
| Abbott Way, Holbrook, Ipswich, Suffolk, IP9 | £ 500,000 | BUY | 7 / 10 | 0.68 KM |
Nearby Properties
| Address | Price | Distance |
|---|---|---|
| Chimneys | £ 249,995 | 0.50 KM |
| Sparrows Nest | £ 434,500 | 0.50 KM |
| 17 Ipswich Road | £ 249,995 | 0.63 KM |
| 7 Ipswich Road | £ 250,000 | 0.63 KM |
| 11 Ipswich Road | £ 480,000 | 0.63 KM |