Breckon & Breckon says ..
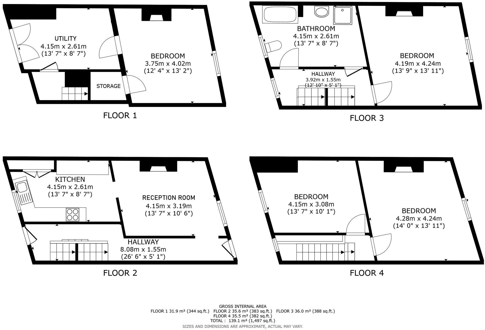
A handsome four storey Georgian townhouse located on the prestigious London Place.
Property Oracle says ..
Therefore, we give this property 5 / 10. *Disclaimer: This is our option and does constitute a recommendation or financial advice. Do your own research. *
- Price
- 4
- Condition
- 3
- Location
- 8
- Land
- 7
- Bedrooms
- 4
- Bathrooms
- 1
The heatmap indicates the level of crime in the area. The color of the heatmap indicates the crime severity and recency.
Metrics Year-on-Year
- Average area value
- 473,000.00 £Increased by 27.87 %
- Average area rental value
- 1,563.00 £/moDecreased by 12.88 %
- Est rental Yield
- 3.97 %Decreased by 31.79 %
- Crime Rate
- 18.00 %Unchanged by 0.00 %
from 369,895.00 £
from 1,794.00 £/mo
from 5.82 %
from 18.00 %
Agent Activity
Breckon & Breckon created the listing.
Nearby Schools
| Name | Type | Ofsted | Distance |
|---|---|---|---|
| Oxford International College | Other Independent School | Good | 0.04 KM |
| East Oxford Primary School | Community School | Good | 0.41 KM |
| East Oxford Children And Family Centre | Children's Centre Linked Site | 0.46 KM | |
| Magdalen College School | Other Independent School | 0.73 KM | |
| St Michael'S Cofe Primary School | Voluntary Aided School | Good | 0.89 KM |
Images
Nearby Streets
| Name | Average Price | Average Sqft | Distance |
|---|---|---|---|
| Dudley Gardens | £ 0 | 0 | 0.00 KM |
| Alan Bullock Close | £ 0 | 0 | 0.00 KM |
| Alma Lane | £ 0 | 0 | 0.00 KM |
| Union Street | £ 0 | 0 | 0.00 KM |
| James Street | £ 0 | 0 | 0.00 KM |
Nearby Transport
| Name | NLC | TLC | Distance |
|---|---|---|---|
| Oxford | 3115 | OXF | 3.52 KM |
| Oxford Parkway | 3121 | OXP | 7.10 KM |
| Radley | 3118 | RAD | 7.25 KM |
| Islip | 3110 | ISP | 8.28 KM |
Nearby Listings
| Address | Price | Type | Score | Distance |
|---|---|---|---|---|
| London Place, Oxford, OX4 | £ 700,000 | BUY | 5 / 10 | 0.00 KM |
| London Place, Oxford, Oxfordshire, OX4 | £ 1,500,000 | BUY | 6 / 10 | 0.04 KM |
| Little Brewery Street, Oxford, OX4 | £ 575,000 | BUY | Unknown | 0.07 KM |
| Citygate, St Clements Street, Oxford, OX4 | £ 425,000 | BUY | 6 / 10 | 0.07 KM |
| London Place, Oxford, OX4 | £ 725,000 | BUY | 4 / 10 | 0.08 KM |
Nearby Properties
| Address | Price | Distance |
|---|---|---|
| 33 Cave Street | £ 410,000 | 0.06 KM |
| 39 Cave Street | £ 385,000 | 0.06 KM |
| 36 Cave Street | £ 425,000 | 0.06 KM |
| 34 Cave Street | £ 430,000 | 0.06 KM |
| 37 Cave Street | £ 125,000 | 0.06 KM |