TA
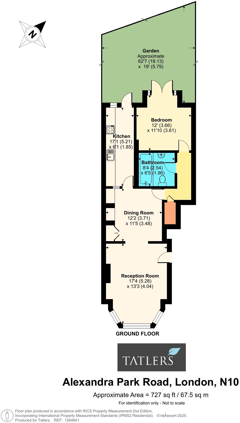
Alexandra Park Road, London, N10
By Tatlers
£ 625,000
Tatlers says ..
Occupying the ground floor of this Edwardian residence is a larger than average one bedroom, two reception room converted flat which benefits from direct access to its own private 62’7 rear garden. The property benefits from original period features and high ceilings throughout; added benef...
- Bedrooms
- 1
- Bathrooms
- 1
The heatmap indicates the level of crime in the area. The color of the heatmap indicates the crime severity and recency.
Metrics Year-on-Year
- Average area value
- 570,435.00 £Increased by 16.78 %
- Average area rental value
- 1,562.00 £/moIncreased by 10.39 %
- Est rental Yield
- 3.29 %Decreased by 5.46 %
- Crime Rate
- 6.00 %Unchanged by 0.00 %
from 488,470.00 £
from 1,415.00 £/mo
from 3.48 %
from 6.00 %
Agent Activity
Tatlers created the listing.
Nearby Schools
| Name | Type | Ofsted | Distance |
|---|---|---|---|
| Norfolk House School | Other Independent School | 0.23 KM | |
| Unique Children'S School | Other Independent School | Requires improvement | 0.59 KM |
| Our Lady Of Muswell Catholic Primary School | Voluntary Aided School | Outstanding | 0.65 KM |
| Muswell Hill Primary School | Community School | Outstanding | 0.74 KM |
| Hollickwood Primary School | Foundation School | Good | 0.91 KM |
Images
Nearby Streets
| Name | Average Price | Average Sqft | Distance |
|---|---|---|---|
| Barnard Hill | £ 700,000 | 0 | 0.00 KM |
| Page's Hill | £ 0 | 0 | 0.00 KM |
| Wilton Road | £ 256,500 | 0 | 0.00 KM |
| Sutton Road | £ 0 | 0 | 0.00 KM |
| Squashed Pear Alley | £ 0 | 0 | 0.00 KM |
Nearby Transport
| Name | NLC | TLC | Distance |
|---|---|---|---|
| New Southgate | 6019 | NSG | 1.92 KM |
| Alexandra Palace | 6025 | AAP | 2.57 KM |
| Bowes Park | 6027 | BOP | 2.77 KM |
| Hornsey | 6015 | HRN | 3.67 KM |
| Upper Holloway | 1524 | UHL | 4.01 KM |
Nearby Listings
| Address | Price | Type | Score | Distance |
|---|---|---|---|---|
| Alexandra Park Road, London, N10 | £ 625,000 | BUY | Unknown | 0.00 KM |
| Colney Hatch Lane, Muswell Hill, London, N10 | £ 900,000 | BUY | 6 / 10 | 0.03 KM |
| Alexandra Park Road, London, N10 | £ 850,000 | BUY | 6 / 10 | 0.06 KM |
| Alexandra Park Road, London | £ 850,000 | BUY | 7 / 10 | 0.06 KM |
| Alexandra Park Road, London, N10 | £ 770,000 | BUY | 7 / 10 | 0.06 KM |
Nearby Properties
| Address | Price | Distance |
|---|---|---|
| 7 Alexandra Park Road | £ 1,180,000 | 0.01 KM |
| 19b Alexandra Park Road | £ 75,000 | 0.01 KM |
| 31 Alexandra Park Road | £ 745,000 | 0.01 KM |
| 23 Alexandra Park Road | £ 680,000 | 0.01 KM |
| 17 Alexandra Park Road | £ 1,150,000 | 0.01 KM |