Walton Well Road, Oxford, OX2
By Breckon & Breckon
£ 799,950
Reviews
3 out of 5 stars
Breckon & Breckon says ..
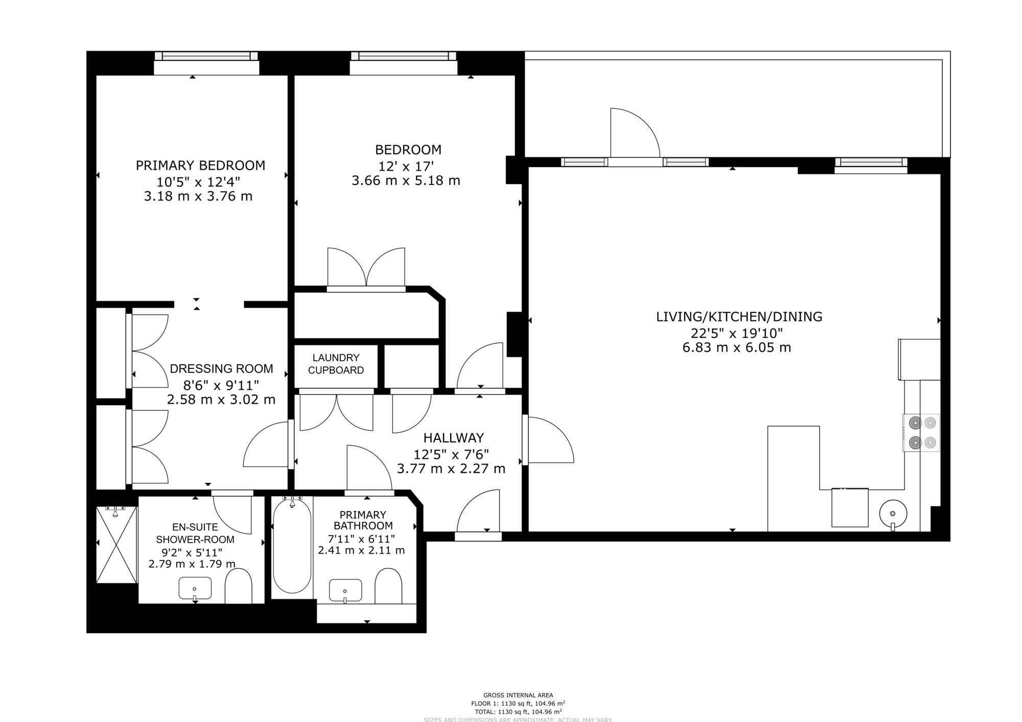
Located on the site of a former Ironworks and built in 2007, this good-sized balcony apartment offers 1,300 sq.ft.
Property Oracle says ..
This is a two-bedroom apartment located on Walton Well Road in Oxford. The property is listed for £799,950. It is located in a desirable area of Oxford, close to local amenities and schools. The apartment appears to be in good condition and offers 1,033.96 sqft of living space. The property benefits from a balcony. While the asking price is below the local average, similar properties are listed at a lower price.
Therefore, we give this property 6 / 10. *Disclaimer: This is our option and does constitute a recommendation or financial advice. Do your own research. *
- Price
- 6
- Condition
- 8
- Location
- 8
- Land
- 5
- Bedrooms
- 2
- Bathrooms
- 2
- Sqft (est)
- 1,033.96
The heatmap indicates the level of crime in the area. The color of the heatmap indicates the crime severity and recency.
Metrics Year-on-Year
- Average area value
- 1,314,655.00 £Increased by 53.76 %
- Est sale value
- 1,002,941.20 £Increased by 46.75 %
- Average area rental value
- 2,989.00 £/moIncreased by 11.70 %
- Est letting value
- 2,067.92 £/moUnchanged by 0.00 %
- Est rental Yield
- 2.73 %Decreased by 27.39 %
- Crime Rate
- 10.00 %Unchanged by 0.00 %
Agent Activity
Breckon & Breckon created the listing.
Nearby Schools
| Name | Type | Ofsted | Distance |
|---|---|---|---|
| St Barnabas' Church Of England Aided Primary School | Voluntary Aided School | Good | 0.42 KM |
| St Philip And James' Church Of England Aided Primary School Oxford | Voluntary Aided School | Good | 0.79 KM |
| St Aloysius' Catholic Primary School | Voluntary Aided School | Good | 0.86 KM |
| University Of Oxford | Higher Education Institutions | 0.94 KM | |
| Carfax College | Other Independent School | Good | 0.97 KM |
Images
Nearby Streets
| Name | Average Price | Average Sqft | Distance |
|---|---|---|---|
| Shirley Place | £ 0 | 0 | 0.00 KM |
| Jericho Passage | £ 0 | 0 | 0.00 KM |
| Walton Manor Court | £ 0 | 0 | 0.00 KM |
| Balliol Court | £ 875,000 | 0 | 0.00 KM |
| St Bernard's Road | £ 670,000 | 0 | 0.00 KM |
Nearby Transport
| Name | NLC | TLC | Distance |
|---|---|---|---|
| Oxford | 3115 | OXF | 0.83 KM |
| Oxford Parkway | 3121 | OXP | 4.82 KM |
| Islip | 3110 | ISP | 8.06 KM |
| Radley | 3118 | RAD | 8.96 KM |
Nearby Listings
| Address | Price | Type | Score | Distance |
|---|---|---|---|---|
| Walton Well Road, Oxford, OX2 | £ 799,950 | BUY | 6 / 10 | 0.00 KM |
| Walton Well Road, Oxford | £ 650,000 | BUY | 6 / 10 | 0.01 KM |
| Walton Well Road, Oxford, OX2 | £ 875,000 | BUY | 6 / 10 | 0.01 KM |
| Foundry House, Waterfront | £ 695,000 | BUY | 7 / 10 | 0.02 KM |
| Foundry House, Waterfront | £ 645,000 | BUY | 7 / 10 | 0.02 KM |
Nearby Properties
| Address | Price | Distance |
|---|---|---|
| 7 William Lucy Way | £ 430,000 | 0.07 KM |
| 33 William Lucy Way | £ 1,040,000 | 0.07 KM |
| 19 William Lucy Way | £ 975,000 | 0.07 KM |
| 10 William Lucy Way | £ 395,000 | 0.07 KM |
| 28 William Lucy Way | £ 755,000 | 0.07 KM |