Gascoigne Halman says ..
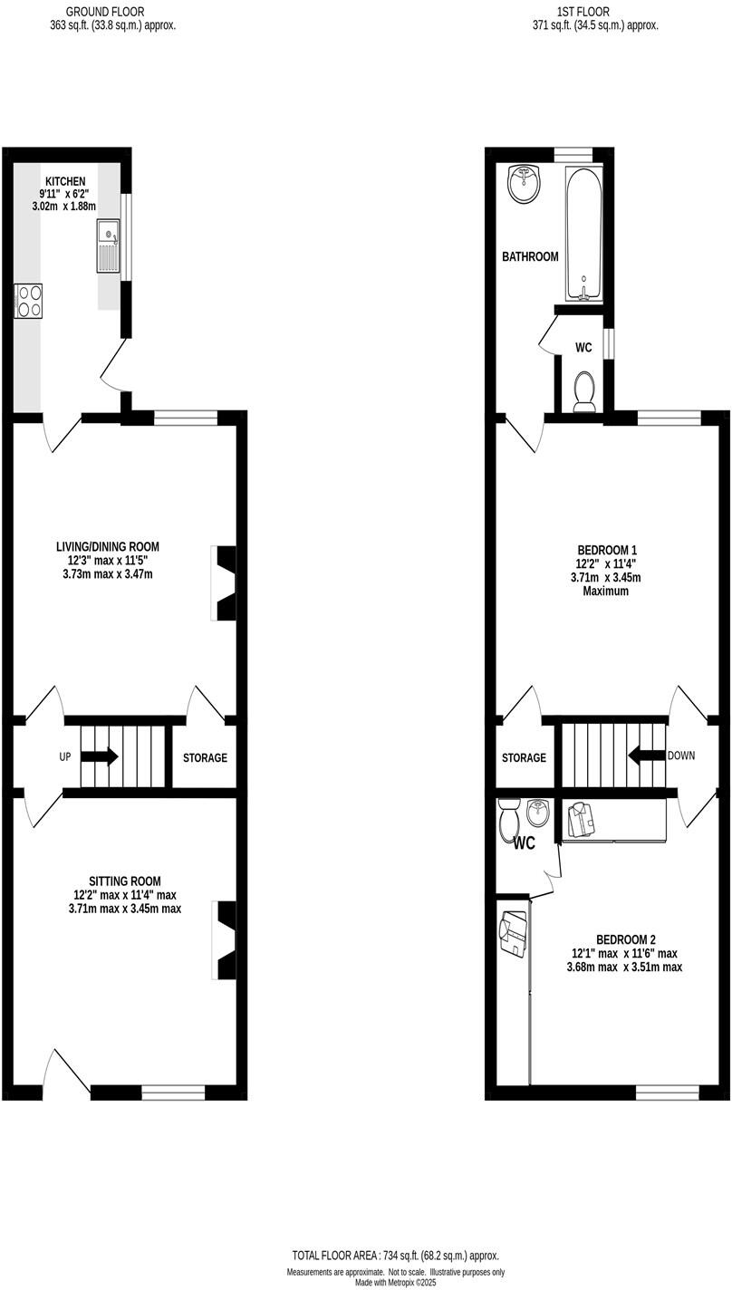
Two bedroom mid terrace property with garden and parking - Requiring modernisation
Property Oracle says ..
This terraced property on London Road, Holmes Chapel, presents a good opportunity for buyers. While the property requires modernisation, it boasts a desirable location with convenient access to local amenities and transportation links, including the Holmes Chapel railway station. The presence of both front and rear gardens adds to its appeal. The price seems competitive, reflecting the need for renovation, making it an attractive prospect for those looking to add value through improvements.
Therefore, we give this property 6 / 10. *Disclaimer: This is our option and does constitute a recommendation or financial advice. Do your own research. *
- Price
- 8
- Condition
- 5
- Location
- 7
- Land
- 7
- Bedrooms
- 2
- Bathrooms
- 1
- Sqft (est)
- 734.10
The heatmap indicates the level of crime in the area. The color of the heatmap indicates the crime severity and recency.
Metrics Year-on-Year
- Average area value
- 420,645.00 £Increased by 5.85 %
- Est sale value
- 346,495.20 £Increased by 43.90 %
- Average area rental value
- 1,250.00 £/moDecreased by 18.03 %
- Est letting value
- 734.10 £/moUnchanged by 0.00 %
- Est rental Yield
- 3.57 %Decreased by 22.56 %
- Crime Rate
- 27.00 %Unchanged by 0.00 %
Agent Activity
Gascoigne Halman created the listing.
Nearby Schools
| Name | Type | Ofsted | Distance |
|---|---|---|---|
| Hermitage Primary School | Academy Converter | 1.03 KM | |
| Holmes Chapel Primary School | Academy Converter | Outstanding | 1.07 KM |
| Holmes Chapel Comprehensive School | Academy Converter | Good | 1.63 KM |
| Brereton Cofe Primary School | Academy Converter | 3.25 KM | |
| Goostrey Community Primary School | Community School | Outstanding | 4.13 KM |
Images
Nearby Streets
| Name | Average Price | Average Sqft | Distance |
|---|---|---|---|
| Dunkirk Way | £ 0 | 0 | 0.00 KM |
| Dunkirk Way | £ 750,000 | 0 | 0.00 KM |
| Hyacinth Close | £ 379,998 | 0 | 0.00 KM |
| Cowslip Road | £ 380,000 | 0 | 0.00 KM |
| Dog Rose Place | £ 0 | 0 | 0.00 KM |
Nearby Transport
| Name | NLC | TLC | Distance |
|---|---|---|---|
| Holmes Chapel | 1221 | HCH | 0.52 KM |
| Goostrey | 1220 | GTR | 4.31 KM |
| Sandbach | 1261 | SDB | 6.65 KM |
Nearby Listings
| Address | Price | Type | Score | Distance |
|---|---|---|---|---|
| London Road, Holmes Chapel | £ 250,000 | BUY | 6 / 10 | 0.00 KM |
| London Road, Holmes Chapel | £ 325,000 | BUY | 6 / 10 | 0.02 KM |
| London Road, Holmes Chapel | £ 450,000 | BUY | 8 / 10 | 0.11 KM |
| London Road, Holmes Chapel, Crewe, Cheshire, CW4 8AY | £ 725,000 | BUY | 7 / 10 | 0.11 KM |
| Bromley Drive, Holmes Chapel | £ 275,000 | BUY | 7 / 10 | 0.16 KM |
Nearby Properties
| Address | Price | Distance |
|---|---|---|
| 17 Alum Court | £ 80,000 | 0.08 KM |
| 12 Alum Court | £ 111,950 | 0.08 KM |
| 25 Alum Court | £ 175,000 | 0.08 KM |
| 1 Alum Court | £ 167,000 | 0.08 KM |
| 15 Alum Court | £ 270,000 | 0.08 KM |