BidX1 says ..
To be sold at an online auction. For further information, viewing times and legal documentation, please visit bidx1.com.
Property Oracle says ..
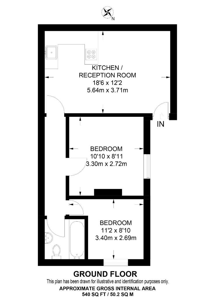
This is a two-bedroom flat on Wood Street, Walthamstow, London. The property is listed for £200,000. The flat appears to be in good condition, with a modern kitchen and bathroom. It also benefits from a communal garden. The property is located close to local transportation and schools, making it a desirable location. The price seems competitive compared to the average property price in the area. Overall, this property presents a good opportunity for first-time buyers or investors looking for value in the London market.
Therefore, we give this property 7 / 10. *Disclaimer: This is our option and does constitute a recommendation or financial advice. Do your own research. *
- Price
- 8
- Condition
- 7
- Location
- 7
- Land
- 6
- Bedrooms
- 2
- Bathrooms
- 1
The heatmap indicates the level of crime in the area. The color of the heatmap indicates the crime severity and recency.
Metrics Year-on-Year
- Average area value
- 703,125.00 £Increased by 19.09 %
- Average area rental value
- 1,833.00 £/moIncreased by 0.27 %
- Est rental Yield
- 3.13 %Decreased by 15.86 %
- Crime Rate
- 2.00 %Unchanged by 0.00 %
Agent Activity
BidX1 created the listing.
Nearby Schools
| Name | Type | Ofsted | Distance |
|---|---|---|---|
| St Mary'S Cofe Primary School | Academy Converter | 0.26 KM | |
| Henry Maynard Primary School | Community School | Good | 0.56 KM |
| Woodside Children'S Centre | Children's Centre Linked Site | 0.60 KM | |
| The Woodside Primary Academy | Academy Sponsor Led | Outstanding | 0.73 KM |
| Holy Family Catholic School | Voluntary Aided School | Good | 0.85 KM |
Images
Nearby Streets
| Name | Average Price | Average Sqft | Distance |
|---|---|---|---|
| Brooke Road | £ 807,857 | 0 | 0.00 KM |
| Brandon Road | £ 0 | 0 | 0.00 KM |
| Oliver Road | £ 0 | 0 | 0.00 KM |
| St George's Court | £ 270,000 | 0 | 0.00 KM |
| Waverley Avenue | £ 325,000 | 0 | 0.00 KM |
Nearby Transport
| Name | NLC | TLC | Distance |
|---|---|---|---|
| Wood Street | 6954 | WST | 0.21 KM |
| Leyton Midland Road | 7402 | LEM | 1.88 KM |
| Walthamstow Central | 6953 | WHC | 2.08 KM |
| Walthamstow Queen'S Road | 7407 | WMW | 2.54 KM |
| Highams Park | 6919 | HIP | 2.59 KM |
Nearby Listings
| Address | Price | Type | Score | Distance |
|---|---|---|---|---|
| Wood Street, London, E17 | £ 200,000 | BUY | 7 / 10 | 0.00 KM |
| Wood Street, Walthamstow | £ 350,000 | BUY | 6 / 10 | 0.02 KM |
| Wood Street, Walthamstow, London, E17 | £ 375,000 | BUY | 6 / 10 | 0.03 KM |
| Wood Street, Walthamstow, E17 | £ 700,000 | BUY | 6 / 10 | 0.05 KM |
| Wood Street, London, E17 | £ 310,000 | BUY | 5 / 10 | 0.05 KM |
Nearby Properties
| Address | Price | Distance |
|---|---|---|
| 229 Wood Street | £ 170,000 | 0.04 KM |
| 219 Wood Street | £ 155,000 | 0.04 KM |
| 217a Wood Street | £ 38,000 | 0.04 KM |
| 215 Wood Street | £ 32,000 | 0.04 KM |
| 225d Wood Street | £ 230,000 | 0.04 KM |