haart says ..
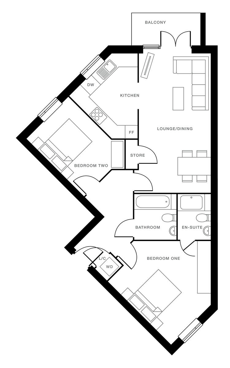
5% Deposit Contribution! * The Oak is a Brand New Two Bedroom Apartment situated in the friendly community of Berryfields. Offering the convenience of urban life while having the countryside right on your doorstep
Property Oracle says ..
Therefore, we give this property 7 / 10. *Disclaimer: This is our option and does constitute a recommendation or financial advice. Do your own research. *
- Price
- 9
- Condition
- 9
- Location
- 7
- Land
- 3
- Bedrooms
- 2
- Bathrooms
- 2
- Sqft (est)
- 850.00
The heatmap indicates the level of crime in the area. The color of the heatmap indicates the crime severity and recency.
Metrics Year-on-Year
- Average area value
- 554,375.00 £Increased by 7.09 %
- Est sale value
- 554,200.00 £Increased by 33.06 %
- Average area rental value
- 1,490.00 £/moDecreased by 17.22 %
- Est letting value
- 850.00 £/moUnchanged by 0.00 %
- Est rental Yield
- 3.23 %Decreased by 22.54 %
- Crime Rate
- 15.00 %Unchanged by 0.00 %
from 517,682.00 £
from 416,500.00 £
from 1,800.00 £/mo
from 850.00 £/mo
from 4.17 %
from 15.00 %
Agent Activity
haart created the listing.
Nearby Schools
| Name | Type | Ofsted | Distance |
|---|---|---|---|
| The Aylesbury Vale Academy | Academy Sponsor Led | Good | 0.20 KM |
| Berryfields Family Centre (Aylesbury) | Children's Centre | 0.35 KM | |
| Green Ridge Primary Academy | Free Schools | 0.86 KM | |
| Thomas Hickman School | Community School | Good | 1.74 KM |
| Benjamin College | Other Independent Special School | Good | 2.15 KM |
Images
Nearby Streets
| Name | Average Price | Average Sqft | Distance |
|---|---|---|---|
| Pomeroy Court | £ 0 | 0 | 0.00 KM |
| Thornley Close | £ 0 | 0 | 0.00 KM |
| Oldfield Street | £ 425,000 | 0 | 0.00 KM |
| Banks Yard | £ 0 | 0 | 0.00 KM |
| Avalon Street | £ 422,000 | 0 | 0.00 KM |
Nearby Transport
| Name | NLC | TLC | Distance |
|---|---|---|---|
| Aylesbury Vale Parkway | 1090 | AVP | 1.11 KM |
| Aylesbury | 1492 | AYS | 4.73 KM |
| Stoke Mandeville | 1467 | SKM | 9.20 KM |
Nearby Listings
| Address | Price | Type | Score | Distance |
|---|---|---|---|---|
| The Oak, Arcadia Park, Aylesbury | £ 277,500 | BUY | 7 / 10 | 0.00 KM |
| The Hadar, Arcadia Park, Aylesbury | £ 205,000 | BUY | 6 / 10 | 0.01 KM |
| The Rowan, Arcadia Park, Aylesbury | £ 250,000 | BUY | 6 / 10 | 0.02 KM |
| The Beech, Arcadia Park, Aylesbury | £ 268,500 | BUY | 6 / 10 | 0.02 KM |
| The Dew, Arcadia Park, Aylesbury | £ 262,500 | BUY | 6 / 10 | 0.02 KM |
Nearby Properties
| Address | Price | Distance |
|---|---|---|
| 3 Calville Gardens | £ 360,000 | 0.13 KM |
| 6 Siddington Drive | £ 557,000 | 0.23 KM |
| 8 Siddington Drive | £ 249,995 | 0.23 KM |
| 57 Siddington Drive | £ 210,000 | 0.23 KM |
| 55 Siddington Drive | £ 167,500 | 0.23 KM |