Ferrymead Avenue, Greenford, UB6
By SAB Estates
£ 525,000
Reviews
3 out of 5 stars
SAB Estates says ..
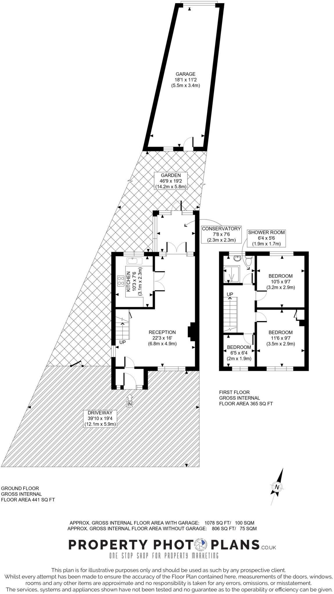
3-Bedroom End-of-Terrace Home with Spacious Garage, Garden Room, and Potential to ExtendA well-presented three-bedroom end-of-terrace home in a sought-after location, offering excellent scope to extend (subject to planning permission).
Property Oracle says ..
This end-of-terrace property on Ferrymead Avenue in Greenford offers three bedrooms and one bathroom. The property is located within a reasonable distance of schools and transportation links. The interior appears to be in generally good condition, although some areas, like the kitchen, could benefit from updating. The property includes a garden, providing outdoor space. Considering the location, condition, and size, the asking price of £525,000 seems appropriate for the current market.
Therefore, we give this property 6 / 10. *Disclaimer: This is our option and does constitute a recommendation or financial advice. Do your own research. *
- Price
- 7
- Condition
- 7
- Location
- 7
- Land
- 6
- Bedrooms
- 3
- Bathrooms
- 1
- Sqft (est)
- 806.00
- Lot (est)
- 900.00
The heatmap indicates the level of crime in the area. The color of the heatmap indicates the crime severity and recency.
Metrics Year-on-Year
- Average area value
- 345,650.00 £Decreased by 14.42 %
- Est sale value
- 310,310.00 £Decreased by 21.75 %
- Average area rental value
- 1,733.00 £/moIncreased by 12.61 %
- Est letting value
- 806.00 £/moUnchanged by 0.00 %
- Est rental Yield
- 6.02 %Increased by 31.73 %
- Crime Rate
- 2.00 %Unchanged by 0.00 %
Agent Activity
SAB Estates created the listing.
Nearby Schools
| Name | Type | Ofsted | Distance |
|---|---|---|---|
| Ravenor Primary School | Community School | Good | 0.26 KM |
| Greenford High School | Foundation School | Outstanding | 0.61 KM |
| Belvue School | Community Special School | Good | 0.77 KM |
| Gifford Primary School | Community School | Outstanding | 0.88 KM |
| Islip Manor Children'S Centre | Children's Centre | 1.26 KM |
Images
Nearby Streets
| Name | Average Price | Average Sqft | Distance |
|---|---|---|---|
| Paddock Close | £ 0 | 0 | 0.00 KM |
| Brabazon Road | £ 0 | 0 | 0.00 KM |
| Horseshoe Crescent | £ 0 | 0 | 0.00 KM |
| Marley Close | £ 385,000 | 0 | 0.00 KM |
| Surry Crescent | £ 0 | 0 | 0.00 KM |
Nearby Transport
| Name | NLC | TLC | Distance |
|---|---|---|---|
| Greenford | 3136 | GFD | 2.36 KM |
| Northolt Park | 1478 | NLT | 2.59 KM |
| South Greenford | 3138 | SGN | 3.24 KM |
| Southall | 3187 | STL | 3.54 KM |
| Hanwell | 3191 | HAN | 3.99 KM |
Nearby Listings
| Address | Price | Type | Score | Distance |
|---|---|---|---|---|
| Ferrymead Avenue, Greenford, UB6 | £ 525,000 | BUY | 6 / 10 | 0.00 KM |
| Greenford, UB6 | £ 550,000 | BUY | 6 / 10 | 0.00 KM |
| Ferrymead Avenue, Greenford, UB6 | £ 595,000 | BUY | 7 / 10 | 0.05 KM |
| Greenford, UB6 | £ 750,000 | BUY | Unknown | 0.10 KM |
| Ferrymead Avenue, Greenford, UB6 | £ 525,000 | BUY | 6 / 10 | 0.14 KM |
Nearby Properties
| Address | Price | Distance |
|---|---|---|
| 158 Ferrymead Avenue | £ 92,000 | 0.05 KM |
| 147 Ferrymead Avenue | £ 294,000 | 0.05 KM |
| 166 Ferrymead Avenue | £ 267,500 | 0.05 KM |
| 151 Ferrymead Avenue | £ 283,000 | 0.05 KM |
| 149 Ferrymead Avenue | £ 295,500 | 0.05 KM |