Leopold Street, Oxford, OX4
By Breckon & Breckon
£ 325,000
Reviews
2 out of 5 stars
Breckon & Breckon says ..
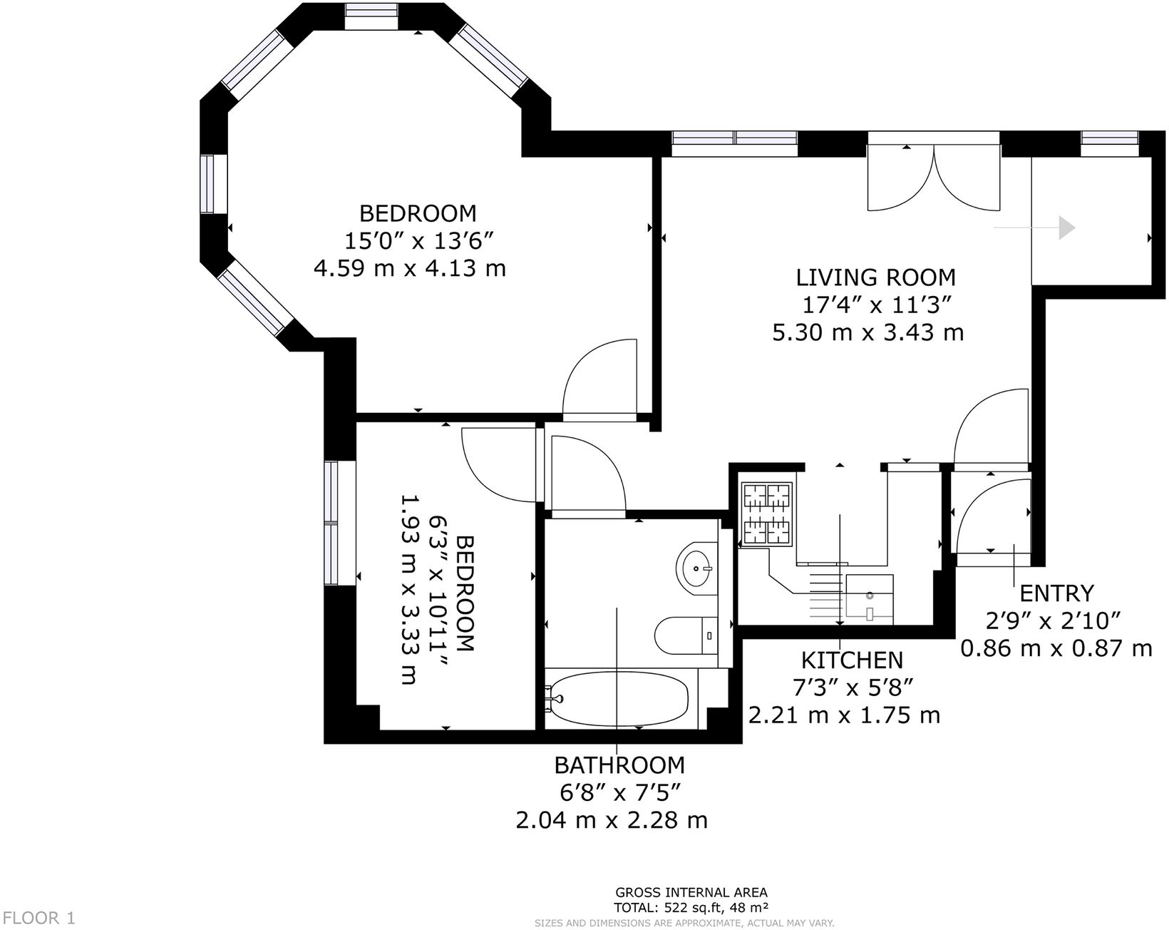
A well-presented first floor 2-bedroom apartment available with no onward chain.The purpose-built block is well located within a few minutes’ walk from the vibrant Cowley Road and has good access to the city centre.
Property Oracle says ..
This property is a two bedroom flat located in a convenient location in Oxford, close to several schools and transportation links. The flat itself appears to be in good condition, with modern fixtures and fittings. However, the property lacks outdoor space. While the list price is below the average price for the area, it is important to consider the significantly smaller size of this property compared to the average. The lack of plot size is a significant drawback.
Therefore, we give this property 5 / 10. *Disclaimer: This is our option and does constitute a recommendation or financial advice. Do your own research. *
- Price
- 6
- Condition
- 8
- Location
- 7
- Land
- 1
- Bedrooms
- 2
- Bathrooms
- 1
- Sqft (est)
- 516.67
The heatmap indicates the level of crime in the area. The color of the heatmap indicates the crime severity and recency.
Metrics Year-on-Year
- Average area value
- 524,714.00 £Increased by 15.54 %
- Est sale value
- 318,785.39 £Increased by 48.67 %
- Average area rental value
- 1,989.00 £/moIncreased by 4.74 %
- Est letting value
- 1,033.34 £/moIncreased by 100.00 %
- Est rental Yield
- 4.55 %Decreased by 9.36 %
- Crime Rate
- 19.00 %Unchanged by 0.00 %
Agent Activity
Breckon & Breckon created the listing.
Nearby Schools
| Name | Type | Ofsted | Distance |
|---|---|---|---|
| Comper Foundation Stage School | Local Authority Nursery School | Good | 0.31 KM |
| East Oxford Children And Family Centre | Children's Centre Linked Site | 0.46 KM | |
| East Oxford Primary School | Community School | Good | 0.51 KM |
| Larkrise Primary School | Academy Sponsor Led | 0.76 KM | |
| Oxford International College | Other Independent School | Good | 0.89 KM |
Images
Nearby Streets
| Name | Average Price | Average Sqft | Distance |
|---|---|---|---|
| Penhurst Court | £ 0 | 0 | 0.00 KM |
| Sidney Street | £ 0 | 0 | 0.00 KM |
| Lysander Court | £ 0 | 0 | 0.00 KM |
| Collins Street | £ 0 | 0 | 0.00 KM |
| Percy Street | £ 0 | 0 | 0.00 KM |
Nearby Transport
| Name | NLC | TLC | Distance |
|---|---|---|---|
| Oxford | 3115 | OXF | 4.06 KM |
| Radley | 3118 | RAD | 6.51 KM |
| Oxford Parkway | 3121 | OXP | 7.97 KM |
| Islip | 3110 | ISP | 9.06 KM |
Nearby Listings
| Address | Price | Type | Score | Distance |
|---|---|---|---|---|
| Leopold Street, Oxford, OX4 | £ 325,000 | BUY | 5 / 10 | 0.00 KM |
| Hawkins Street, East Oxford, OX4 | £ 585,000 | BUY | 6 / 10 | 0.07 KM |
| Leopold Street, East Oxford, OX4 | £ 275,000 | BUY | 6 / 10 | 0.08 KM |
| Leopold Street, East Oxford, OX4 | £ 350,000 | BUY | 5 / 10 | 0.08 KM |
| Hurst Street East Oxford | £ 750,000 | BUY | 7 / 10 | 0.09 KM |
Nearby Properties
| Address | Price | Distance |
|---|---|---|
| 25 Leopold Street | £ 91,000 | 0.06 KM |
| 27 Leopold Street | £ 80,000 | 0.06 KM |
| 26 Leopold Street | £ 75,000 | 0.06 KM |
| 28 Leopold Street | £ 495,000 | 0.06 KM |
| 30 Leopold Street | £ 422,500 | 0.06 KM |