Porthcrawl Green, Tattenhoe
By Homes on Web Ltd
£ 415,000
Reviews
3 out of 5 stars
Homes on Web Ltd says ..
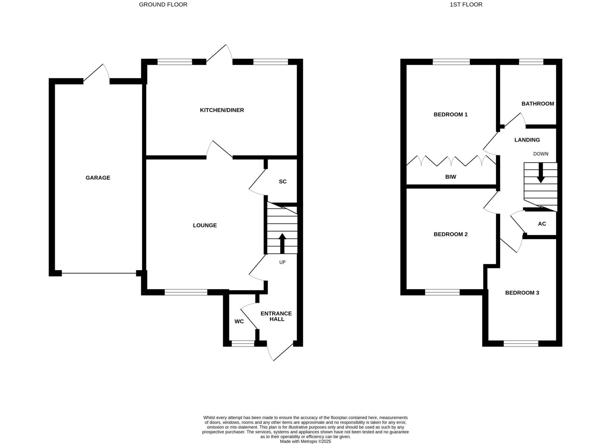
THREE BEDROOM SEMI DETACHED.....GARAGE (18`8 X 8`11 max).....KITCHEN DINER (15`8 X 9`9 max)....13 SOLA PANALS 5.2 KW....EPC A....POTENTAL TO EXTEND STP...THREE GOOD SIZED BEDROOMS....GARDEN ROOM/OFFICE (7`6 X 7`6 max) ....GILES BROOK & SHENLEY BROOK END SCHOOL CATCHMENTS...ELECTRIC VEHICLE CHARGER
Property Oracle says ..
The property is a 3-bedroom, 1-bathroom semi-detached house located in Tattenhoe, Milton Keynes. It has a list price of £415,000 and is 880 sqft. The property benefits from a well-maintained garden and appears to be in good condition, with a recently updated kitchen and modern fixtures and fittings throughout. The images show a modern interior with a contemporary aesthetic. There is also a detached garden office/studio. The average house price in the area is £441,394, with an average price per sqft of £388. While the subject property is smaller than the average at 880 sqft, compared to nearby properties of similar type, the price seems reasonable, considering its presented condition and the inclusion of a garden and garden office. The location is also positive, with nearby schools and transport links.
Therefore, we give this property 7 / 10. *Disclaimer: This is our option and does constitute a recommendation or financial advice. Do your own research. *
- Price
- 7
- Condition
- 9
- Location
- 8
- Land
- 7
- Bedrooms
- 3
- Bathrooms
- 1
- Sqft (est)
- 880.00
The heatmap indicates the level of crime in the area. The color of the heatmap indicates the crime severity and recency.
Metrics Year-on-Year
- Average area value
- 509,270.00 £Increased by 21.75 %
- Est sale value
- 700,480.00 £Increased by 61.79 %
- Average area rental value
- 1,536.00 £/moDecreased by 13.42 %
- Est letting value
- 1,760.00 £/moUnchanged by 0.00 %
- Est rental Yield
- 3.62 %Decreased by 28.88 %
- Crime Rate
- 3.00 %Unchanged by 0.00 %
Agent Activity
Homes on Web Ltd created the listing.
Nearby Schools
| Name | Type | Ofsted | Distance |
|---|---|---|---|
| Howe Park School | Community School | Outstanding | 0.65 KM |
| Milton Keynes Preparatory School | Other Independent School | 0.96 KM | |
| Emerson Valley School | Community School | Good | 1.09 KM |
| Sunshine Children'S Centre | Children's Centre | 1.40 KM | |
| Merebrook Infant School | Community School | Good | 1.40 KM |
Images
Nearby Streets
| Name | Average Price | Average Sqft | Distance |
|---|---|---|---|
| Muirfield Drive | £ 0 | 0 | 0.00 KM |
| Denham Close | £ 0 | 0 | 0.00 KM |
| Ainsdale Close | £ 0 | 0 | 0.00 KM |
| Buckingham Road | £ 0 | 0 | 0.00 KM |
| Taunton Deane redway | £ 0 | 0 | 0.00 KM |
Nearby Transport
| Name | NLC | TLC | Distance |
|---|---|---|---|
| Milton Keynes Central | 1378 | MKC | 4.21 KM |
| Bletchley | 1360 | BLY | 4.42 KM |
| Fenny Stratford | 1377 | FEN | 6.67 KM |
| Wolverton | 1364 | WOL | 8.32 KM |
| Bow Brickhill | 1381 | BWB | 8.91 KM |
Nearby Listings
| Address | Price | Type | Score | Distance |
|---|---|---|---|---|
| Porthcrawl Green, Tattenhoe | £ 415,000 | BUY | 7 / 10 | 0.00 KM |
| Holyhead Crescent, Tattenhoe, Milton Keynes | £ 350,000 | BUY | 7 / 10 | 0.04 KM |
| Holyhead Crescent, Tattenhoe, Milton Keynes | £ 365,000 | BUY | 7 / 10 | 0.05 KM |
| Porthcawl Green, Tattenhoe, Milton Keynes | £ 350,000 | BUY | 6 / 10 | 0.07 KM |
| Porthcawl Green, Tattenhoe, MK4 | £ 290,000 | BUY | 7 / 10 | 0.10 KM |
Nearby Properties
| Address | Price | Distance |
|---|---|---|
| 10 Porthcawl Green | £ 184,000 | 0.01 KM |
| 20 Porthcawl Green | £ 250,000 | 0.01 KM |
| 24 Porthcawl Green | £ 183,000 | 0.01 KM |
| 26 Porthcawl Green | £ 166,500 | 0.01 KM |
| 34 Porthcawl Green | £ 218,995 | 0.01 KM |