Willow Street, Ellesmere.
Halls Estate Agents logo

Willow Street, Ellesmere.

By Halls Estate Agents

£ 280,000

Reviews

3 out of 5 stars

Halls Estate Agents says ..

An attractive investment opportunity comprising two well proportioned two-bedroom semi-detached homes currently occupied on AST's and providing a healthy gross yield of circa 5%, with scope to improve the return, conveniently situated within the heart of the lakeland town of Ellesmere.

Property Oracle says ..

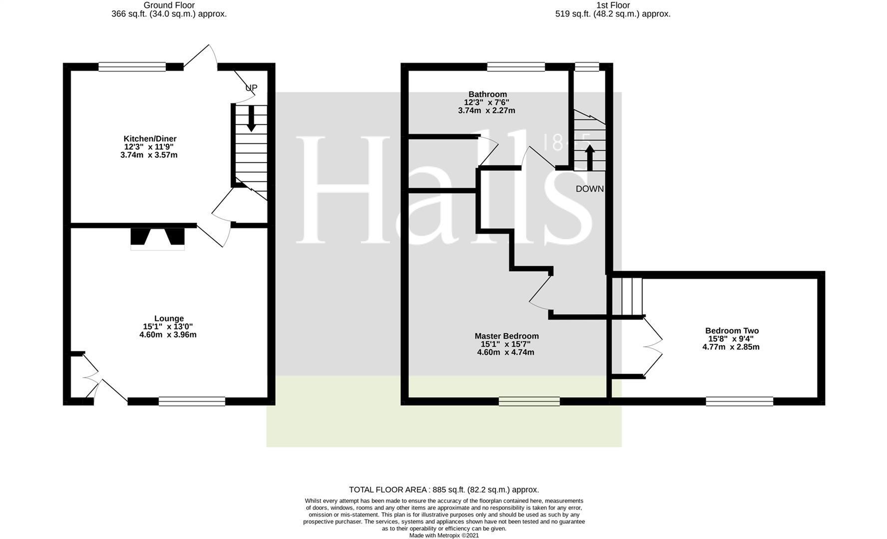
This is a four-bedroom semi-detached property located on Willow Street in Ellesmere, Shropshire. The property is in a fair condition, but it could benefit from some modernisation. The property has a small garden to the rear. The property is within walking distance of the town center and local schools. The property is listed for sale at £280,000.

Therefore, we give this property 6 / 10. *Disclaimer: This is our option and does constitute a recommendation or financial advice. Do your own research. *

Price
7
Condition
5
Location
7
Land
6
Bedrooms
4
Bathrooms
2
Sqft (est)
800.19

The heatmap indicates the level of crime in the area. The color of the heatmap indicates the crime severity and recency.

Metrics Year-on-Year

Average area value
299,075.00 £
Decreased by 4.24 %
from 312,305.00 £
Est sale value
248,859.09 £
Decreased by 11.65 %
from 281,666.88 £
Average area rental value
860.00 £/mo
Increased by 13.76 %
from 756.00 £/mo
Est letting value
0.00 £/mo
from 0.00 £/mo
Est rental Yield
3.45 %
Increased by 18.97 %
from 2.90 %
Crime Rate
174.00 %
Unchanged by 0.00 %
from 174.00 %

Agent Activity

  • Halls Estate Agents created the listing.

Nearby Schools

NameTypeOfstedDistance
Ellesmere Primary SchoolAcademy ConverterGood0.79 KM
Lakelands AcademyAcademy ConverterGood0.89 KM
Ellesmere And Wem Children'S CentreChildren's Centre1.38 KM
Ellesmere CollegeOther Independent School1.45 KM
Criftins Cofe Primary SchoolVoluntary Controlled SchoolOutstanding5.43 KM

Images

1719WSFb.jpg fN11KRnU7O38Z_VUwI4ooeu-C50.jpg AnrWZ1DwaiblnsKEzRFfcDpkMIA.jpg 59304_303578-1_IMG_08_0003.jpeg 59304_303578-1_IMG_10_0003.jpeg 59304_303578-1_IMG_09_0003.jpeg AU3qP102HKlzCeqDMiTKqIltqG4.jpg Y8hBJ5I2ESRIoRVNrxyiWfhQwx0.jpg Z8Qku6SOIL3pMBWmSZ2Yr8ZvJr4.jpg

Nearby Streets

NameAverage PriceAverage SqftDistance
Talbot Street £ 000.00 KM
St John's Close £ 000.00 KM
Heron Close £ 000.00 KM
Hillcrest £ 425,00000.00 KM
Sandy Lane £ 000.00 KM

Nearby Listings

AddressPriceTypeScoreDistance
Willow Street, Ellesmere. £ 280,000BUY6 / 100.00 KM
Development Land, Willow Street, Ellesmere £ 75,000BUY6 / 100.07 KM
Willow Street, Ellesmere £ 290,000BUY8 / 100.07 KM
Scotland Street, Ellesmere. £ 290,000BUY6 / 100.10 KM
Scotland Street, Ellesmere. £ 285,000BUY6 / 100.11 KM

Nearby Properties

AddressPriceDistance
9 Willow Street £ 465,0000.00 KM
Sandford £ 270,0000.07 KM
Garth £ 210,0000.07 KM
6 Willow Street £ 125,0000.07 KM
4 Willow Street £ 198,0000.07 KM