Mytton Oak Road, Bowbrook, Shrewsbury
Cooper Green Pooks logo

Mytton Oak Road, Bowbrook, Shrewsbury

By Cooper Green Pooks

£ 400,000

Reviews

3 out of 5 stars

Cooper Green Pooks says ..

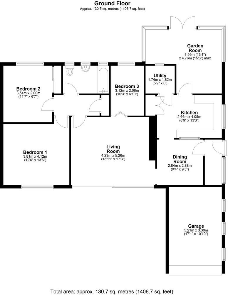
This unique, architect designed bungalow is well situated in a secluded plot on the fringe of town, with lovey landscaped gardens to both the front and rear.

Property Oracle says ..

Therefore, we give this property 6 / 10. *Disclaimer: This is our option and does constitute a recommendation or financial advice. Do your own research. *

Price
5
Condition
6
Location
7
Land
7
Bedrooms
3
Bathrooms
1
Sqft (est)
1,183.18

The heatmap indicates the level of crime in the area. The color of the heatmap indicates the crime severity and recency.

Metrics Year-on-Year

Average area value
305,833.00 £
Decreased by 15.42 %
from 361,600.00 £
Est sale value
337,206.30 £
Decreased by 25.59 %
from 453,157.94 £
Average area rental value
1,050.00 £/mo
Decreased by 23.75 %
from 1,377.00 £/mo
Est letting value
0.00 £/mo
Decreased by 100.00 %
from 1,183.18 £/mo
Est rental Yield
4.12 %
Decreased by 9.85 %
from 4.57 %
Crime Rate
8.00 %
Unchanged by 0.00 %
from 8.00 %

Agent Activity

  • Cooper Green Pooks created the listing.

Nearby Schools

NameTypeOfstedDistance
Oxon Cofe Primary SchoolVoluntary Controlled SchoolOutstanding0.86 KM
Radbrook Primary SchoolAcademy ConverterGood2.56 KM
Woodfield Infant SchoolAcademy Converter2.62 KM
St George'S Junior SchoolAcademy Converter2.72 KM
Bicton Cofe Primary School And NurseryVoluntary Controlled SchoolRequires improvement3.32 KM

Images

9808951e-b7eb-4f37-8158-1cf5006cb48c.jpg 3a42d6fb-98d3-4091-809c-2b9dd3e16c6c.jpg 8417f498-32df-4c31-8d2f-0b1d1b0c3458.jpg 7fe0ee4b-1b5c-4ed4-a8de-778617809fc2.jpg eb037907-f0d3-4a3f-8a34-de05a6d4f64f.jpg dcd82428-6dda-48bf-8056-4047921de8da.jpg aec195a6-b5fb-41ce-b06b-2e8bc45f98d5.jpg 56141c68-68b8-4540-a366-f1f8cb956ab7.jpg c38219c6-b948-498f-844d-91828106290e.jpg 0b2c4933-122f-408b-be4c-9db51d1b35e0.jpg Map 1.jpg 782deb55-0f13-4003-b278-ba1ad15edd9e.jpg 23b541ba-8a68-472b-9bdd-c82e0c1789b5.jpg 82e2f457-d9ee-43ba-8ebd-8d31001979fb.jpg 937a5b2a-b771-45d9-baa5-9fe22d1c7fa3.jpg

Nearby Streets

NameAverage PriceAverage SqftDistance
Somerby Drive £ 215,00000.00 KM
Mytton Villa £ 000.00 KM
Farfield Close £ 000.00 KM
Holyhead Road £ 315,00000.00 KM
Shelton Oak Priory £ 750,00000.00 KM

Nearby Transport

NameNLCTLCDistance
Shrewsbury4387SHR5.42 KM

Nearby Listings

AddressPriceTypeScoreDistance
Mytton Oak Road, Bowbrook, Shrewsbury £ 400,000BUY6 / 100.00 KM
8 Whitty Close, Bowbrook, Shrewsbury, SY5 8QA £ 345,000BUY8 / 100.07 KM
Whitty Close, Bowbrook, Shrewsbury, SY5 8QA £ 415,000BUY7 / 100.07 KM
Carlton Close, Bicton Heath, Shrewsbury, SY3 5JA £ 340,000BUY6 / 100.09 KM
Carlton Close, Bicton Heath, Shrewbury £ 495,000BUY7 / 100.19 KM

Nearby Properties

AddressPriceDistance
7 Saxon Court £ 220,0000.07 KM
8 Saxon Court £ 230,5000.07 KM
5 Saxon Court £ 300,0000.07 KM
16 Whitty Close £ 272,5000.07 KM
5 Whitty Close £ 345,0000.08 KM