Normie & Co says ..
A stunning one bedroom apartment with breathtaking views of the City and River Irwell.
Property Oracle says ..
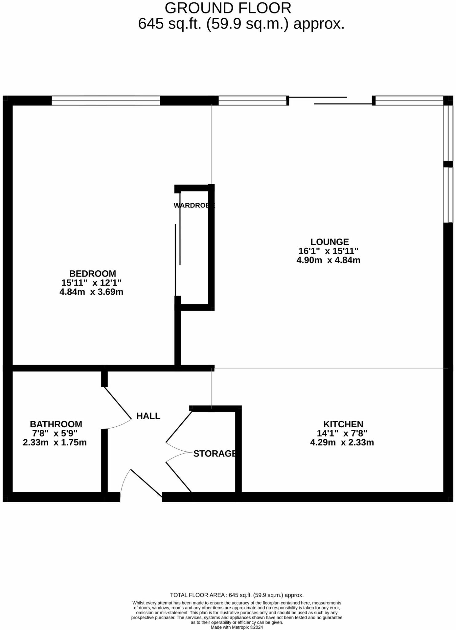
This property is located in Salford, a city in Greater Manchester with good transport links to Manchester city centre. The apartment itself is modern and well-presented, with a good-sized balcony. The property is within walking distance of Salford Central train station and several other transport links. There are also a number of schools within a reasonable distance. However, the provided data does not give details on the quality of local amenities or the specific character of the neighbourhood. The price seems reasonable compared to the average price per square foot in the area, but more information on the specific condition and size of the property would be needed to make a more definitive assessment. The apartment appears to be in excellent condition and is modern in style.
Therefore, we give this property 7 / 10. *Disclaimer: This is our option and does constitute a recommendation or financial advice. Do your own research. *
- Price
- 7
- Condition
- 10
- Location
- 8
- Land
- 6
- Bedrooms
- 1
- Bathrooms
- 1
- Sqft (est)
- 585.00
- Lot (est)
- 645.00
The heatmap indicates the level of crime in the area. The color of the heatmap indicates the crime severity and recency.
Metrics Year-on-Year
- Average area value
- 352,520.00 £Increased by 60.35 %
- Est sale value
- 331,695.00 £Increased by 75.54 %
- Average area rental value
- 1,504.00 £/moIncreased by 8.59 %
- Est letting value
- 1,170.00 £/moUnchanged by 0.00 %
- Est rental Yield
- 5.12 %Decreased by 32.28 %
- Crime Rate
- 0.00 %
Agent Activity
Normie & Co created the listing.
Nearby Schools
| Name | Type | Ofsted | Distance |
|---|---|---|---|
| Abbey College Manchester | Other Independent School | 0.60 KM | |
| Chetham'S School Of Music | Other Independent School | 0.68 KM | |
| The Cooperative College | Miscellaneous | 1.11 KM | |
| The Friars Primary School | Community School | Requires improvement | 1.22 KM |
| The Cathedral School Of St Peter And St John Rc Primary | Voluntary Aided School | Requires improvement | 1.29 KM |
Images
Nearby Streets
| Name | Average Price | Average Sqft | Distance |
|---|---|---|---|
| Clowes Street | £ 0 | 0 | 0.00 KM |
| Clermont-Ferrand Square | £ 0 | 0 | 0.00 KM |
| Parsonage Gardens | £ 795,000 | 0 | 0.00 KM |
| Blackfriars Street | £ 0 | 0 | 0.00 KM |
| Caxton Street | £ 0 | 0 | 0.00 KM |
Nearby Transport
| Name | NLC | TLC | Distance |
|---|---|---|---|
| Salford Central | 2798 | SFD | 0.65 KM |
| Manchester Victoria | 2970 | MCV | 0.83 KM |
| Deansgate | 2963 | DGT | 1.07 KM |
| Manchester Oxford Road | 2966 | MCO | 1.31 KM |
| Manchester Piccadilly | 2968 | MAN | 2.12 KM |
Nearby Listings
| Address | Price | Type | Score | Distance |
|---|---|---|---|---|
| The Edge, Clowes Street, Salford, M3 | £ 300,000 | BUY | Unknown | 0.00 KM |
| The Edge, Clowes Street, Salford | £ 475,000 | BUY | 6 / 10 | 0.00 KM |
| The Edge, Clowes Street, Salford | £ 290,000 | BUY | Unknown | 0.00 KM |
| Clowes Street, Salford, M3 | £ 270,000 | BUY | 7 / 10 | 0.00 KM |
| The Edge, Clowes Street, Salford | £ 475,000 | BUY | Unknown | 0.00 KM |
Nearby Properties
| Address | Price | Distance |
|---|---|---|
| 16 Bridgewater Street | £ 368,592 | 0.30 KM |
| 6 Evans Street | £ 261,000 | 0.63 KM |
| 22 Evans Street | £ 37,500 | 0.63 KM |
| 7 Evans Street | £ 72,500 | 0.63 KM |
| 29 Evans Street | £ 145,000 | 0.63 KM |