CH
St. Peter's Church, 124 Dartmouth Park Hill, N19
By Chestertons Estate Agents
£ 1,250,000
Chestertons Estate Agents says ..
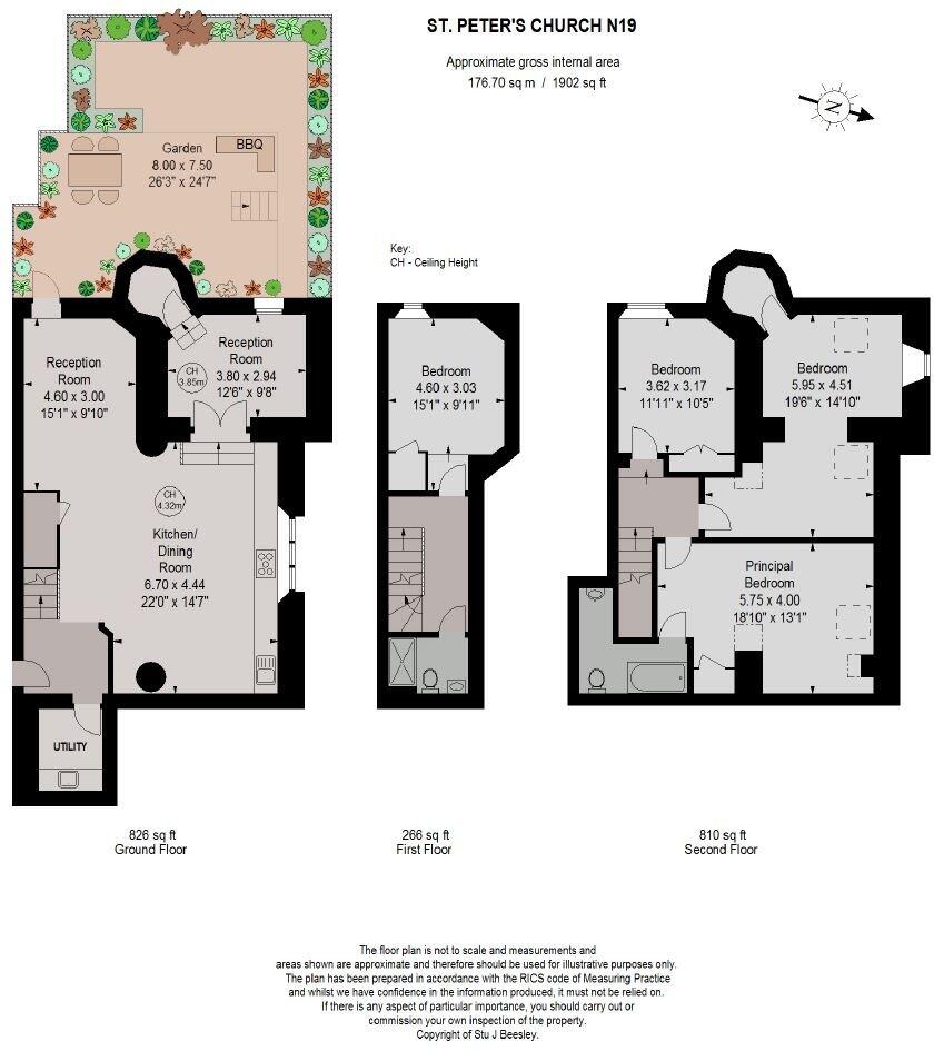
A striking four-bedroom home on one of Dartmouth Park’s premier streets. Spanning over 1,900 sq. ft across three light-filled floors, the property features a dramatic double-height living space with exposed brick, wood accents, and custom detailing.
- Bedrooms
- 4
- Bathrooms
- 3
The heatmap indicates the level of crime in the area. The color of the heatmap indicates the crime severity and recency.
Metrics Year-on-Year
- Average area value
- 629,167.00 £Decreased by 26.23 %
- Average area rental value
- 2,211.00 £/moDecreased by 8.37 %
- Est rental Yield
- 4.22 %Increased by 24.12 %
- Crime Rate
- 8.00 %Unchanged by 0.00 %
from 852,837.00 £
from 2,413.00 £/mo
from 3.40 %
from 8.00 %
Agent Activity
Chestertons Estate Agents created the listing.
Nearby Schools
| Name | Type | Ofsted | Distance |
|---|---|---|---|
| Hargrave Park Primary School | Community School | Good | 0.05 KM |
| New River College Medical | Pupil Referral Unit | Outstanding | 0.33 KM |
| St Joseph'S Catholic Primary School | Voluntary Aided School | Outstanding | 0.46 KM |
| Archway Children'S Centre | Children's Centre | 0.48 KM | |
| Brookfield Primary School | Community School | Good | 0.49 KM |
Images
Nearby Streets
| Name | Average Price | Average Sqft | Distance |
|---|---|---|---|
| Laurel Close | £ 0 | 0 | 0.00 KM |
| Hazel Close | £ 0 | 0 | 0.00 KM |
| Larch Close | £ 0 | 0 | 0.00 KM |
| Navigator Square | £ 0 | 0 | 0.00 KM |
| A1 | £ 0 | 0 | 0.00 KM |
Nearby Transport
| Name | NLC | TLC | Distance |
|---|---|---|---|
| Upper Holloway | 1524 | UHL | 1.20 KM |
| Gospel Oak | 1409 | GPO | 1.55 KM |
| Kentish Town | 1553 | KTN | 1.58 KM |
| Kentish Town West | 1449 | KTW | 2.14 KM |
| Camden Road | 1440 | CMD | 2.56 KM |
Nearby Listings
| Address | Price | Type | Score | Distance |
|---|---|---|---|---|
| St. Peter's Church, 124 Dartmouth Park Hill, N19 | £ 1,250,000 | BUY | Unknown | 0.00 KM |
| Dartmouth Park Hill, Archway, London, N19 | £ 1,050,000 | BUY | 8 / 10 | 0.01 KM |
| Dartmouth Park Hill, London, N19 | £ 1,250,000 | BUY | 7 / 10 | 0.02 KM |
| St Peter's Church. Dartmouth Park Hill, London, N19 | £ 1,050,000 | BUY | 6 / 10 | 0.04 KM |
| 107 Dartmouth Park Hill, Camden, London, N19 | £ 300,000 | BUY | 5 / 10 | 0.06 KM |
Nearby Properties
| Address | Price | Distance |
|---|---|---|
| 250 Salisbury Walk | £ 225,000 | 0.07 KM |
| 225 Salisbury Walk | £ 212,000 | 0.07 KM |
| 259 Salisbury Walk | £ 35,000 | 0.07 KM |
| 274 Salisbury Walk | £ 189,000 | 0.07 KM |
| 222 Salisbury Walk | £ 145,000 | 0.07 KM |