TO
South Cliff, Eastbourne
By Town Property/Town Flats/Town Rentals
£ 280,000
Reviews
3 out of 5 stars
Town Property/Town Flats/Town Rentals says ..
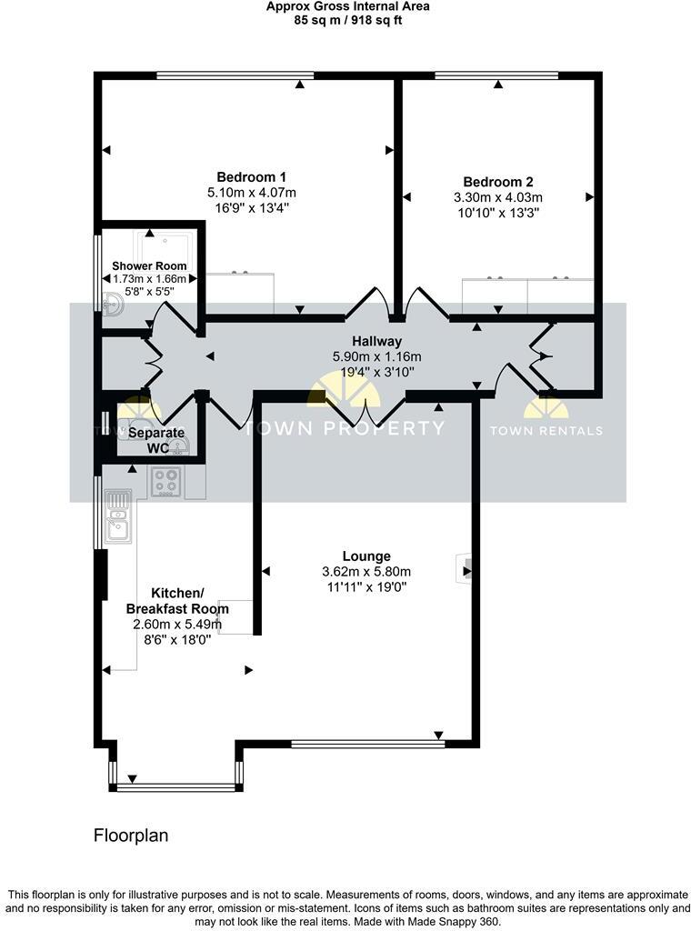
*** GUIDE PRICE £280,000 - £300,000 *** Situated in the highly sought after South Cliff area, this beautifully presented two bedroom hall floor apartment offers an exceptional opportunity to enjoy coastal living at its finest. Located within the prestigious Regency Court, this spacious proper...
Property Oracle says ..
Therefore, we give this property 7 / 10. *Disclaimer: This is our option and does constitute a recommendation or financial advice. Do your own research. *
- Price
- 8
- Condition
- 7
- Location
- 8
- Land
- 6
- Bedrooms
- 2
- Bathrooms
- 1
- Sqft (est)
- 850.75
The heatmap indicates the level of crime in the area. The color of the heatmap indicates the crime severity and recency.
Metrics Year-on-Year
- Average area value
- 377,300.00 £Increased by 2.31 %
- Est sale value
- 342,852.25 £Increased by 9.51 %
- Average area rental value
- 1,214.00 £/moDecreased by 5.45 %
- Est letting value
- 850.75 £/moUnchanged by 0.00 %
- Est rental Yield
- 3.86 %Decreased by 7.66 %
- Crime Rate
- 4.00 %Unchanged by 0.00 %
from 368,793.00 £
from 313,076.00 £
from 1,284.00 £/mo
from 850.75 £/mo
from 4.18 %
from 4.00 %
Agent Activity
Town Property/Town Flats/Town Rentals created the listing.
Nearby Schools
| Name | Type | Ofsted | Distance |
|---|---|---|---|
| Eastbourne College | Other Independent School | 0.46 KM | |
| Bourne Primary School | Community School | Good | 1.78 KM |
| St Andrew'S Prep | Other Independent School | 1.81 KM | |
| Bede'S Prep School | Other Independent School | 1.83 KM | |
| Devonshire Children'S Centre | Children's Centre | 1.85 KM |
Images
Nearby Streets
| Name | Average Price | Average Sqft | Distance |
|---|---|---|---|
| Connaught Road | £ 0 | 0 | 0.00 KM |
| Junction Road | £ 0 | 0 | 0.00 KM |
| Saint John's Road | £ 0 | 0 | 0.00 KM |
| Upper Avenue Roundabout | £ 0 | 0 | 0.00 KM |
| Ivy Lane | £ 162,500 | 0 | 0.00 KM |
Nearby Transport
| Name | NLC | TLC | Distance |
|---|---|---|---|
| Eastbourne | 5448 | EBN | 1.11 KM |
| Hampden Park (Sussex) | 5450 | HMD | 4.12 KM |
| Pevensey And Westham | 5461 | PEV | 7.83 KM |
| Polegate | 5455 | PLG | 8.02 KM |
| Pevensey Bay | 5462 | PEB | 9.29 KM |
Nearby Listings
| Address | Price | Type | Score | Distance |
|---|---|---|---|---|
| South Cliff, Eastbourne | £ 280,000 | BUY | 7 / 10 | 0.00 KM |
| South Cliff, Eastbourne | £ 290,000 | BUY | 6 / 10 | 0.00 KM |
| South Cliff, Eastbourne | £ 325,000 | BUY | 4 / 10 | 0.01 KM |
| South Cliff, Eastbourne | £ 300,000 | BUY | 7 / 10 | 0.01 KM |
| South Cliff, Eastbourne | £ 325,000 | BUY | 6 / 10 | 0.01 KM |
Nearby Properties
| Address | Price | Distance |
|---|---|---|
| 9 South Cliff | £ 373,800 | 0.12 KM |
| 18 Jevington Gardens | £ 440,000 | 0.17 KM |
| 14 Jevington Gardens | £ 205,000 | 0.17 KM |
| 16 Jevington Gardens | £ 12,500 | 0.17 KM |
| 15a South Cliff | £ 169,000 | 0.19 KM |