Sunte Park, Haywards Heath, RH16
By Move Revolution
£ 375,000
Reviews
4 out of 5 stars
Move Revolution says ..
Set on a delightful and quiet spot within easy access of Haywards Heath station and Lindfield High Street, a modern two bedroom home on an excellent plot with a large garden.
Property Oracle says ..
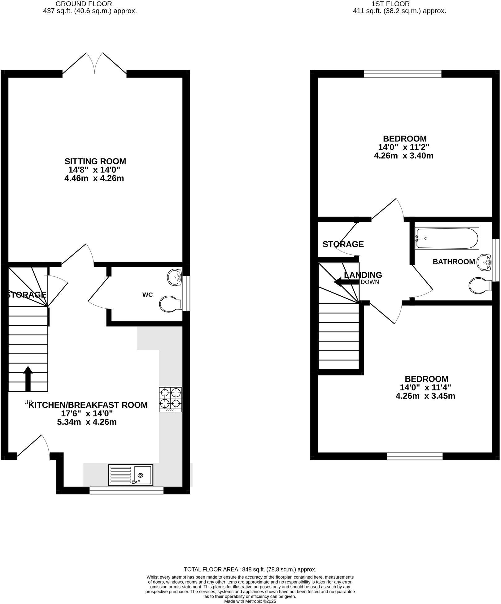
This property is a modern semi-detached house located in Sunte Park, Haywards Heath. The location benefits from being close to Haywards Heath train station, providing convenient access to London and other major towns. Several schools are also within a reasonable distance, including highly-rated primary and secondary options. The property itself is in excellent condition, appearing recently renovated or newly built. It features a well-maintained garden and ample parking space. The asking price of £375,000 is significantly lower than the average house price in the area (£586,429), and also lower than other similar properties in the immediate vicinity. However, the lack of plot size data and the smaller size of the property (755.60 sqft compared to the average of 1,282 sqft) should be considered. Overall, this property presents good value for money, especially considering its modern condition and convenient location.
Therefore, we give this property 8 / 10. *Disclaimer: This is our option and does constitute a recommendation or financial advice. Do your own research. *
- Price
- 8
- Condition
- 10
- Location
- 9
- Land
- 7
- Bedrooms
- 2
- Bathrooms
- 1
- Sqft (est)
- 755.60
The heatmap indicates the level of crime in the area. The color of the heatmap indicates the crime severity and recency.
Metrics Year-on-Year
- Average area value
- 890,625.00 £Increased by 35.96 %
- Est sale value
- 430,692.00 £Increased by 58.77 %
- Average area rental value
- 1,412.00 £/moDecreased by 13.11 %
- Est letting value
- 0.00 £/mo
- Est rental Yield
- 1.90 %Decreased by 36.24 %
- Crime Rate
- 0.00 %
Agent Activity
Move Revolution created the listing.
Nearby Schools
| Name | Type | Ofsted | Distance |
|---|---|---|---|
| My Choice School - Oak House | Other Independent Special School | Requires improvement | 0.65 KM |
| Oathall Community College | Community School | Good | 0.99 KM |
| Central Education Ltd | Other Independent Special School | Requires improvement | 1.17 KM |
| Harlands Primary School | Academy Converter | Good | 1.29 KM |
| Blackthorns Community Primary Academy | Academy Converter | Outstanding | 1.38 KM |
Images
Nearby Streets
| Name | Average Price | Average Sqft | Distance |
|---|---|---|---|
| Alder Way | £ 1,250,000 | 0 | 0.00 KM |
| French Gardens | £ 0 | 0 | 0.00 KM |
| Perrymount Road | £ 0 | 0 | 0.00 KM |
| Copyhold Lane | £ 0 | 0 | 0.00 KM |
| Church Road | £ 0 | 0 | 0.00 KM |
Nearby Transport
| Name | NLC | TLC | Distance |
|---|---|---|---|
| Haywards Heath | 5490 | HHE | 0.98 KM |
| Wivelsfield | 5341 | WVF | 5.84 KM |
| Balcombe | 5492 | BAB | 6.39 KM |
| Burgess Hill | 5483 | BUG | 7.22 KM |
Nearby Listings
| Address | Price | Type | Score | Distance |
|---|---|---|---|---|
| Sunte Park, Haywards Heath, RH16 | £ 375,000 | BUY | 8 / 10 | 0.00 KM |
| Sunte Park, Haywards Heath, West Sussex, RH16 | £ 1,850,000 | BUY | 7 / 10 | 0.00 KM |
| Sunte Park, Haywards Heath, West Sussex, RH16 | £ 1,600,000 | BUY | Unknown | 0.06 KM |
| Gander Green, Haywards Heath | £ 900,000 | BUY | 7 / 10 | 0.09 KM |
| Sunte Close, Haywards Heath, RH16 | £ 800,000 | BUY | 7 / 10 | 0.12 KM |
Nearby Properties
| Address | Price | Distance |
|---|---|---|
| 38 Sunte Close | £ 752,500 | 0.14 KM |
| 17 Sunte Close | £ 405,000 | 0.14 KM |
| 21 Sunte Close | £ 700,000 | 0.14 KM |
| 22 Sunte Close | £ 385,000 | 0.14 KM |
| 31 Sunte Close | £ 272,500 | 0.14 KM |