21 Walnut Drive, FInchfield, Wolverhampton, WV3 9HA
By Berriman Eaton
£ 395,000
Reviews
4 out of 5 stars
Berriman Eaton says ..
A well presented and refurbished family home in a sought-after residential location
Property Oracle says ..
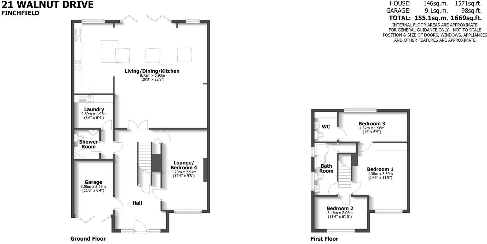
The property is a 4-bedroom, 2-bathroom detached house located in Finchfield, Wolverhampton, with a list price of £395,000. The house has a sizeable plot with a well-maintained garden, including a patio and decking area, and benefits from a modern extension which significantly increases the living space. The extension includes a large open-plan living area with bi-fold doors leading to the garden, and a modern kitchen. The main house also features a separate living room with a fireplace. The bathrooms have been recently updated with modern fixtures. The property appears to be in excellent condition, with no visible signs of disrepair or needing renovation. The internal photos show a modern and well-presented interior. The average house price in the area is £339,909, and the average price per square foot is £316. This property is larger than average at 1,669.48 sqft, and the list price of £395,000 is higher than the average price. However, given the property’s excellent condition, modern extension, and desirable location within Finchfield, the price seems reasonable. Finchfield is a popular area known for its good schools and convenient access to local amenities and transport links. The proximity to several highly-rated schools (Uplands Junior School, St Peter’s Collegiate Academy, and others) is a significant positive. The location also benefits from relatively easy access to Wolverhampton city centre and nearby transport links. Considering all factors, the property presents a strong value proposition.
Therefore, we give this property 8 / 10. *Disclaimer: This is our option and does constitute a recommendation or financial advice. Do your own research. *
- Price
- 8
- Condition
- 9
- Location
- 9
- Land
- 8
- Bedrooms
- 4
- Bathrooms
- 2
- Sqft (est)
- 1,669.48
The heatmap indicates the level of crime in the area. The color of the heatmap indicates the crime severity and recency.
Metrics Year-on-Year
- Average area value
- 631,495.00 £Increased by 90.91 %
- Est sale value
- 701,181.60 £Increased by 24.63 %
- Average area rental value
- 995.00 £/moDecreased by 29.98 %
- Est letting value
- 0.00 £/moDecreased by 100.00 %
- Est rental Yield
- 1.89 %Decreased by 63.37 %
- Crime Rate
- 3.00 %Unchanged by 0.00 %
Agent Activity
Berriman Eaton marked this listing as sold.
Berriman Eaton created the listing.
Nearby Schools
| Name | Type | Ofsted | Distance |
|---|---|---|---|
| Uplands Junior School | Community School | Good | 0.25 KM |
| Westacre Infant School | Community School | Requires improvement | 0.42 KM |
| St Peter'S Collegiate Academy | Academy Converter | Good | 0.79 KM |
| St Michael'S Catholic Primary Academy And Nursery | Academy Converter | Good | 0.97 KM |
| St Edmunds Catholic Academy | Academy Converter | Good | 1.17 KM |
Images
Nearby Streets
| Name | Average Price | Average Sqft | Distance |
|---|---|---|---|
| B4161 | £ 0 | 0 | 0.00 KM |
| The Parklands | £ 0 | 0 | 0.00 KM |
| The Terrace | £ 0 | 0 | 0.00 KM |
| Whitehouse Avenue | £ 0 | 0 | 0.00 KM |
| Chestnut Way | £ 290,000 | 0 | 0.00 KM |
Nearby Transport
| Name | NLC | TLC | Distance |
|---|---|---|---|
| Bilbrook | 4618 | BBK | 5.16 KM |
| Wolverhampton | 1218 | WVH | 5.35 KM |
| Codsall | 4616 | CSL | 6.38 KM |
| Coseley | 1143 | CSY | 9.88 KM |
Nearby Listings
| Address | Price | Type | Score | Distance |
|---|---|---|---|---|
| 21 Walnut Drive, FInchfield, Wolverhampton, WV3 9HA | £ 395,000 | BUY | 8 / 10 | 0.00 KM |
| 9 Weller Court, Finchfield, Wolverhampton | £ 175,000 | BUY | 5 / 10 | 0.08 KM |
| Weller Court, Finchfield, Wolverhampton, West Midlands, WV3 | £ 175,000 | BUY | 6 / 10 | 0.10 KM |
| Finchfield Road West, Finchfield, Wolverhampton, West Midlands, WV3 | £ 200,000 | BUY | 7 / 10 | 0.17 KM |
| The Spinney, Finchfield, Wolverhampton WV3 | £ 299,500 | BUY | Unknown | 0.17 KM |
Nearby Properties
| Address | Price | Distance |
|---|---|---|
| 35 Linden Lea | £ 340,000 | 0.05 KM |
| 15 Linden Lea | £ 351,500 | 0.05 KM |
| 7 Linden Lea | £ 287,000 | 0.05 KM |
| 27 Linden Lea | £ 305,000 | 0.05 KM |
| 21 Linden Lea | £ 200,000 | 0.05 KM |