Christophers says ..
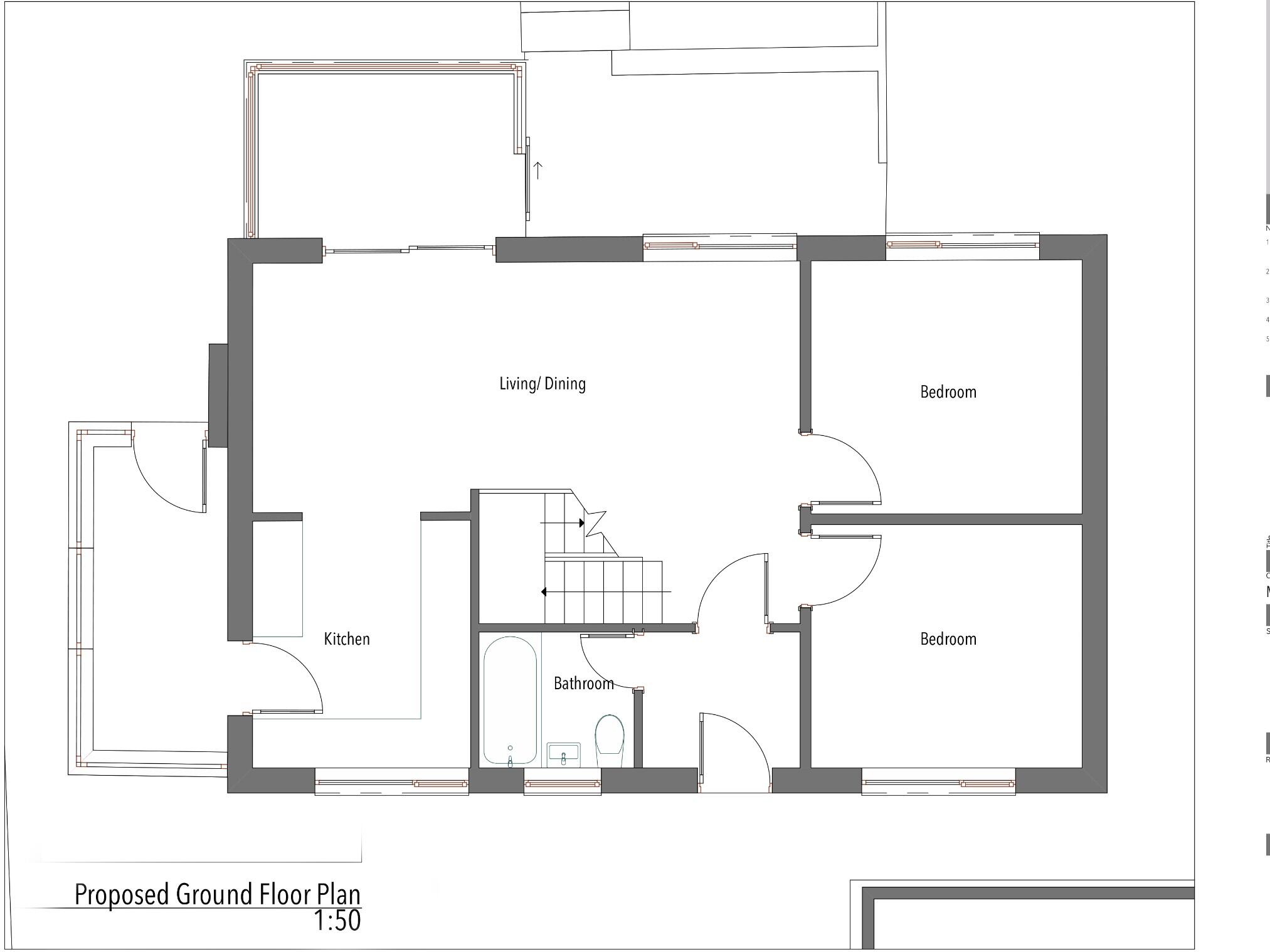
An opportunity to purchase a detached, dormer bungalow which is partly renovated, in the Cornish fishing village of Porthleven.
Property Oracle says ..
Therefore, we give this property 4 / 10. *Disclaimer: This is our option and does constitute a recommendation or financial advice. Do your own research. *
- Price
- 2
- Condition
- 1
- Location
- 7
- Land
- 7
- Bedrooms
- 3
- Bathrooms
- 1
- Sqft (est)
- 348.00
The heatmap indicates the level of crime in the area. The color of the heatmap indicates the crime severity and recency.
Metrics Year-on-Year
- Average area value
- 380,500.00 £Decreased by 7.95 %
- Est sale value
- 106,140.00 £Increased by 0.66 %
- Average area rental value
- 1,550.00 £/moIncreased by 31.91 %
- Est letting value
- 348.00 £/mo
- Est rental Yield
- 4.89 %Increased by 43.40 %
- Crime Rate
- 123.00 %Unchanged by 0.00 %
from 413,363.00 £
from 105,444.00 £
from 1,175.00 £/mo
from 0.00 £/mo
from 3.41 %
from 123.00 %
Agent Activity
Christophers created the listing.
Nearby Schools
| Name | Type | Ofsted | Distance |
|---|---|---|---|
| Porthleven School | Academy Converter | Good | 0.68 KM |
| St Elvan'S | Children's Centre Linked Site | 0.68 KM | |
| Breage Church Of England School | Academy Converter | 3.61 KM | |
| Lizard | Children's Centre Linked Site | 3.80 KM | |
| Helston Children'S Centre | Children's Centre | 3.80 KM |
Images
Nearby Streets
| Name | Average Price | Average Sqft | Distance |
|---|---|---|---|
| B3304 | £ 375,000 | 0 | 0.00 KM |
| Warren Close | £ 0 | 0 | 0.00 KM |
| Parc-an-Maen | £ 0 | 0 | 0.00 KM |
| Hammill's Close | £ 0 | 0 | 0.00 KM |
| Pendeen Road | £ 995,000 | 0 | 0.00 KM |
Nearby Listings
| Address | Price | Type | Score | Distance |
|---|---|---|---|---|
| PORTHLEVEN TR13 | £ 280,000 | BUY | 4 / 10 | 0.00 KM |
| Detached home close to village centre, Porthleven | £ 450,000 | BUY | 6 / 10 | 0.08 KM |
| Ideal Local Buyers Home, Porthleven | £ 200,000 | BUY | 6 / 10 | 0.10 KM |
| Porthleven TR13 | £ 225,000 | BUY | 6 / 10 | 0.11 KM |
| PORTHLEVEN TR13 | £ 125,000 | BUY | 6 / 10 | 0.14 KM |
Nearby Properties
| Address | Price | Distance |
|---|---|---|
| 1 Sunset Gardens | £ 240,000 | 0.00 KM |
| 4 Sunset Gardens | £ 150,000 | 0.00 KM |
| 10 Sunset Gardens | £ 199,000 | 0.00 KM |
| Kimberley | £ 247,500 | 0.11 KM |
| Ashley Wood | £ 210,000 | 0.11 KM |