Clover Crescent, Hellingly, BN27
By Crane & Co Estate Agents
£ 360,000
Reviews
3 out of 5 stars
Crane & Co Estate Agents says ..
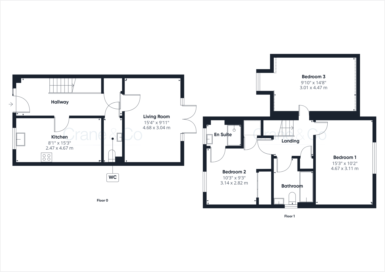
VIDEO & 3D TOUR (Free for all our sellers) PRICE GUIDE £360,000 - £385,000 A beautiful house for a lover of new builds. Immaculately presented, this semi-detached house is a wonderful design having 3 genuine double bedrooms as well as all of the features that you'd ...
Property Oracle says ..
Therefore, we give this property 7 / 10. *Disclaimer: This is our option and does constitute a recommendation or financial advice. Do your own research. *
- Price
- 7
- Condition
- 9
- Location
- 7
- Land
- 7
- Bedrooms
- 3
- Bathrooms
- 2
- Sqft (est)
- 673.61
The heatmap indicates the level of crime in the area. The color of the heatmap indicates the crime severity and recency.
Metrics Year-on-Year
- Average area value
- 408,958.00 £Decreased by 6.86 %
- Est sale value
- 295,714.79 £Increased by 22.97 %
- Average area rental value
- 1,150.00 £/moDecreased by 25.76 %
- Est letting value
- 673.61 £/moUnchanged by 0.00 %
- Est rental Yield
- 3.37 %Decreased by 20.33 %
- Crime Rate
- 44.00 %Unchanged by 0.00 %
from 439,074.00 £
from 240,478.77 £
from 1,549.00 £/mo
from 673.61 £/mo
from 4.23 %
from 44.00 %
Agent Activity
Crane & Co Estate Agents created the listing.
Nearby Schools
| Name | Type | Ofsted | Distance |
|---|---|---|---|
| Hawkes Farm Academy | Academy Sponsor Led | Good | 0.84 KM |
| The Ropemakers' Academy | Free Schools Special | 1.60 KM | |
| Hailsham Community College | Academy Converter | Good | 1.75 KM |
| White House Academy | Academy Sponsor Led | Good | 1.87 KM |
| Grovelands Community Primary School | Foundation School | Good | 2.02 KM |
Images
Nearby Streets
| Name | Average Price | Average Sqft | Distance |
|---|---|---|---|
| Poppy Place | £ 0 | 0 | 0.00 KM |
| Orchid Grove | £ 0 | 0 | 0.00 KM |
| Bluebell Rise | £ 449,975 | 0 | 0.00 KM |
| Iris Close | £ 0 | 0 | 0.00 KM |
| Magnolia Close | £ 0 | 0 | 0.00 KM |
Nearby Transport
| Name | NLC | TLC | Distance |
|---|---|---|---|
| Polegate | 5455 | PLG | 6.89 KM |
| Hampden Park (Sussex) | 5450 | HMD | 9.64 KM |
Nearby Listings
| Address | Price | Type | Score | Distance |
|---|---|---|---|---|
| Clover Crescent, Hellingly, BN27 | £ 360,000 | BUY | 7 / 10 | 0.00 KM |
| Clover Crescent, Hailsham, BN27 4FJ | £ 500,000 | BUY | 7 / 10 | 0.09 KM |
| Foxglove Drive, Hellingly, BN27 | £ 300,000 | BUY | 8 / 10 | 0.12 KM |
| Orchid Grove, Hellingly, BN27 | £ 530,000 | BUY | Unknown | 0.17 KM |
| Clover Crescent, Hellingly, BN27 | £ 465,000 | BUY | 7 / 10 | 0.17 KM |
Nearby Properties
| Address | Price | Distance |
|---|---|---|
| 30 New Road | £ 267,000 | 0.30 KM |
| 25 New Road | £ 526,500 | 0.30 KM |
| 31a New Road | £ 406,000 | 0.30 KM |
| 15 New Road | £ 67,500 | 0.30 KM |
| 18 New Road | £ 370,000 | 0.30 KM |