RE
Critchley Avenue, Dartford, Kent, DA1
By Reeds Rains
£ 260,000
Reviews
3 out of 5 stars
Reeds Rains says ..
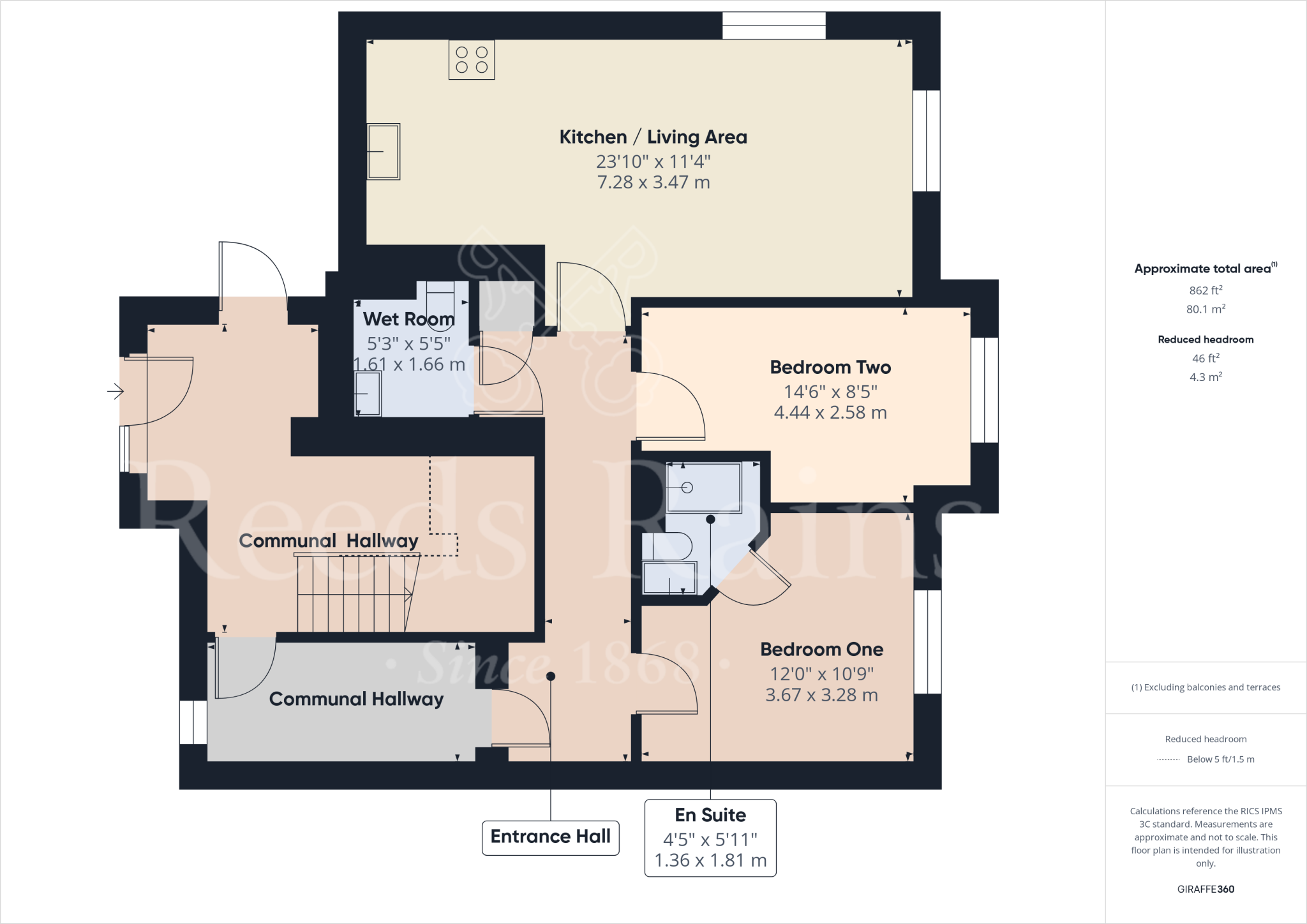
Ground Floor Apartment in West Dartford. This good size two bedroom property boasts a spacious Open plan living area with a modern kitchen. Within walking distance to local amenities and Dartford Station. Perfect for first-time buyers or investors. Book your viewing today! No Chain.
Property Oracle says ..
Therefore, we give this property 6 / 10. *Disclaimer: This is our option and does constitute a recommendation or financial advice. Do your own research. *
- Price
- 8
- Condition
- 7
- Location
- 7
- Land
- 3
- Bedrooms
- 2
- Bathrooms
- 2
- Sqft (est)
- 862.19
The heatmap indicates the level of crime in the area. The color of the heatmap indicates the crime severity and recency.
Metrics Year-on-Year
- Average area value
- 358,479.00 £Decreased by 2.93 %
- Est sale value
- 363,844.18 £Increased by 20.57 %
- Average area rental value
- 1,595.00 £/moIncreased by 2.84 %
- Est letting value
- 862.19 £/moUnchanged by 0.00 %
- Est rental Yield
- 5.34 %Increased by 5.95 %
- Crime Rate
- 3.00 %Unchanged by 0.00 %
from 369,290.00 £
from 301,766.50 £
from 1,551.00 £/mo
from 862.19 £/mo
from 5.04 %
from 3.00 %
Agent Activity
Reeds Rains created the listing.
Nearby Schools
| Name | Type | Ofsted | Distance |
|---|---|---|---|
| Wentworth Primary School | Academy Converter | Good | 0.19 KM |
| Wilmington Grammar School For Girls | Academy Converter | Outstanding | 1.44 KM |
| Haberdashers' Aske'S Crayford Academy | Academy Sponsor Led | Requires improvement | 1.51 KM |
| Crayford | Children's Centre Linked Site | 1.51 KM | |
| Haberdashers' Aske'S Crayford Temple Grove | Academy Converter | 1.62 KM |
Images
Nearby Streets
| Name | Average Price | Average Sqft | Distance |
|---|---|---|---|
| Chastilian Road | £ 0 | 0 | 0.00 KM |
| Dartford Road | £ 0 | 0 | 0.00 KM |
| Maiden Lane | £ 325,000 | 0 | 0.00 KM |
| Western Terrace | £ 550,000 | 0 | 0.00 KM |
| Laurel Way | £ 0 | 0 | 0.00 KM |
Nearby Transport
| Name | NLC | TLC | Distance |
|---|---|---|---|
| Crayford | 5100 | CRY | 1.14 KM |
| Slade Green | 5154 | SGR | 2.85 KM |
| Dartford | 5101 | DFD | 3.57 KM |
| Barnehurst | 5089 | BNH | 3.96 KM |
| Bexley | 5093 | BXY | 4.37 KM |
Nearby Listings
| Address | Price | Type | Score | Distance |
|---|---|---|---|---|
| Critchley Avenue, Dartford, Kent, DA1 | £ 260,000 | BUY | 6 / 10 | 0.00 KM |
| Chastilian Road, Dartford, Kent | £ 500,000 | BUY | 6 / 10 | 0.15 KM |
| Heather Drive, Dartford, Kent, DA1 | £ 775,000 | BUY | 7 / 10 | 0.16 KM |
| Seaton Road, Dartford, DA1 | £ 600,000 | BUY | 7 / 10 | 0.19 KM |
| Chastilian Road, Dartford | £ 450,000 | BUY | Unknown | 0.28 KM |
Nearby Properties
| Address | Price | Distance |
|---|---|---|
| 93 Chastilian Road | £ 237,500 | 0.10 KM |
| 79 Chastilian Road | £ 215,000 | 0.10 KM |
| 65 Chastilian Road | £ 445,000 | 0.10 KM |
| 1 Heather Drive | £ 555,000 | 0.10 KM |
| 65 Heather Drive | £ 520,000 | 0.10 KM |