haart says ..
A stunning extended three-bedroom bungalow in Grafton Close, Maidenhead, featuring spacious living, a modern outdoor kitchen, hot tub, and sauna—perfect for luxurious family living and entertaining
Property Oracle says ..
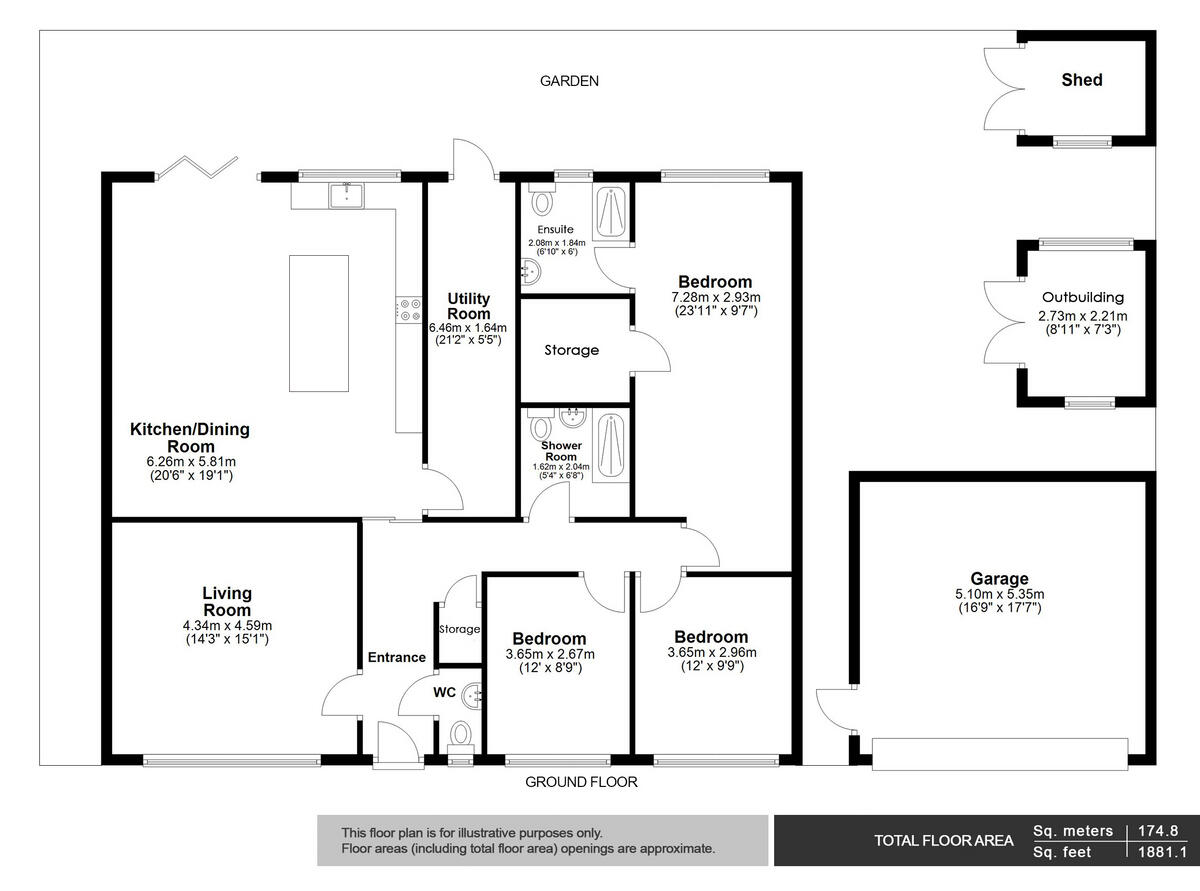
A detached bungalow in Maidenhead, Berkshire, featuring 3 bedrooms, 2 bathrooms, and a modern interior. Benefits from a garden with patio, shed, and hot tub. Located near schools and transportation.
Therefore, we give this property 7 / 10. *Disclaimer: This is our option and does constitute a recommendation or financial advice. Do your own research. *
- Price
- 7
- Condition
- 8
- Location
- 8
- Land
- 7
- Bedrooms
- 3
- Bathrooms
- 2
- Sqft (est)
- 1,605.87
The heatmap indicates the level of crime in the area. The color of the heatmap indicates the crime severity and recency.
Metrics Year-on-Year
- Average area value
- 208,333.00 £Decreased by 17.92 %
- Est sale value
- 616,654.08 £Increased by 51.78 %
- Average area rental value
- 806.00 £/moDecreased by 15.34 %
- Est letting value
- 1,605.87 £/mo
- Est rental Yield
- 4.64 %Increased by 3.11 %
- Crime Rate
- 14.00 %Unchanged by 0.00 %
from 253,810.00 £
from 406,285.11 £
from 952.00 £/mo
from 0.00 £/mo
from 4.50 %
from 14.00 %
Agent Activity
haart created the listing.
Nearby Schools
| Name | Type | Ofsted | Distance |
|---|---|---|---|
| Maidenhead Nursery School | Local Authority Nursery School | Outstanding | 0.63 KM |
| Maidenhead Nursery Children'S Centre | Children's Centre | 0.70 KM | |
| St Piran'S School | Other Independent School | 0.87 KM | |
| St Mary'S Catholic Primary School, Maidenhead | Academy Converter | Good | 1.00 KM |
| Furze Platt Senior School | Academy Converter | Good | 1.15 KM |
Images
Nearby Streets
| Name | Average Price | Average Sqft | Distance |
|---|---|---|---|
| Sylvester Road | £ 450,000 | 0 | 0.00 KM |
| Anne Close | £ 450,000 | 0 | 0.00 KM |
| Horsley Road | £ 0 | 0 | 0.00 KM |
| Kensal Green Road | £ 0 | 0 | 0.00 KM |
| Furze Road | £ 0 | 0 | 0.00 KM |
Nearby Transport
| Name | NLC | TLC | Distance |
|---|---|---|---|
| Furze Platt | 3144 | FZP | 0.60 KM |
| Maidenhead | 3147 | MAI | 2.32 KM |
| Cookham | 3019 | COO | 2.36 KM |
| Bourne End | 3018 | BNE | 4.89 KM |
| Marlow | 3021 | MLW | 5.41 KM |
Nearby Listings
| Address | Price | Type | Score | Distance |
|---|---|---|---|---|
| Grafton Close, Maidenhead | £ 850,000 | BUY | 7 / 10 | 0.00 KM |
| Furze Platt Catchment, Maidenhead | £ 459,950 | BUY | 6 / 10 | 0.03 KM |
| Gardner Road, Maidenhead | £ 500,000 | BUY | 6 / 10 | 0.07 KM |
| Osney Road - Maidenhead | £ 399,950 | BUY | Unknown | 0.15 KM |
| Gardner Road, Maidenhead | £ 425,000 | BUY | 7 / 10 | 0.16 KM |
Nearby Properties
| Address | Price | Distance |
|---|---|---|
| 4 Grafton Close | £ 189,000 | 0.04 KM |
| 5 Grafton Close | £ 370,000 | 0.04 KM |
| 20 Grafton Close | £ 390,000 | 0.04 KM |
| 15 Grafton Close | £ 680,000 | 0.04 KM |
| 10 Grafton Close | £ 179,000 | 0.04 KM |