Cornwallis Close, West Stow, Bury St Edmunds
Sheridans logo

Cornwallis Close, West Stow, Bury St Edmunds

By Sheridans

£ 525,000

Reviews

3 out of 5 stars

Sheridans says ..

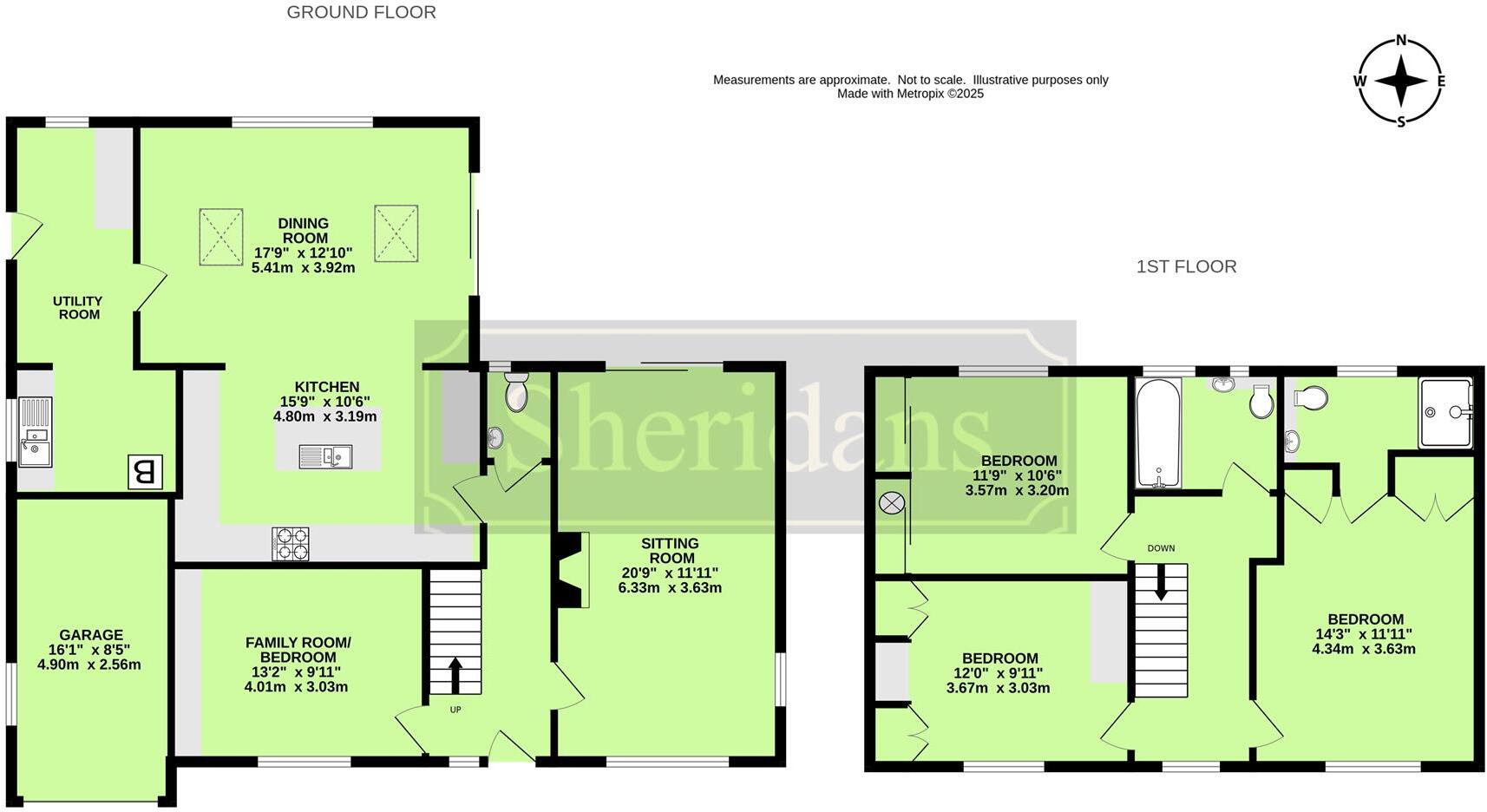
An extended detached family home providing well presented accommodation enjoying a delightful setting in the heart of the much admired village of West Stow. This detached family home has been the subject of considerable improvement and updating in more recent years and now provides well...

Property Oracle says ..

Therefore, we give this property 7 / 10. *Disclaimer: This is our option and does constitute a recommendation or financial advice. Do your own research. *

Price
6
Condition
8
Location
7
Land
8
Bedrooms
3
Bathrooms
2
Sqft (est)
1,851.39

The heatmap indicates the level of crime in the area. The color of the heatmap indicates the crime severity and recency.

Metrics Year-on-Year

Average area value
400,000.00 £
Decreased by 62.22 %
from 1,058,750.00 £
Est sale value
510,983.64 £
Decreased by 26.40 %
from 694,271.25 £
Average area rental value
2,250.00 £/mo
Increased by 73.08 %
from 1,300.00 £/mo
Est letting value
1,851.39 £/mo
from 0.00 £/mo
Est rental Yield
6.75 %
Increased by 359.18 %
from 1.47 %
Crime Rate
40.00 %
Unchanged by 0.00 %
from 40.00 %

Agent Activity

  • Sheridans created the listing.

Nearby Schools

NameTypeOfstedDistance
Culford SchoolOther Independent School2.03 KM
Howard Community AcademyAcademy Sponsor Led5.28 KM
The AlbanyAcademy Alternative Provision Converter5.36 KM
Brookes UkOther Independent School5.50 KM
Risby Church Of England Voluntary Controlled Primary SchoolVoluntary Controlled SchoolOutstanding5.70 KM

Images

DCP_8195.jpg DCP_8163.jpg DCP_8166.jpg DCP_8175.jpg DCP_8178.jpg DCP_8172.jpg DCP_8181.jpg DCP_8184-2.jpg DCP_8154.jpg DCP_8157.jpg DCP_8132.jpg DCP_8138.jpg DCP_8139-2.jpg DCP_8142.jpg DCP_8151.jpg DCP_8145.jpg DCP_8148.jpg DCP_8140.jpg DCP_8192.jpg DCP_8190.jpg DCP_8191.jpg DCP_8193.jpg DCP_8194.jpg DCP_8196.jpg DCP_8197.jpg 10.png

Nearby Streets

NameAverage PriceAverage SqftDistance
The Links £ 000.00 KM

Nearby Transport

NameNLCTLCDistance
Bury St Edmunds7008BSE7.35 KM

Nearby Listings

AddressPriceTypeScoreDistance
Cornwallis Close, West Stow, Bury St Edmunds £ 525,000BUY7 / 100.00 KM
West Stow, Bury St. Edmunds £ 1,500,000BUY6 / 100.26 KM
Ingham Road, West Stow, Bury St. Edmunds £ 475,000BUY7 / 100.47 KM
Chimney Mills, West Stow, Bury St. Edmunds, Suffolk, IP28 £ 480,000BUY6 / 100.48 KM
Chimney Mills, West Stow, Bury St. Edmunds £ 525,000BUY6 / 100.56 KM

Nearby Properties

AddressPriceDistance
1 Cornwallis Close £ 510,0000.05 KM
Lerrum House £ 675,0000.26 KM
Appleacre £ 661,0000.26 KM
The Coldens £ 322,0000.26 KM
1 Chimney Mills £ 350,0000.56 KM