Seething Street, Seething, Norwich, Norfolk, NR15
WI

Seething Street, Seething, Norwich, Norfolk, NR15

By Winkworth

£ 550,000

Winkworth says ..

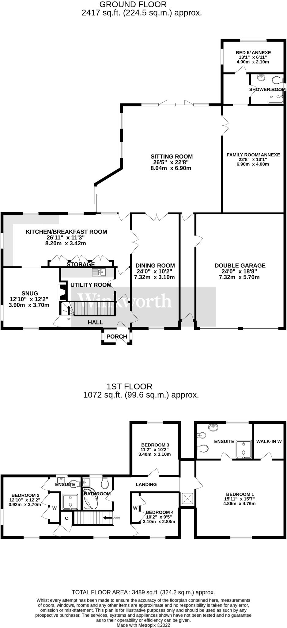
Expansive period home steeped in history. This remarkable detached property was formally the village Post Office and has been cleverly extended and converted to create a remarkable family home. Boasting over 3400 SQ FT this exceptional sized residence is sure to prove popular wi...

Bedrooms
5
Bathrooms
4

The heatmap indicates the level of crime in the area. The color of the heatmap indicates the crime severity and recency.

Metrics Year-on-Year

Average area value
643,958.00 £
Increased by 57.67 %
from 408,423.00 £
Average area rental value
1,266.00 £/mo
Increased by 40.67 %
from 900.00 £/mo
Est rental Yield
2.36 %
Decreased by 10.61 %
from 2.64 %
Crime Rate
141.00 %
Unchanged by 0.00 %
from 141.00 %

Agent Activity

  • Winkworth created the listing.

Nearby Schools

NameTypeOfstedDistance
Seething And Mundham Primary SchoolAcademy Sponsor LedRequires improvement0.38 KM
Thurton Primary SchoolVoluntary Controlled SchoolOutstanding3.77 KM
Woodton Primary SchoolCommunity SchoolGood5.17 KM
Brooke Voluntary Controlled Church Of England Primary SchoolVoluntary Controlled SchoolGood5.61 KM
Alpington And Bergh Apton Church Of England Voluntary Aided Primary SchoolVoluntary Aided SchoolOutstanding5.73 KM

Images

Sitting Room Sitting Room Kitchen Diner Kitchen Diner Kitchen Diner Bedroom En Suite Bedroom Dining Room Snug Bedroom Bedroom Bathroom Shower Room Front Garden Sitting Room Kitchen Diner Sitting Room Sitting Room Kitchen Kitchen Diner Snug Dining Room Bedroom En-Suite Bedroom View Garden Garden Garden Garden

Nearby Streets

NameAverage PriceAverage SqftDistance
Birch Way £ 000.00 KM

Nearby Transport

NameNLCTLCDistance
Buckenham7290BUC9.79 KM

Nearby Listings

AddressPriceTypeScoreDistance
Seething Street, Seething, Norwich, Norfolk, NR15 £ 550,000BUYUnknown0.00 KM
Seething Street, Seething £ 600,000BUY7 / 100.07 KM
Brooke Road, Seething, Norwich, Norfolk, NR15 £ 800,000BUY7 / 100.41 KM
Wheelers Lane, Seething £ 1,100,000BUY7 / 100.44 KM
Seething Street, Seething, Norwich, Norfolk, NR15 £ 650,000BUY7 / 100.49 KM

Nearby Properties

AddressPriceDistance
Pond Farm £ 310,0000.21 KM
Ivy Cottage £ 322,0000.21 KM
Langhale Cottage £ 350,0000.21 KM
The Red House £ 463,0000.21 KM
Cherry Orchard £ 406,0000.21 KM