Sinclair Drive, Codmore Hill, RH20
By Henry Adams
£ 449,950
Reviews
4 out of 5 stars
Henry Adams says ..
Modern 3-bed house with spacious living areas, main bedroom with en-suite, garden, allocated parking. Close to village amenities and transport links. Remainder of NHBC guarantee and no forward chain.
Property Oracle says ..
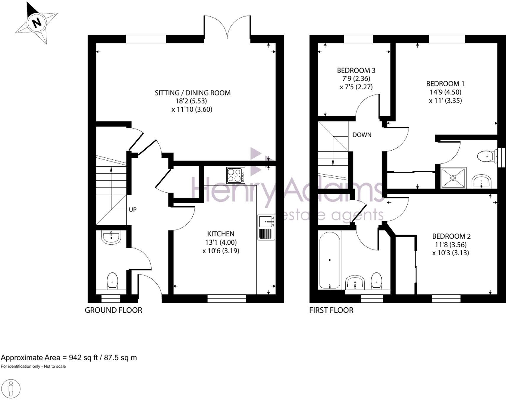
The property is located in Codmore Hill, Pulborough, which is in West Sussex. Pulborough benefits from a train station with links to London Victoria and other major towns and cities. The proximity to the train station is a positive aspect for commuters. There are also a number of primary schools within a reasonable distance, including St Mary’s Church of England Primary School (0.77km) and Pulborough Children and Family Centre (1.15km). The Ofsted rating for St Mary’s is listed as ‘Requires Improvement’, which potential buyers may want to investigate further. While the location offers convenience with transport links and schools, further research into the specific area and its amenities is recommended. Based on the provided images, the property appears to be in excellent condition. It is modern, well-maintained, and shows no signs of needing repair or renovation. The kitchen and bathrooms are contemporary and finished to a high standard. The property includes a private, enclosed garden, which is a desirable feature for many buyers. The size of the garden, approximately 942 sqft, is adequate for a semi-detached property, providing outdoor space for relaxation and entertaining. The list price is £449,950. The average price for properties in the area is significantly higher at £705,556, and the average price per sqft is £478. This property is 677.83 sqft, suggesting a price per sqft of approximately £664. Considering the property’s modern condition, the presence of a garden, and its convenient location, the list price may represent good value compared to the area average, although it is higher than the average price per sqft. However, the lack of sqft data for nearby comparable properties makes a definitive price comparison challenging. Further analysis of similar properties recently sold in the area is recommended to confirm this assessment.
Therefore, we give this property 8 / 10. *Disclaimer: This is our option and does constitute a recommendation or financial advice. Do your own research. *
- Price
- 7
- Condition
- 10
- Location
- 8
- Land
- 7
- Bedrooms
- 3
- Bathrooms
- 2
- Sqft (est)
- 677.83
- Lot (est)
- 942.00
The heatmap indicates the level of crime in the area. The color of the heatmap indicates the crime severity and recency.
Metrics Year-on-Year
- Average area value
- 575,000.00 £Decreased by 8.68 %
- Est sale value
- 504,305.52 £Increased by 43.08 %
- Average area rental value
- 3,275.00 £/moIncreased by 52.11 %
- Est letting value
- 2,711.32 £/moIncreased by 300.00 %
- Est rental Yield
- 6.83 %Increased by 66.59 %
- Crime Rate
- 0.00 %
Agent Activity
Henry Adams created the listing.
Nearby Schools
| Name | Type | Ofsted | Distance |
|---|---|---|---|
| St Mary'S Church Of England Primary School | Voluntary Aided School | Requires improvement | 0.77 KM |
| Pulborough Children And Family Centre | Children's Centre Linked Site | 1.15 KM | |
| St James' Cofe Primary School, Coldwaltham | Voluntary Controlled School | Good | 5.15 KM |
| Fittleworth Cofe Village School | Voluntary Controlled School | Good | 6.02 KM |
| Lodge Hill Residential Centre | Miscellaneous | 6.14 KM |
Images
Nearby Streets
| Name | Average Price | Average Sqft | Distance |
|---|---|---|---|
| Rectory Close | £ 0 | 0 | 0.00 KM |
| Church Hill | £ 627,500 | 0 | 0.00 KM |
| Park Farm | £ 0 | 0 | 0.00 KM |
Nearby Transport
| Name | NLC | TLC | Distance |
|---|---|---|---|
| Pulborough | 5468 | PUL | 1.44 KM |
| Billingshurst | 5464 | BIG | 8.32 KM |
| Amberley | 5250 | AMY | 8.58 KM |
Nearby Listings
| Address | Price | Type | Score | Distance |
|---|---|---|---|---|
| Sinclair Drive, Codmore Hill, RH20 | £ 449,950 | BUY | 8 / 10 | 0.00 KM |
| Sinclair Drive, Codmore Hill, Pulborough, RH20 | £ 390,000 | BUY | 7 / 10 | 0.01 KM |
| Sinclair Drive, Codmore Hill, Pulborough, West Sussex | £ 625,000 | BUY | 6 / 10 | 0.04 KM |
| Sinclair Drive, Codmore Hill, Pulborough, RH20 | £ 500,000 | BUY | 7 / 10 | 0.15 KM |
| Corden Place, Pulborough, RH20 | £ 650,000 | BUY | 7 / 10 | 0.22 KM |
Nearby Properties
| Address | Price | Distance |
|---|---|---|
| Franklins Barn | £ 420,000 | 0.14 KM |
| 34 London Road | £ 281,000 | 0.31 KM |
| 23 London Road | £ 207,000 | 0.31 KM |
| 20 London Road | £ 565,000 | 0.31 KM |
| Half Hidden | £ 421,000 | 0.31 KM |