Trenhaile Terrace, Truro
ST

Trenhaile Terrace, Truro

By Stags

£ 385,000

Reviews

3 out of 5 stars

Stags says ..

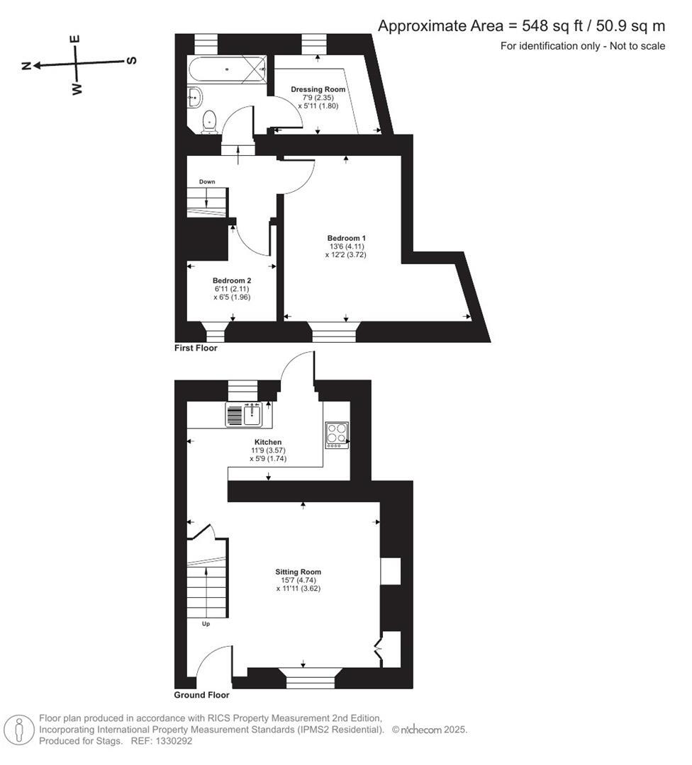
A traditional Cornish character cottage in the highly desirable riverside village of Malpas, enjoying uninterrupted water and countryside views.

Property Oracle says ..

Therefore, we give this property 7 / 10. *Disclaimer: This is our option and does constitute a recommendation or financial advice. Do your own research. *

Price
7
Condition
8
Location
8
Land
7
Bedrooms
2
Bathrooms
1

The heatmap indicates the level of crime in the area. The color of the heatmap indicates the crime severity and recency.

Metrics Year-on-Year

Average area value
380,500.00 £
Decreased by 7.95 %
from 413,363.00 £
Average area rental value
1,550.00 £/mo
Increased by 31.91 %
from 1,175.00 £/mo
Est rental Yield
4.89 %
Increased by 43.40 %
from 3.41 %
Crime Rate
32.00 %
Unchanged by 0.00 %
from 32.00 %

Agent Activity

  • Stags created the listing.

Nearby Schools

NameTypeOfstedDistance
Trelander Community & Children'S CentreChildren's Centre Linked Site2.52 KM
Penair SchoolAcademy ConverterGood2.60 KM
Tregolls School - An AcademyAcademy Sponsor LedRequires improvement2.64 KM
Truro SchoolOther Independent School2.66 KM
Pencalenick SchoolAcademy Special ConverterGood3.20 KM

Images

IMG_9235.jpg IMG_9417.jpg IMG_9301.jpg IMG_9351.jpg IMG_9245.jpg IMG_9374.jpg IMG_9398.jpg IMG_9244.jpg IMG_9252.jpg IMG_9410.jpg IMG_9309.jpg IMG_9321.jpg IMG_9330.jpg IMG_9360.jpg IMG_9368.jpg IMG_9384.jpg IMG_9392.jpg IMG_9401.jpg IMG_9409.jpg 8.jpg 7.jpg 5.jpg -688255eeb79cc-1331588 (4).jpg -688255eeb79cc-1331588 (6).jpg -688255eeb79cc-1331588 (7).jpg -688255eeb79cc-1331588 (9).jpg -688255eeb79cc-1331588 (10).jpg -688255eeb79cc-1331588 (14).jpg -688255eeb79cc-1331588 (17).jpg 1330292-5-689212f222553-ARW.jpg 1330292-14-68920eee055c5.jpg 1330292-12-68920ed96e4b7.jpg 1330292-17-68920f06ae37d.jpg 1330292-13-68920edf58b5b.jpg 1330292-27-68920f671ec00.jpg 1330292-29-68920f7bc8e15.jpg 1330292-25-68920f5226286.jpg 1330292-22-68920f34e0282.jpg 1330292-16-68920efd97c7a.jpg 1330292-23-68920f3f39ee8.jpg 1330292-18-68920f0bb7ac6.jpg 1330292-21-68920f28ee9e1.jpg 1330292-24-68920f451b7ab.jpg 1330292-7-68920e9f62988.jpg 1330292-28-68920f75ab7af.jpg 1330292-8-68920ea67d22d.jpg 1330292-8-68921304c39de-ARW.jpg 1330292-31-68920fe7e9b27.jpg 1330292-3-689210e9ad9da-ARW.jpg

Nearby Streets

NameAverage PriceAverage SqftDistance
Park Farm £ 000.00 KM
Park Lane £ 000.00 KM

Nearby Transport

NameNLCTLCDistance
Truro3540TRU4.91 KM

Nearby Listings

AddressPriceTypeScoreDistance
Trenhaile Terrace, Truro £ 385,000BUY7 / 100.00 KM
Park Terrace, Malpas £ 575,000BUYUnknown0.10 KM
Scobles Terrace, Malpas £ 299,950BUY5 / 100.11 KM
AMAZING RIVER VIEWS Scobles Terrace, Malpas, Truro £ 315,000BUY7 / 100.11 KM
Victoria Quay, Malpas, Truro, Cornwall £ 550,000BUY6 / 100.22 KM

Nearby Properties

AddressPriceDistance
6 Trenhaile Terrace £ 330,0000.00 KM
4 Trenhaile Terrace £ 455,0000.00 KM
5 Trenhaile Terrace £ 320,0000.00 KM
8 Scobles Terrace £ 200,0000.12 KM
1 Scobles Terrace £ 287,0000.12 KM