28 Chichester Road, Selsey, PO20
By Henry Adams
£ 600,000
Reviews
3 out of 5 stars
Henry Adams says ..
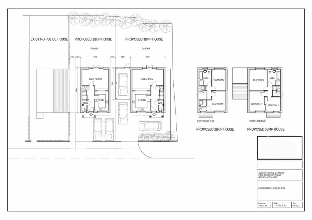
A rare opportunity to purchase a development site in Selsey with full permission granted 22/01171/FUL. VIEWING STRICTLY BY APPOINTMENT. Possibility to split the plot and only purchase the existing police house. EPC-D, Current council tax-C
Property Oracle says ..
This property at 28 Chichester Road, Selsey, is presented as a development opportunity rather than a ready-to-move-in home. The existing structure is a former police house, currently in a state of disrepair, needing substantial renovation or demolition. The listing’s key selling point is the planning permission (22/01171/FUL) to build two new houses on the site. The accompanying plans detail the proposed builds, indicating potential for creating two modern family homes.
The location in Selsey offers proximity to schools, and the potential for seaside living and amenities. The significant plot size is a considerable asset and offers potential development value. However, the current state of the existing structure requires considerable financial investment to even prepare the site for building. This is reflected in the listing price of £600,000. This amount is likely to cover the demolition, remediation, and construction of two new houses, not just the existing structure’s renovation. Therefore, a potential investor should assess the development costs against the expected resale value of the completed properties to determine profitability. The lack of specific information on the existing dwelling’s size adds complexity to a full market valuation. Overall, this is a high-risk, high-reward investment opportunity for developers with the necessary experience and funding. A potential buyer needs to undertake extensive due diligence and consider all potential construction costs.
The provided nearby property prices offer limited comparable data due to the unique nature of this development site with planning permission. Therefore, a thorough market appraisal is required to accurately assess the true value of this opportunity.
Therefore, we give this property 6 / 10. *Disclaimer: This is our option and does constitute a recommendation or financial advice. Do your own research. *
- Price
- 7
- Condition
- 4
- Location
- 7
- Land
- 6
- Bedrooms
- 3
- Bathrooms
- 1
- Sqft (est)
- 1,000.00
The heatmap indicates the level of crime in the area. The color of the heatmap indicates the crime severity and recency.
Metrics Year-on-Year
- Average area value
- 581,667.00 £Increased by 44.15 %
- Est sale value
- 626,000.00 £Increased by 70.57 %
- Average area rental value
- 1,482.00 £/moDecreased by 17.67 %
- Est letting value
- 1,000.00 £/moUnchanged by 0.00 %
- Est rental Yield
- 3.06 %Decreased by 42.80 %
- Crime Rate
- 5.00 %Unchanged by 0.00 %
Agent Activity
Henry Adams created the listing.
Nearby Schools
| Name | Type | Ofsted | Distance |
|---|---|---|---|
| The Academy, Selsey | Academy Sponsor Led | Good | 0.62 KM |
| Medmerry Primary School | Academy Converter | Good | 0.65 KM |
| Seal Primary Academy | Academy Sponsor Led | Good | 0.79 KM |
| Selsey Children & Family Centre | Children's Centre | 0.84 KM | |
| Sidlesham Primary School | Community School | Good | 4.16 KM |
Images
Nearby Streets
| Name | Average Price | Average Sqft | Distance |
|---|---|---|---|
| St. George's Close | £ 120,000 | 0 | 0.00 KM |
| Langley Street | £ 0 | 0 | 0.00 KM |
| Malden Way | £ 335,000 | 0 | 0.00 KM |
| Coppice Lane | £ 309,975 | 0 | 0.00 KM |
| Wheatfield Road | £ 299,950 | 0 | 0.00 KM |
Nearby Listings
| Address | Price | Type | Score | Distance |
|---|---|---|---|---|
| 28 Chichester Road, Selsey, PO20 | £ 600,000 | BUY | 6 / 10 | 0.00 KM |
| Manor Farm Court, Selsey, PO20 | £ 585,000 | BUY | 7 / 10 | 0.16 KM |
| Robinson Close, Selsey | £ 485,000 | BUY | 7 / 10 | 0.19 KM |
| Robinson Close, Selsey | £ 600,000 | BUY | 8 / 10 | 0.19 KM |
| Manor Farm Court, Selsey | £ 125,000 | BUY | 6 / 10 | 0.19 KM |
Nearby Properties
| Address | Price | Distance |
|---|---|---|
| 21 Chichester Road | £ 95,000 | 0.16 KM |
| 11 Chichester Road | £ 218,000 | 0.16 KM |
| April Cottage | £ 287,000 | 0.16 KM |
| 14 Chichester Road | £ 330,000 | 0.16 KM |
| 3 Chichester Road | £ 235,000 | 0.16 KM |