West Row, North Kensington
By Marsh & Parsons
£ 825,000
Reviews
3 out of 5 stars
Marsh & Parsons says ..
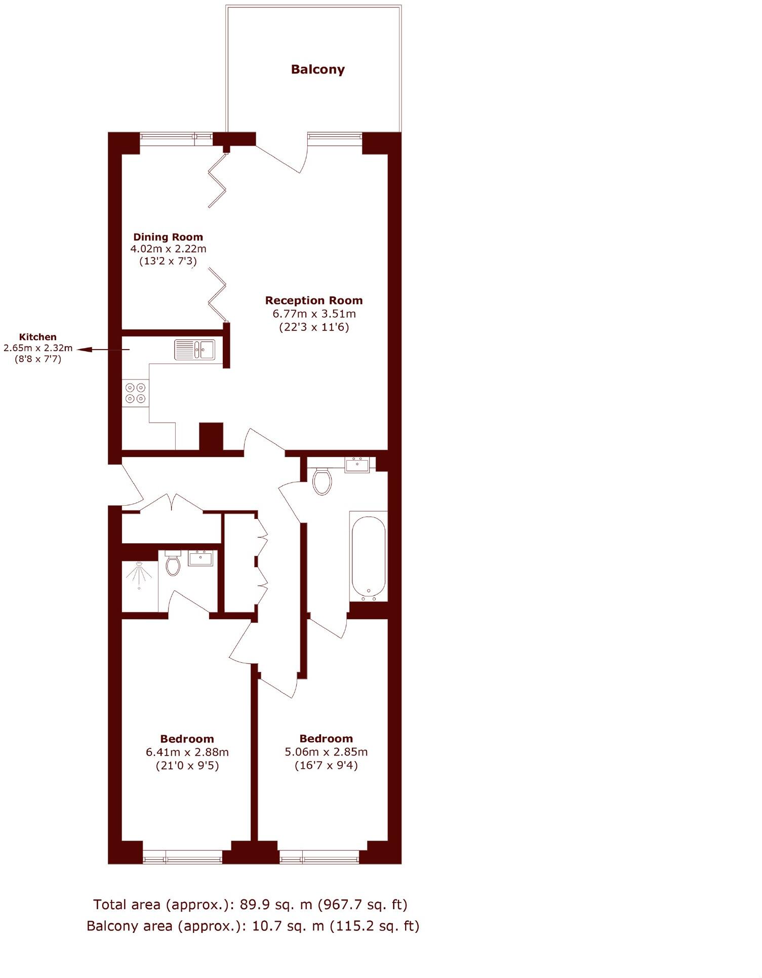
A bright three bedroom apartment on the fourth floor, bathed in dual-aspect light. Enjoy underfloor heating, two bathrooms, a balcony and two private parking spaces.
Property Oracle says ..
This is a 3-bedroom flat in North Kensington, presented by Marsh & Parsons. The property boasts 967.68 sqft of living space and includes 2 bathrooms. The flat appears to be in good condition, featuring a modern kitchen and bathrooms. While it doesn’t have a garden, it does offer a balcony. Located in a vibrant area with good access to schools and transportation, the property is listed at £825,000. The price per square foot is below the local average, making it a potentially attractive opportunity.
Therefore, we give this property 6 / 10. *Disclaimer: This is our option and does constitute a recommendation or financial advice. Do your own research. *
- Price
- 6
- Condition
- 8
- Location
- 7
- Land
- 5
- Bedrooms
- 3
- Bathrooms
- 2
- Sqft (est)
- 967.68
The heatmap indicates the level of crime in the area. The color of the heatmap indicates the crime severity and recency.
Metrics Year-on-Year
- Average area value
- 767,500.00 £Decreased by 1.86 %
- Est sale value
- 1,219,276.80 £Increased by 43.51 %
- Average area rental value
- 2,389.00 £/moDecreased by 10.82 %
- Est letting value
- 2,903.04 £/moUnchanged by 0.00 %
- Est rental Yield
- 3.74 %Decreased by 9.00 %
- Crime Rate
- 6.00 %Unchanged by 0.00 %
Agent Activity
Marsh & Parsons created the listing.
Nearby Schools
| Name | Type | Ofsted | Distance |
|---|---|---|---|
| Ark Brunel Primary Academy | Academy Sponsor Led | Outstanding | 0.21 KM |
| Kensington Queensmill School | Free Schools Special | 0.31 KM | |
| Bales College | Other Independent School | 0.32 KM | |
| Saint Mary'S Catholic Primary School | Voluntary Aided School | Good | 0.36 KM |
| Barlby Primary School | Community School | Good | 0.41 KM |
Images
Nearby Streets
| Name | Average Price | Average Sqft | Distance |
|---|---|---|---|
| Ladbroke Grove | £ 699,950 | 0 | 0.00 KM |
| Rowan Walk | £ 0 | 0 | 0.00 KM |
| Kensal Road | £ 475,000 | 0 | 0.00 KM |
| East Row | £ 415,000 | 0 | 0.00 KM |
| St Charles Square | £ 700,000 | 0 | 0.00 KM |
Nearby Transport
| Name | NLC | TLC | Distance |
|---|---|---|---|
| Kensal Rise | 1448 | KNR | 1.17 KM |
| Queens Park (London) | 1419 | QPW | 1.32 KM |
| Kensal Green | 1447 | KNL | 1.34 KM |
| Brondesbury Park | 1438 | BSP | 1.69 KM |
| Shepherd'S Bush | 9587 | SPB | 2.34 KM |
Nearby Listings
| Address | Price | Type | Score | Distance |
|---|---|---|---|---|
| West Row, North Kensington | £ 825,000 | BUY | 6 / 10 | 0.00 KM |
| West Row, Ladbroke Grove, W10 | £ 540,000 | BUY | 7 / 10 | 0.00 KM |
| Atrium Apartments, London W10 | £ 1,050,000 | BUY | 5 / 10 | 0.01 KM |
| West Row, Ladbroke Grove, W10 | £ 1,150,000 | BUY | 7 / 10 | 0.01 KM |
| West Row, North Kensington, W10 | £ 485,000 | BUY | 7 / 10 | 0.02 KM |
Nearby Properties
| Address | Price | Distance |
|---|---|---|
| 330 Ladbroke Grove | £ 1,500,000 | 0.11 KM |
| 17 St Johns Terrace | £ 825,000 | 0.19 KM |
| 7 St Johns Terrace | £ 243,000 | 0.19 KM |
| 15 St Johns Terrace | £ 660,000 | 0.20 KM |
| 13 St Johns Terrace | £ 425,000 | 0.20 KM |