Littleton Street, Earlsfield, London, SW18
PE

Littleton Street, Earlsfield, London, SW18

By Petras Property

£ 1,600,000

Reviews

3 out of 5 stars

Petras Property says ..

Situated on one of Earlsfield’s most desirable streets, this exceptional family home combines period character with contemporary design.

Property Oracle says ..

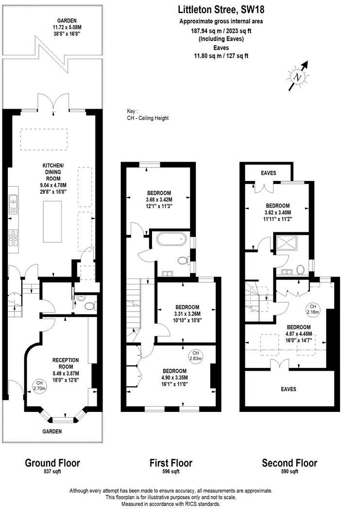
This is a five-bedroom terraced house in Earlsfield, London. The property benefits from a modern interior, a well-maintained garden, and proximity to local amenities and schools. Earlsfield Station is within walking distance, providing convenient access to transportation links. The property has two bathrooms. The house appears to be well-presented and in good decorative order. The asking price seems high compared to nearby properties, but this may be justified by the size and condition of the house.

Therefore, we give this property 7 / 10. *Disclaimer: This is our option and does constitute a recommendation or financial advice. Do your own research. *

Price
6
Condition
8
Location
8
Land
7
Bedrooms
5
Bathrooms
2

The heatmap indicates the level of crime in the area. The color of the heatmap indicates the crime severity and recency.

Metrics Year-on-Year

Average area value
684,091.00 £
Decreased by 0.97 %
from 690,757.00 £
Average area rental value
2,456.00 £/mo
Increased by 5.54 %
from 2,327.00 £/mo
Est rental Yield
4.31 %
Increased by 6.68 %
from 4.04 %
Crime Rate
4.00 %
Unchanged by 0.00 %
from 4.00 %

Agent Activity

  • Petras Property created the listing.

Nearby Schools

NameTypeOfstedDistance
Garratt Park SchoolCommunity Special SchoolGood0.15 KM
Tram House SchoolOther Independent Special SchoolOutstanding0.22 KM
The Chelsea Group Of ChildrenOther Independent Special SchoolOutstanding0.29 KM
Earlsfield Primary SchoolCommunity SchoolOutstanding0.39 KM
Burntwood SchoolAcademy ConverterGood0.61 KM

Images

LittletonStreet29-32.JPG LittletonStreet29-21.JPG LittletonStreet29-26.JPG LittletonStreet29-28.JPG LittletonStreet29-30.JPG LittletonStreet29-25.JPG LittletonStreet29-27.JPG LittletonStreet29-20.JPG LittletonStreet29-10.JPG LittletonStreet29-3.JPG LittletonStreet29-11.JPG LittletonStreet29-6.JPG LittletonStreet29-8.JPG LittletonStreet29-13.JPG LittletonStreet29-14.JPG LittletonStreet29-12.JPG LittletonStreet29-18.JPG LittletonStreet29-19.JPG LittletonStreet29-7.JPG LittletonStreet29-17.JPG LittletonStreet29-4.JPG LittletonStreet29-5.JPG LittletonStreet29-16.JPG LittletonStreet29-23.JPG LittletonStreet29-31.JPG LittletonStreet29-34.JPG LittletonStreet29-33.JPG LittletonStreet29-29.JPG LittletonStreet29-24.JPG LittletonStreet29-15.JPG LittletonStreet29-35.JPG

Nearby Streets

NameAverage PriceAverage SqftDistance
Squarey Street £ 000.00 KM
Duntshill Road £ 000.00 KM
Atkinson Morley Avenue £ 000.00 KM
Wells Place £ 000.00 KM
Saint Ann's Hill £ 708,33300.00 KM

Nearby Transport

NameNLCTLCDistance
Earlsfield5584EAD0.54 KM
Haydons Road5289HYR1.47 KM
Wandsworth Town5576WNT2.57 KM
Wandsworth Common5395WSW2.58 KM
Wimbledon5578WIM2.99 KM

Nearby Listings

AddressPriceTypeScoreDistance
Littleton Street, Earlsfield, London, SW18 £ 1,600,000BUY7 / 100.00 KM
Littleton Street, Earlsfield £ 1,250,000BUY6 / 100.04 KM
Quinton Street, London, SW18 £ 700,000BUY6 / 100.07 KM
Littleton Street, SW18 £ 1,575,000BUY7 / 100.07 KM
Quinton Street, London £ 950,000BUY7 / 100.07 KM

Nearby Properties

AddressPriceDistance
67 Littleton Street £ 76,0000.05 KM
75 Littleton Street £ 671,0000.05 KM
59 Littleton Street £ 940,0000.05 KM
39 Littleton Street £ 1,060,0000.05 KM
79 Littleton Street £ 925,0000.05 KM