Five Locks Road, Pontnewydd, NP44
By Number One Real Estate
£ 245,000
Reviews
3 out of 5 stars
Number One Real Estate says ..
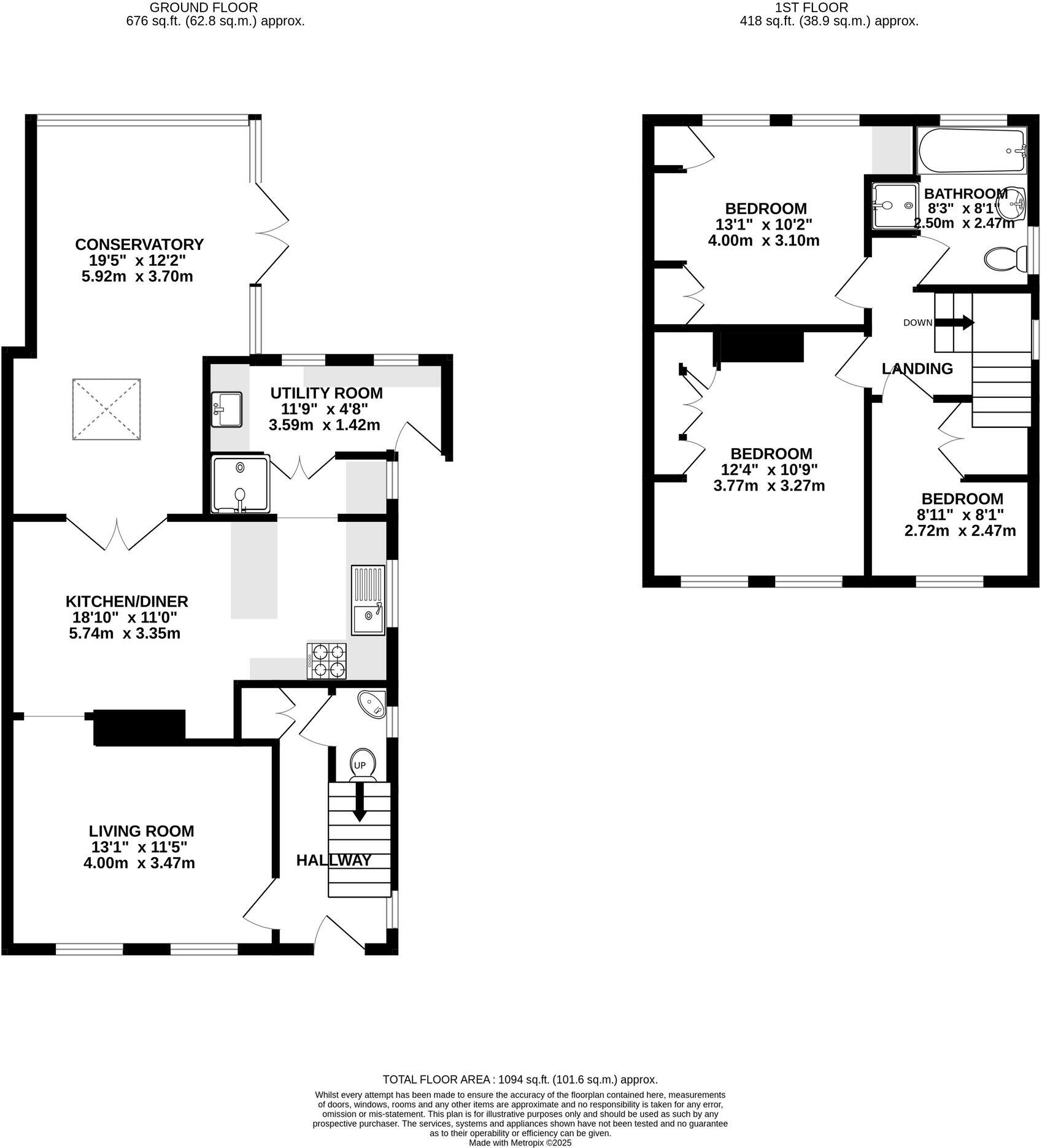
**SPACIOUS SEMI-DETACHED PROPERTY**THREE BEDROOMS**LIVING ROOM**KITCHEN/DINER**CONSERVATORY**CLOAKROOM AND UTILITY**TWO BATHTROOMS**LARGE REAR GARDEN**GATED DRIVEWAY AND GARAGE TO THE FRONT**
Property Oracle says ..
The property is a 3 bedroom, 2 bathroom semi-detached house located in Pontnewydd, Torfaen, Wales. It is listed at £245,000 and has 1,094 square feet of living space. The property appears to be in good condition, with a modern kitchen and bathrooms. The interior is well-maintained and presented. There is a conservatory and a substantial garden with a patio and decking area, as well as a garden shed and a gazebo. The property also benefits from solar panels. The property’s location is convenient, with several primary schools within a short distance and train stations within a reasonable commuting distance. Considering the average price per square foot in the area is £364, and this property is listed at a price per square foot which is significantly lower. The property’s good condition, desirable features such as the garden and conservatory, and convenient location suggest that the asking price may represent good value. However, the lack of plot size information and the limited data on comparable properties makes a definitive statement on price difficult. More information on the plot size would allow for a more comprehensive analysis of the price. Based on the images provided, the property does not appear to be in need of renovation and is not a period property. It could be described as modern or traditional, depending on the buyer’s preferences. The property includes a garage and a patio.
Therefore, we give this property 7 / 10. *Disclaimer: This is our option and does constitute a recommendation or financial advice. Do your own research. *
- Price
- 8
- Condition
- 8
- Location
- 7
- Land
- 7
- Bedrooms
- 3
- Bathrooms
- 2
- Sqft (est)
- 1,094.00
The heatmap indicates the level of crime in the area. The color of the heatmap indicates the crime severity and recency.
Metrics Year-on-Year
- Average area value
- 283,000.00 £Decreased by 21.70 %
- Est sale value
- 415,720.00 £Increased by 38.69 %
- Average area rental value
- 1,134.00 £/moIncreased by 19.24 %
- Est letting value
- 1,094.00 £/mo
- Est rental Yield
- 4.81 %Increased by 52.22 %
- Crime Rate
- 9.00 %Unchanged by 0.00 %
Agent Activity
Number One Real Estate created the listing.
Nearby Schools
| Name | Type | Ofsted | Distance |
|---|---|---|---|
| Pontnewydd Primary School | Welsh Establishment | 0.58 KM | |
| Maendy Primary School | Welsh Establishment | 1.18 KM | |
| St David'S R.C. Jnr. & Inf. School | Welsh Establishment | 1.55 KM | |
| Woodlands Community Primary School | Welsh Establishment | 1.79 KM | |
| Griffithstown Primary | Welsh Establishment | 2.00 KM |
Images
Nearby Streets
| Name | Average Price | Average Sqft | Distance |
|---|---|---|---|
| Glenside | £ 166,667 | 0 | 0.00 KM |
| Crown Close | £ 190,000 | 0 | 0.00 KM |
| Pen-Y-Parc | £ 180,000 | 0 | 0.00 KM |
| Mount Pleasant Close | £ 185,000 | 0 | 0.00 KM |
| Bryn Celyn Place | £ 145,000 | 0 | 0.00 KM |
Nearby Transport
| Name | NLC | TLC | Distance |
|---|---|---|---|
| Cwmbran | 3738 | CWM | 2.04 KM |
| Pontypool And New Inn | 3744 | PPL | 4.02 KM |
| Rogerstone | 9921 | ROR | 8.75 KM |
| Newport (South Wales) | 3674 | NWP | 9.28 KM |
| Risca And Pontymister | 9920 | RCA | 9.47 KM |
Nearby Listings
| Address | Price | Type | Score | Distance |
|---|---|---|---|---|
| Five Locks Road, Pontnewydd, NP44 | £ 245,000 | BUY | 7 / 10 | 0.00 KM |
| Greenfield Close, Pontnewydd, Cwmbran | £ 250,000 | BUY | 6 / 10 | 0.17 KM |
| Five Locks Close, Pontnewydd, Cwmbran | £ 230,000 | BUY | Unknown | 0.17 KM |
| Greenfield Close, Pontnewydd, Cwmbran | £ 130,000 | BUY | 7 / 10 | 0.18 KM |
| Greenfield Close, Pontnewydd, NP44 | £ 200,000 | BUY | Unknown | 0.20 KM |
Nearby Properties
| Address | Price | Distance |
|---|---|---|
| 59 Five Locks Road | £ 99,750 | 0.10 KM |
| 46 Five Locks Road | £ 98,000 | 0.10 KM |
| 48 Five Locks Road | £ 120,000 | 0.10 KM |
| 17 Maesgwyn | £ 230,050 | 0.17 KM |
| 12 Maesgwyn | £ 195,500 | 0.17 KM |