James.Dean says ..
An attractively presented, spacious, three bed family home enjoying views of the Beacons and easily managed gardens.
Property Oracle says ..
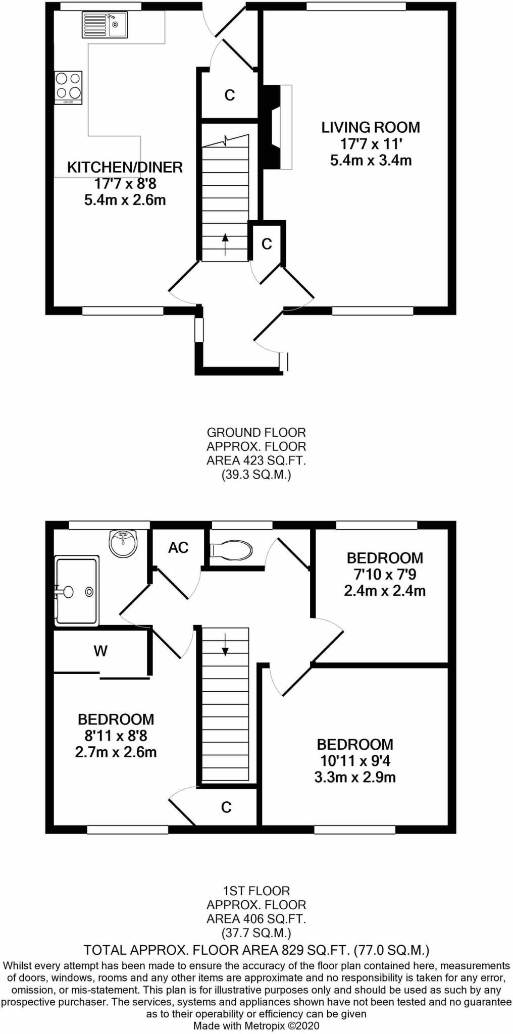
This property is a 3-bedroom, 1-bathroom house located in Brecon, Powys, with a list price of £180,000. The property has a small garden, as shown in the provided photos. The house appears to be in good condition, with recently updated kitchen units and a modern bathroom. The location is convenient, with several primary and secondary schools within a reasonable distance. The average house price on Danycrug is £130,000, suggesting that the list price is on the higher end of the market for this area. However, considering the property’s apparent good condition and proximity to local amenities, the price may be justifiable. More information on the square footage of comparable properties would be needed to provide a more precise analysis of the price-per-square-foot value.
Therefore, we give this property 6 / 10. *Disclaimer: This is our option and does constitute a recommendation or financial advice. Do your own research. *
- Price
- 6
- Condition
- 8
- Location
- 7
- Land
- 4
- Bedrooms
- 3
- Bathrooms
- 1
- Sqft (est)
- 828.82
The heatmap indicates the level of crime in the area. The color of the heatmap indicates the crime severity and recency.
Metrics Year-on-Year
- Average area value
- 311,704.00 £Increased by 34.17 %
- Est sale value
- 303,348.12 £Increased by 10.57 %
- Average area rental value
- 1,067.00 £/moDecreased by 19.35 %
- Est letting value
- 828.82 £/moUnchanged by 0.00 %
- Est rental Yield
- 4.11 %Decreased by 39.82 %
- Crime Rate
- 6.00 %Unchanged by 0.00 %
Agent Activity
James.Dean marked this listing as sold.
James.Dean created the listing.
Nearby Schools
| Name | Type | Ofsted | Distance |
|---|---|---|---|
| Priory C.I.W. School | Welsh Establishment | 0.55 KM | |
| Mount Street C.P. Junior | Welsh Establishment | 0.83 KM | |
| Christ College | Welsh Establishment | 0.95 KM | |
| Mount Street C.P. Infants | Welsh Establishment | 0.99 KM | |
| Llanfaes C.P. School | Welsh Establishment | 1.24 KM |
Images
Nearby Streets
| Name | Average Price | Average Sqft | Distance |
|---|---|---|---|
| Danycrug | £ 130,000 | 0 | 0.00 KM |
| Maes-y-Ffynnon | £ 137,500 | 0 | 0.00 KM |
| Bron-y-Crug | £ 150,000 | 0 | 0.00 KM |
| North Road | £ 245,000 | 0 | 0.00 KM |
| Priory Hill | £ 250,000 | 0 | 0.00 KM |
Nearby Listings
| Address | Price | Type | Score | Distance |
|---|---|---|---|---|
| Dan Y Crug, Brecon, LD3 | £ 180,000 | BUY | 6 / 10 | 0.00 KM |
| Dan Y Crug, Brecon, LD3 | £ 180,000 | BUY | 6 / 10 | 0.00 KM |
| Maes Y Ffynnon, Brecon, LD3 | £ 130,000 | BUY | 6 / 10 | 0.14 KM |
| Maes Y Ffynnon, Brecon, LD3 | £ 135,000 | BUY | 6 / 10 | 0.14 KM |
| Maes Y Ffynnon, Brecon, LD3 | £ 137,000 | BUY | 6 / 10 | 0.14 KM |
Nearby Properties
| Address | Price | Distance |
|---|---|---|
| 37 Dan Y Crug | £ 115,000 | 0.01 KM |
| 23 Dan Y Crug | £ 137,500 | 0.01 KM |
| 18 Dan Y Crug | £ 155,000 | 0.01 KM |
| 17 Dan Y Crug | £ 131,000 | 0.01 KM |
| 33 Dan Y Crug | £ 125,000 | 0.01 KM |