William Smith Close,, Cambridge, Cambridgeshire
By Leaders Sales
£ 200,000
Reviews
2 out of 5 stars
Leaders Sales says ..
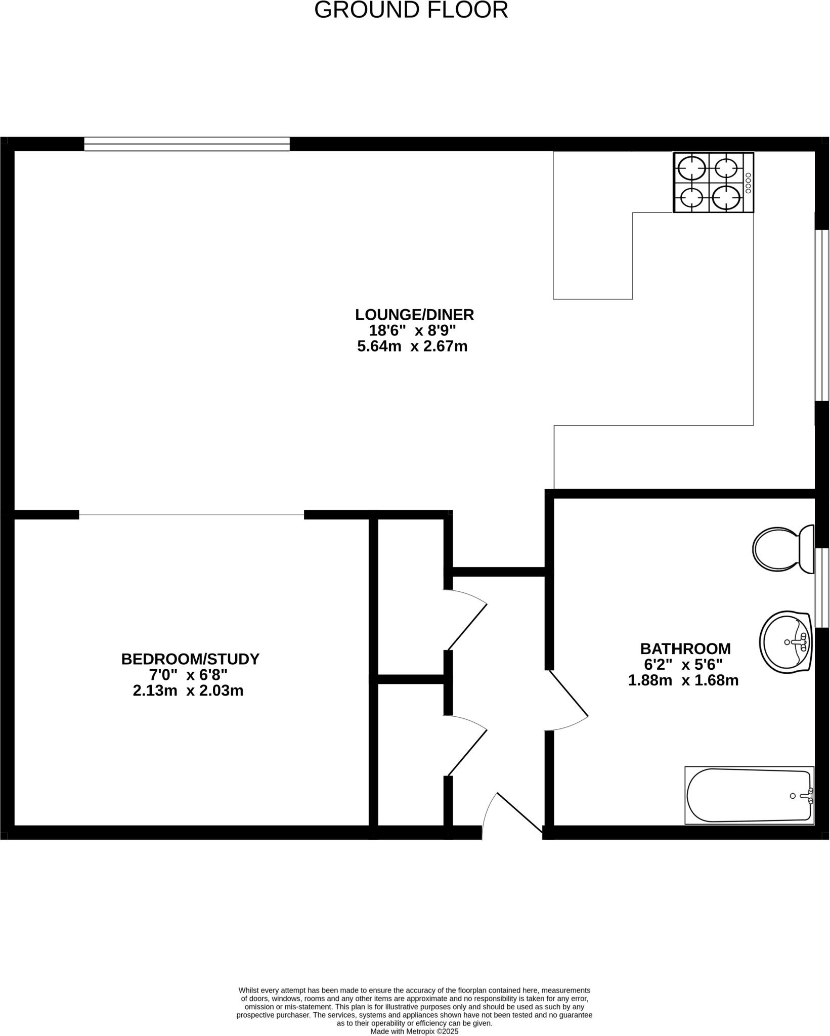
William Smith Close is a fantastic opportunity located within short proximity to Cherry Hinton Road, Cambridge Leisure Retail Park, and Central Station. The location is quiet yet benefits from amenities within walking distance. This one-bedroom ground floor studio apartment boasts a s...
Property Oracle says ..
This property is a studio apartment located in William Smith Close, Cambridge. The location is a significant advantage, offering proximity to Cambridge station, making commuting convenient. Nearby amenities, including retail parks and schools, enhance its appeal. The apartment itself appears to be functional rather than luxurious. The kitchen and bathroom are somewhat dated and may require updates to increase its overall appeal. While the photos don’t offer an in-depth look at the property’s condition, they do suggest the need for some cosmetic upgrades. Given the lack of information regarding the property’s size and the scarcity of comparable properties with full details, assessing the exact value for money is challenging. However, considering Cambridge’s typically high property prices, the asking price seems relatively reasonable for a studio apartment in this location, provided its square footage is in line with average studio sizes in the area. Further information about the specific size and condition would allow for a more accurate assessment of the price point.
Therefore, we give this property 4 / 10. *Disclaimer: This is our option and does constitute a recommendation or financial advice. Do your own research. *
- Price
- 6
- Condition
- 5
- Location
- 7
- Land
- 1
- Bedrooms
- 0
- Bathrooms
- 1
The heatmap indicates the level of crime in the area. The color of the heatmap indicates the crime severity and recency.
Metrics Year-on-Year
- Average area value
- 434,999.00 £Decreased by 13.09 %
- Average area rental value
- 1,897.00 £/moIncreased by 9.40 %
- Est rental Yield
- 5.23 %Increased by 25.72 %
- Crime Rate
- 9.00 %Unchanged by 0.00 %
Agent Activity
Leaders Sales created the listing.
Nearby Schools
| Name | Type | Ofsted | Distance |
|---|---|---|---|
| St. Andrew'S College Cambridge | Other Independent School | 0.95 KM | |
| Hills Road Sixth Form College | Further Education | Outstanding | 1.04 KM |
| Morley Memorial Primary School | Community School | Good | 1.13 KM |
| St Matthew'S Primary School | Community School | Good | 1.22 KM |
| Sancton Wood School | Other Independent School | 1.22 KM |
Images
Nearby Streets
| Name | Average Price | Average Sqft | Distance |
|---|---|---|---|
| Swann's Terrace | £ 0 | 0 | 0.00 KM |
| Angus Close | £ 0 | 0 | 0.00 KM |
| Eagle Street | £ 397,500 | 0 | 0.00 KM |
| Hazell Street | £ 0 | 0 | 0.00 KM |
| Millcroft Court | £ 165,000 | 0 | 0.00 KM |
Nearby Transport
| Name | NLC | TLC | Distance |
|---|---|---|---|
| Cambridge | 7022 | CBG | 0.42 KM |
| Cambridge North | 8001 | CMB | 3.74 KM |
| Shelford (Cambs) | 7043 | SED | 5.24 KM |
| Waterbeach | 7079 | WBC | 9.64 KM |
Nearby Listings
| Address | Price | Type | Score | Distance |
|---|---|---|---|---|
| William Smith Close,, Cambridge, Cambridgeshire | £ 200,000 | BUY | 4 / 10 | 0.00 KM |
| William Smith Close, Cambridge | £ 395,000 | BUY | 7 / 10 | 0.03 KM |
| 30 Rustat Avenue, CB1 3PF | £ 700,000 | BUY | Unknown | 0.09 KM |
| William Smith Close, Cambridge | £ 285,000 | BUY | 5 / 10 | 0.09 KM |
| William Smith Close, Cambridge | £ 315,000 | BUY | 6 / 10 | 0.10 KM |
Nearby Properties
| Address | Price | Distance |
|---|---|---|
| 83 William Smith Close | £ 72,500 | 0.00 KM |
| 65 William Smith Close | £ 37,000 | 0.00 KM |
| 17 William Smith Close | £ 234,995 | 0.00 KM |
| 41 William Smith Close | £ 98,000 | 0.00 KM |
| 49 William Smith Close | £ 60,000 | 0.00 KM |