Character property, Sithney
By Mather Partnership
£ 325,000
Reviews
3 out of 5 stars
Mather Partnership says ..
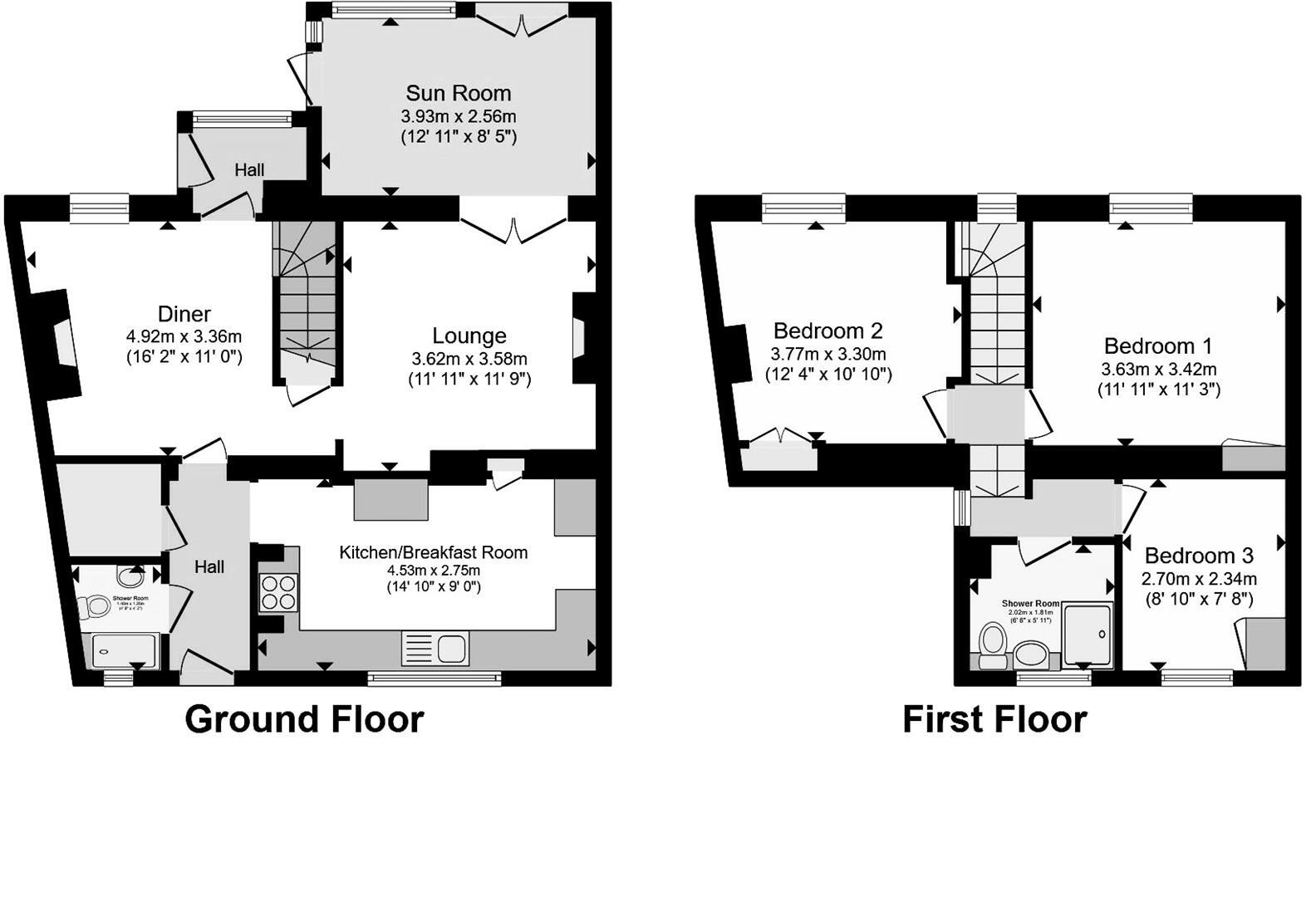
Situated in a rural position in Sithney, this charming semi-detached cottage offers a delightful blend of character and comfort. With three well-proportioned bedrooms and two bathrooms, this property is well proportioned and offers good size accommodation throughout. The cottage affords good-size...
Property Oracle says ..
This character property in Sithney, Cornwall is a 3-bedroom, 2-bathroom cottage listed at £325,000. The property benefits from a conservatory and a garden, as shown in the provided images. The nearby Sithney Community Primary School received an Outstanding Ofsted rating, suggesting a good local schooling option. However, information on nearby transportation links is missing. The average house price in the area is significantly higher at £468,178, and the average price per square foot is £235, while this property is listed at a lower price per sqft. The property appears to be in good condition based on the photos, though a detailed survey would be needed to confirm this. The plot size is not specified, which makes it difficult to fully assess the land value.
Therefore, we give this property 7 / 10. *Disclaimer: This is our option and does constitute a recommendation or financial advice. Do your own research. *
- Price
- 8
- Condition
- 8
- Location
- 7
- Land
- 7
- Bedrooms
- 3
- Bathrooms
- 2
- Sqft (est)
- 896.31
The heatmap indicates the level of crime in the area. The color of the heatmap indicates the crime severity and recency.
Metrics Year-on-Year
- Average area value
- 380,500.00 £Decreased by 7.95 %
- Est sale value
- 273,374.55 £Increased by 0.66 %
- Average area rental value
- 1,550.00 £/moIncreased by 31.91 %
- Est letting value
- 896.31 £/mo
- Est rental Yield
- 4.89 %Increased by 43.40 %
- Crime Rate
- 2.00 %Unchanged by 0.00 %
Agent Activity
Mather Partnership created the listing.
Nearby Schools
| Name | Type | Ofsted | Distance |
|---|---|---|---|
| Sithney Community Primary School | Academy Converter | Outstanding | 0.59 KM |
| St Elvan'S | Children's Centre Linked Site | 3.28 KM | |
| Porthleven School | Academy Converter | Good | 3.28 KM |
| Breage Church Of England School | Academy Converter | 3.47 KM | |
| Trannack Primary School | Academy Converter | 3.67 KM |
Images
Nearby Streets
| Name | Average Price | Average Sqft | Distance |
|---|---|---|---|
| Church Cottages | £ 328,000 | 0 | 0.00 KM |
| Trevarno Cottages | £ 375,000 | 0 | 0.00 KM |
| Meadow View | £ 0 | 0 | 0.00 KM |
| Truthall Barn | £ 0 | 0 | 0.00 KM |
| Polwidden View | £ 0 | 0 | 0.00 KM |
Nearby Listings
| Address | Price | Type | Score | Distance |
|---|---|---|---|---|
| Character property, Sithney | £ 325,000 | BUY | 7 / 10 | 0.00 KM |
| Sithney | £ 595,000 | BUY | 5 / 10 | 0.00 KM |
| Home with countryside views, Sithney | £ 175,000 | BUY | 6 / 10 | 0.79 KM |
| Spacious dormer bungalow with annexe, Sithney | £ 375,000 | BUY | 7 / 10 | 0.83 KM |
| Meadow View, Crowntown | £ 515,000 | BUY | 7 / 10 | 1.09 KM |
Nearby Properties
| Address | Price | Distance |
|---|---|---|
| 6 Plovers Field | £ 75,000 | 0.81 KM |
| 3 Church Cottages | £ 24,000 | 0.84 KM |
| 2 Church Cottages | £ 116,000 | 0.84 KM |
| 1 Trivga Cottages | £ 190,000 | 0.92 KM |
| Halbolize Cottage | £ 227,500 | 1.93 KM |