HO
Ardfin Road, Prestwick, KA9
By Hoppers Estate Agency
£ 150,000
Reviews
3 out of 5 stars
Hoppers Estate Agency says ..
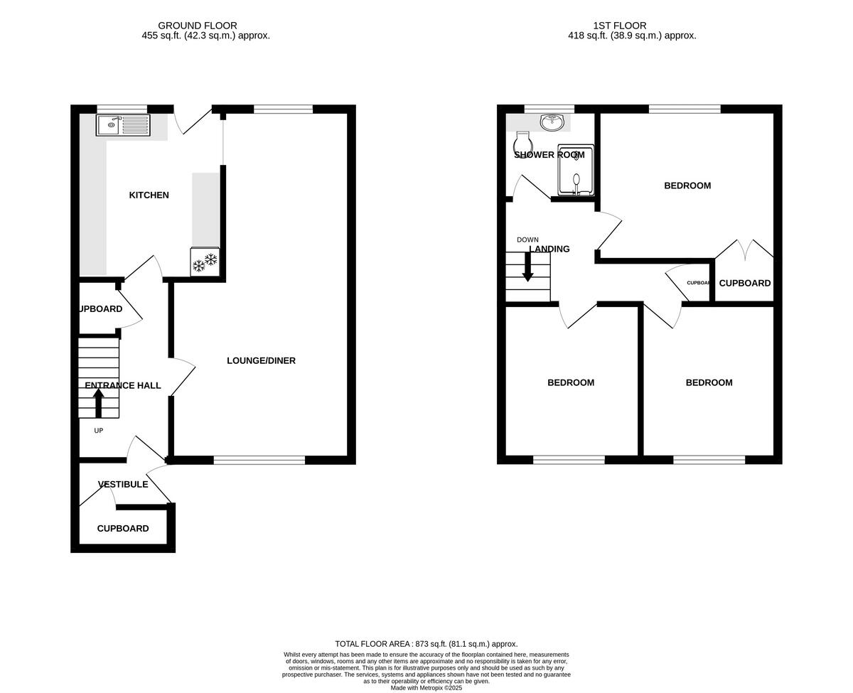
Well-presented, 3 bedroom end terrace villa in a popular residential location close to amenties. With spacious lounge-diner, kitchen, modern shower room and 3 double bedrooms. Enclosed rear garden and off street parking. Early viewings advised
Property Oracle says ..
Therefore, we give this property 7 / 10. *Disclaimer: This is our option and does constitute a recommendation or financial advice. Do your own research. *
- Price
- 8
- Condition
- 7
- Location
- 7
- Land
- 6
- Bedrooms
- 3
- Bathrooms
- 1
- Sqft (est)
- 873.00
The heatmap indicates the level of crime in the area. The color of the heatmap indicates the crime severity and recency.
Metrics Year-on-Year
- Average area value
- 591,667.00 £Increased by 9.11 %
- Est sale value
- 251,424.00 £Decreased by 44.40 %
- Average area rental value
- 2,375.00 £/moIncreased by 124.69 %
- Est letting value
- 873.00 £/moUnchanged by 0.00 %
- Est rental Yield
- 4.82 %Increased by 105.98 %
- Crime Rate
- 0.00 %
from 542,283.00 £
from 452,214.00 £
from 1,057.00 £/mo
from 873.00 £/mo
from 2.34 %
from 0.00 %
Agent Activity
Hoppers Estate Agency created the listing.
Images
Nearby Streets
| Name | Average Price | Average Sqft | Distance |
|---|---|---|---|
| Carradale Drive | £ 75,000 | 0 | 0.00 KM |
| Creran Court | £ 0 | 0 | 0.00 KM |
| Lennox Drive | £ 0 | 0 | 0.00 KM |
| Ardfin Road | £ 99,998 | 0 | 0.00 KM |
| Fearnoch | £ 0 | 0 | 0.00 KM |
Nearby Transport
| Name | NLC | TLC | Distance |
|---|---|---|---|
| Prestwick Town | 9543 | PTW | 2.07 KM |
| Newton-On-Ayr | 9571 | NOA | 2.41 KM |
| Prestwick International Airport | 9544 | PRA | 2.79 KM |
| Ayr | 9463 | AYR | 3.63 KM |
| Troon | 9562 | TRN | 8.35 KM |
Nearby Listings
| Address | Price | Type | Score | Distance |
|---|---|---|---|---|
| Ardfin Road, Prestwick, KA9 | £ 150,000 | BUY | 7 / 10 | 0.00 KM |
| Carradale Drive, Prestwick, South Ayrshire, KA9 | £ 80,000 | BUY | 7 / 10 | 0.07 KM |
| 7 Creran Court, Prestwick, KA9 2LG | £ 110,000 | BUY | 7 / 10 | 0.15 KM |
| 7 Fearnoch, Prestwick, KA9 2LH | £ 135,000 | BUY | 8 / 10 | 0.16 KM |
| 64 Shilliaw Drive, Prestwick, KA9 2NE | £ 95,000 | BUY | 6 / 10 | 0.16 KM |