Hereford Road, Weymouth
By Beaumont Jones Estate Agents
£ 230,000
Reviews
3 out of 5 stars
Beaumont Jones Estate Agents says ..
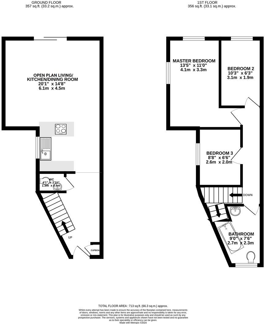
We are delighted to offer a one-off new build three bedroom end-of-terrace home within Westham which would make the perfect first time purchase. The property offers off road parking for two cars to the rear of the property, enclosed rear garden with a veranda off the living room, open-plan living...
Property Oracle says ..
This property is a 3 bedroom end of terrace house located in Weymouth, Dorset. The property has recently undergone a full renovation and is presented in excellent condition throughout. The interior is modern and bright with a contemporary kitchen and bathroom. There is a small rear garden, mainly gravelled, and a small patio area. The location is convenient, with nearby schools and transportation links. The property is listed at £230,000, which is slightly below the average price for the area, making it potentially good value for money.
Therefore, we give this property 7 / 10. *Disclaimer: This is our option and does constitute a recommendation or financial advice. Do your own research. *
- Price
- 8
- Condition
- 10
- Location
- 7
- Land
- 3
- Bedrooms
- 3
- Bathrooms
- 1
- Sqft (est)
- 713.00
The heatmap indicates the level of crime in the area. The color of the heatmap indicates the crime severity and recency.
Metrics Year-on-Year
- Average area value
- 239,444.00 £Decreased by 12.65 %
- Est sale value
- 253,115.00 £Increased by 9.23 %
- Average area rental value
- 950.00 £/moDecreased by 19.29 %
- Est letting value
- 713.00 £/moUnchanged by 0.00 %
- Est rental Yield
- 4.76 %Decreased by 7.57 %
- Crime Rate
- 16.00 %Unchanged by 0.00 %
Agent Activity
Beaumont Jones Estate Agents created the listing.
Nearby Schools
| Name | Type | Ofsted | Distance |
|---|---|---|---|
| Weymouth - Westham | Children's Centre | 0.25 KM | |
| Conifers Primary School | Community School | Requires improvement | 0.25 KM |
| The Compass | Pupil Referral Unit | Good | 0.86 KM |
| St Augustine'S Catholic Primary School, Weymouth | Academy Converter | Good | 1.08 KM |
| Beechcroft St Pauls Cofe Primary School | Academy Converter | Requires improvement | 1.23 KM |
Images
Nearby Streets
| Name | Average Price | Average Sqft | Distance |
|---|---|---|---|
| Somerset Road | £ 300,000 | 0 | 0.00 KM |
| Canterbury Close | £ 160,000 | 0 | 0.00 KM |
| Cumberland Drive | £ 0 | 0 | 0.00 KM |
| Adelaide Crescent | £ 0 | 0 | 0.00 KM |
| Warren Close | £ 0 | 0 | 0.00 KM |
Nearby Transport
| Name | NLC | TLC | Distance |
|---|---|---|---|
| Weymouth | 5965 | WEY | 2.77 KM |
| Upwey | 5967 | UPW | 4.08 KM |
Nearby Listings
| Address | Price | Type | Score | Distance |
|---|---|---|---|---|
| Hereford Road, Weymouth | £ 230,000 | BUY | 7 / 10 | 0.00 KM |
| Hereford Road, Weymouth | £ 220,000 | BUY | 7 / 10 | 0.00 KM |
| Bedford Road, Weymouth | £ 210,000 | BUY | 6 / 10 | 0.05 KM |
| Hereford Road, Weymouth, DT4 0 | £ 95,000 | BUY | 6 / 10 | 0.07 KM |
| Hereford Road, Weymouth, DT4 | £ 100,000 | BUY | 6 / 10 | 0.10 KM |
Nearby Properties
| Address | Price | Distance |
|---|---|---|
| 118 Bedford Road | £ 155,000 | 0.05 KM |
| 104 Bedford Road | £ 195,000 | 0.05 KM |
| 61 Bedford Road | £ 120,000 | 0.05 KM |
| 114 Bedford Road | £ 144,500 | 0.06 KM |
| 110 Bedford Road | £ 160,000 | 0.06 KM |