Heywood Lane, Tenby, Pembrokeshire, SA70
JO

Heywood Lane, Tenby, Pembrokeshire, SA70

By John Francis

£ 625,000

Reviews

4 out of 5 stars

John Francis says ..

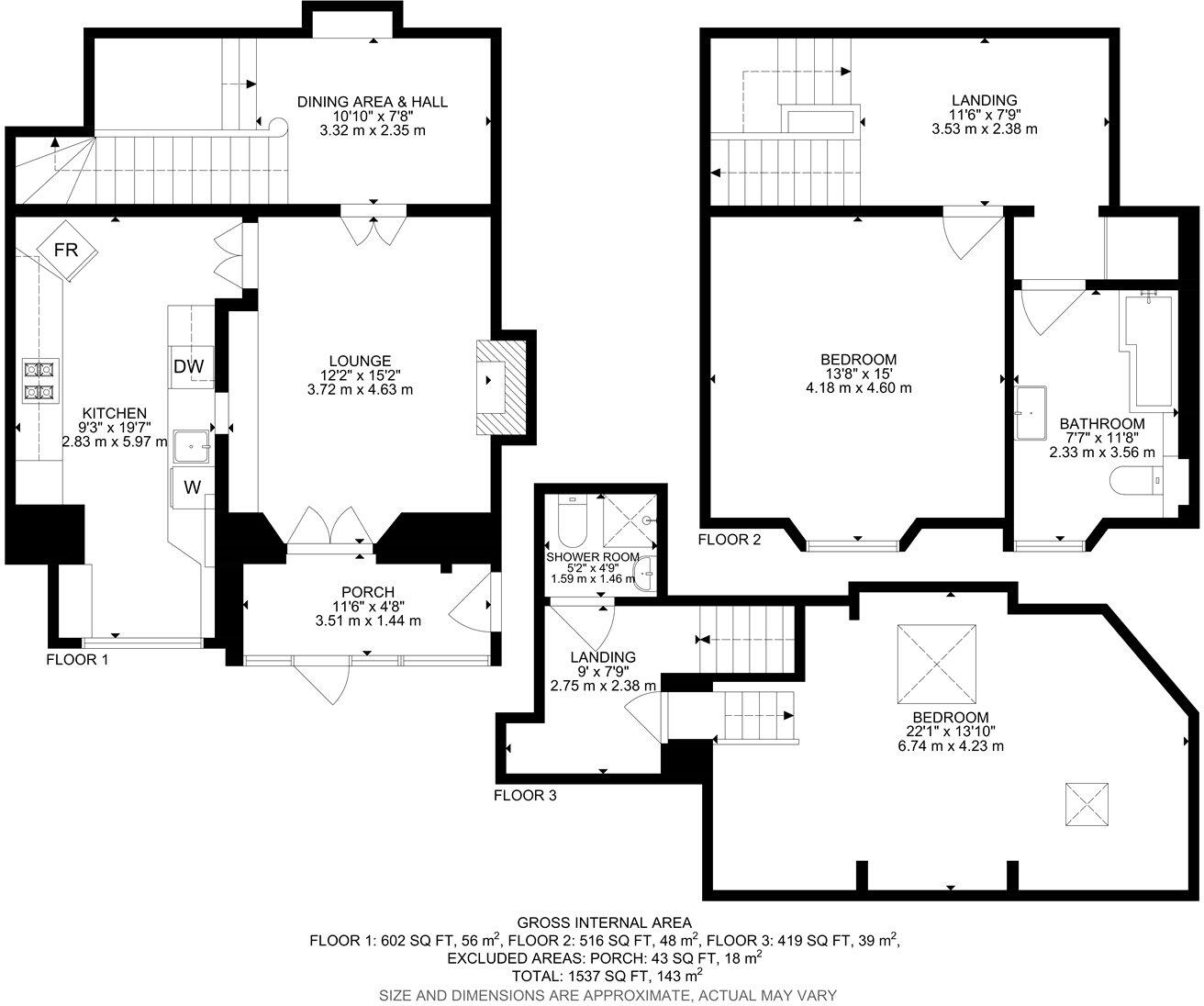
***CHARMING VICTORIAN HOUSE PLUS COTTAGE*** A stunning, immaculately presented Victorian house built in 1848 and paired with a delightful cottage, nestled in a desirable location within walking distance to the popular seaside resort of Tenby. The main house boasts many attractive character featur...

Property Oracle says ..

Rosemount House is a well-presented property in a desirable location. The condition is excellent, and the property benefits from a garden. However, further analysis is required to determine if the list price is justified given the size of the property compared to the local average. More information on the plot size would help to refine this assessment.

Therefore, we give this property 8 / 10. *Disclaimer: This is our option and does constitute a recommendation or financial advice. Do your own research. *

Price
7
Condition
9
Location
9
Land
7
Bedrooms
4
Bathrooms
3
Sqft (est)
1,396.51

The heatmap indicates the level of crime in the area. The color of the heatmap indicates the crime severity and recency.

Metrics Year-on-Year

Average area value
467,663.00 £
Increased by 74.51 %
from 267,988.00 £
Est sale value
596,309.77 £
Decreased by 14.26 %
from 695,461.98 £
Average area rental value
1,138.00 £/mo
Increased by 56.97 %
from 725.00 £/mo
Est letting value
1,396.51 £/mo
Unchanged by 0.00 %
from 1,396.51 £/mo
Est rental Yield
2.92 %
Decreased by 10.15 %
from 3.25 %
Crime Rate
8.00 %
Unchanged by 0.00 %
from 8.00 %

Agent Activity

  • John Francis created the listing.

Nearby Schools

NameTypeOfstedDistance
The Greenhill SchoolWelsh Establishment0.39 KM
St Teilos V.R.C. SchoolWelsh Establishment0.64 KM
Saundersfoot C.P. SchoolWelsh Establishment4.42 KM
Stepaside C.P. SchoolWelsh Establishment6.38 KM
St Florence V.C. SchoolWelsh Establishment7.38 KM

Images

Picture No. 53 Picture No. 24 Picture No. 25 Picture No. 26 Picture No. 27 Picture No. 28 Picture No. 29 Picture No. 30 Picture No. 31 Picture No. 32 Picture No. 33 Picture No. 34 Picture No. 35 Picture No. 36 Picture No. 37 Picture No. 38 Picture No. 39 Picture No. 40 Picture No. 41 Picture No. 42 Picture No. 43 Picture No. 44 Picture No. 45 Picture No. 46 Picture No. 47 Picture No. 48 Picture No. 49 Picture No. 50 Picture No. 51 Picture No. 52 Picture No. 54 Picture No. 55 Picture No. 56 Picture No. 57 Picture No. 58 Picture No. 59 Picture No. 60 Picture No. 61 Picture No. 62 Picture No. 63 Picture No. 64 Picture No. 65

Nearby Streets

NameAverage PriceAverage SqftDistance
Rosemount Gardens £ 000.00 KM
The Paddock £ 275,00000.00 KM
Glen View Crescent £ 000.00 KM
Mayfield Drive £ 000.00 KM
Queensfield £ 000.00 KM

Nearby Transport

NameNLCTLCDistance
Tenby4110TEN0.47 KM
Penally4129PNA2.21 KM
Saundersfoot4108SDF5.26 KM
Kilgetty4083KGT6.35 KM
Manorbier4094MRB9.16 KM

Nearby Listings

AddressPriceTypeScoreDistance
Heywood Lane, Tenby, Pembrokeshire, SA70 £ 625,000BUY8 / 100.00 KM
Llain-Y-Delyn, 1 Rosemount Gardens, Tenby £ 319,995BUY5 / 100.08 KM
Llain Y Delyn, 1 Rosemount Gardens, Tenby £ 319,850BUYUnknown0.08 KM
Heywood Lane, Tenby, Pembrokeshire, SA70 £ 525,000BUY6 / 100.11 KM
St Mary's Hill, Tenby, SA70 £ 315,000BUY6 / 100.12 KM

Nearby Properties

AddressPriceDistance
Hill Cottage £ 375,0000.12 KM
The Gables £ 250,0000.12 KM
Gable End £ 335,0000.12 KM
Alster £ 430,0000.14 KM
Froyle £ 461,0000.14 KM