Goodfellows says ..
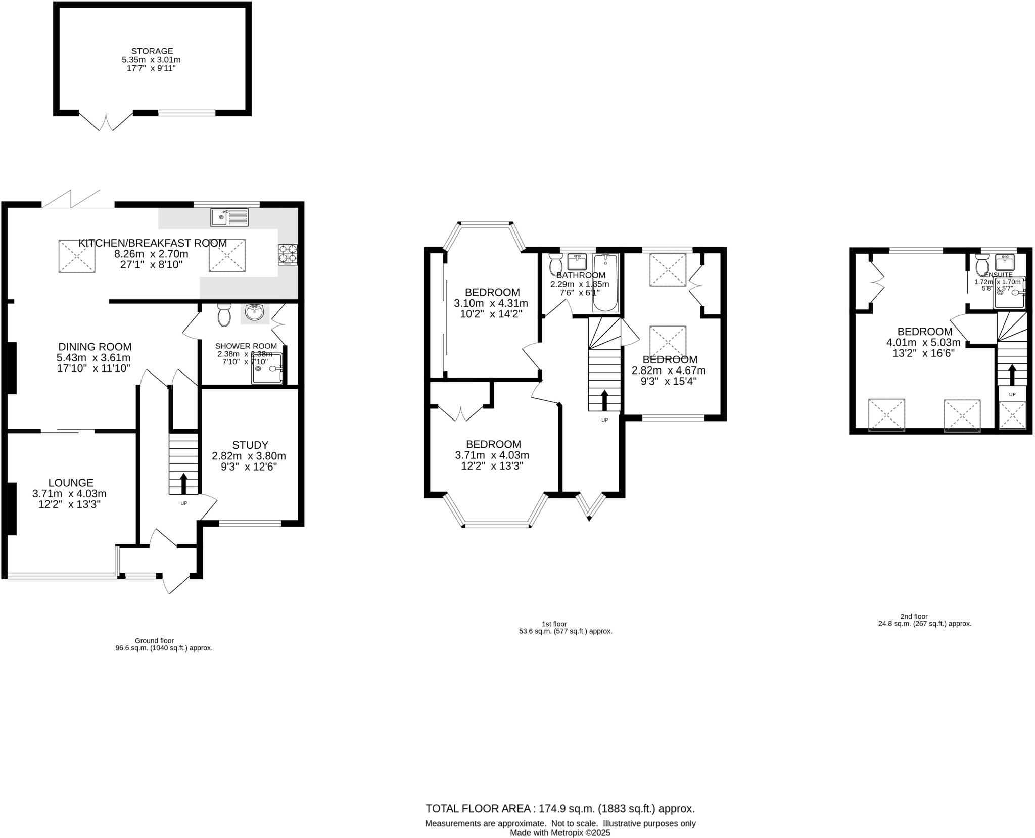
A chance to acquire a stunning, extremely well presented semi detached family home, with living space in excess of 1800 sqft. This house needs to be seen to appreciate the high quality finish, with a bold colour scheme to be noted throughout. Internally, there are three reception ro...
Property Oracle says ..
Therefore, we give this property 6 / 10. *Disclaimer: This is our option and does constitute a recommendation or financial advice. Do your own research. *
- Price
- 5
- Condition
- 8
- Location
- 7
- Land
- 7
- Bedrooms
- 4
- Bathrooms
- 3
The heatmap indicates the level of crime in the area. The color of the heatmap indicates the crime severity and recency.
Metrics Year-on-Year
- Average area value
- 575,778.00 £Increased by 14.54 %
- Average area rental value
- 2,096.00 £/moDecreased by 8.39 %
- Est rental Yield
- 4.37 %Decreased by 19.96 %
- Crime Rate
- 6.00 %Unchanged by 0.00 %
from 502,698.00 £
from 2,288.00 £/mo
from 5.46 %
from 6.00 %
Agent Activity
Goodfellows created the listing.
Nearby Schools
| Name | Type | Ofsted | Distance |
|---|---|---|---|
| Lower Morden Children'S Centre | Children's Centre Linked Site | 0.35 KM | |
| St John Fisher Rc Primary School | Voluntary Aided School | Good | 0.49 KM |
| Aragon Primary School | Academy Converter | Good | 0.51 KM |
| Hatfeild Primary School | Community School | Good | 0.71 KM |
| Green Lane Primary And Nursery School | Academy Converter | 1.36 KM |
Images
Nearby Streets
| Name | Average Price | Average Sqft | Distance |
|---|---|---|---|
| Coniston Close | £ 383,929 | 0 | 0.00 KM |
| Essex Close | £ 0 | 0 | 0.00 KM |
| Pig Farm Alley | £ 0 | 0 | 0.00 KM |
| St. Catherine's Close | £ 332,849 | 0 | 0.00 KM |
| Parkway | £ 950,000 | 0 | 0.00 KM |
Nearby Transport
| Name | NLC | TLC | Distance |
|---|---|---|---|
| Motspur Park | 5645 | MOT | 1.77 KM |
| Raynes Park | 5569 | RAY | 2.17 KM |
| Wimbledon Chase | 5612 | WBO | 2.38 KM |
| South Merton | 5292 | SMO | 2.51 KM |
| Worcester Park | 5579 | WCP | 2.55 KM |
Nearby Listings
| Address | Price | Type | Score | Distance |
|---|---|---|---|---|
| Carlingford Road, Morden, SM4 | £ 850,000 | BUY | 6 / 10 | 0.00 KM |
| Lower Morden Lane, Morden, SM4 | £ 500,000 | BUY | 6 / 10 | 0.04 KM |
| Lower Morden Lane, Morden, SM4 | £ 699,000 | BUY | 7 / 10 | 0.04 KM |
| Carlingford Road, Morden, SM4 | £ 575,000 | BUY | 6 / 10 | 0.06 KM |
| Buttermere Close, London, SM4 | £ 230,000 | BUY | Unknown | 0.10 KM |
Nearby Properties
| Address | Price | Distance |
|---|---|---|
| 61 Buttermere Close | £ 360,000 | 0.10 KM |
| 59 Buttermere Close | £ 376,000 | 0.10 KM |
| 14 Buttermere Close | £ 335,000 | 0.10 KM |
| 4 Buttermere Close | £ 418,000 | 0.10 KM |
| 11 Buttermere Close | £ 153,000 | 0.10 KM |