D
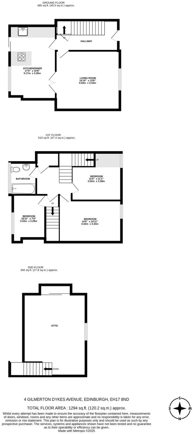
4 Gilmerton Dykes Avenue, Gilmerton, Edinburgh, EH17
By D J Alexander
£ 200,000
Reviews
3 out of 5 stars
D J Alexander says ..
Well-proportioned three-bedroom mid-terraced house located in the popular residential area of Gilmerton, approximately five miles to the southeast of the city centre.
Property Oracle says ..
Therefore, we give this property 6 / 10. *Disclaimer: This is our option and does constitute a recommendation or financial advice. Do your own research. *
- Price
- 8
- Condition
- 6
- Location
- 6
- Land
- 7
- Bedrooms
- 3
- Bathrooms
- 1
- Sqft (est)
- 752.51
The heatmap indicates the level of crime in the area. The color of the heatmap indicates the crime severity and recency.
Metrics Year-on-Year
- Average area value
- 300,499.00 £Decreased by 1.04 %
- Est sale value
- 277,676.19 £Increased by 38.20 %
- Average area rental value
- 1,368.00 £/moDecreased by 2.29 %
- Est letting value
- 752.51 £/moUnchanged by 0.00 %
- Est rental Yield
- 5.46 %Decreased by 1.27 %
- Crime Rate
- 0.00 %
from 303,666.00 £
from 200,920.17 £
from 1,400.00 £/mo
from 752.51 £/mo
from 5.53 %
from 0.00 %
Agent Activity
D J Alexander created the listing.
Images
Nearby Streets
| Name | Average Price | Average Sqft | Distance |
|---|---|---|---|
| Lasswade Bank | £ 0 | 0 | 0.00 KM |
| Keggie Place | £ 0 | 0 | 0.00 KM |
| Hyvot Green | £ 172,500 | 0 | 0.00 KM |
| Hyvot Loan | £ 175,000 | 0 | 0.00 KM |
| Combe Road | £ 0 | 0 | 0.00 KM |
Nearby Transport
| Name | NLC | TLC | Distance |
|---|---|---|---|
| Brunstane | 8807 | BSU | 6.62 KM |
| Newcraighall | 8808 | NEW | 6.91 KM |
| Eskbank | 3776 | EKB | 7.24 KM |
| Edinburgh | 9328 | EDB | 7.32 KM |
| Shawfair | 6963 | SFI | 7.61 KM |
Nearby Listings
| Address | Price | Type | Score | Distance |
|---|---|---|---|---|
| 4 Gilmerton Dykes Avenue, Gilmerton, Edinburgh, EH17 | £ 200,000 | BUY | 6 / 10 | 0.00 KM |
| 273 Lasswade Road, Gilmerton, Edinburgh, EH17 8NA | £ 190,000 | BUY | 7 / 10 | 0.14 KM |
| Gilmerton Dykes Avenue, Edinburgh | £ 155,000 | BUY | 6 / 10 | 0.18 KM |
| 100 The Murrays Brae, Liberton, Edinburgh, EH17 8UG | £ 195,000 | BUY | 6 / 10 | 0.26 KM |
| 54 Gilmerton Dykes Drive, Gilmerton, Edinburgh, EH17 8LF | £ 195,000 | BUY | 6 / 10 | 0.28 KM |