Gowda Way, Glossop, Derbyshire, SK13
By Redwing
£ 213,750
Reviews
3 out of 5 stars
Redwing says ..
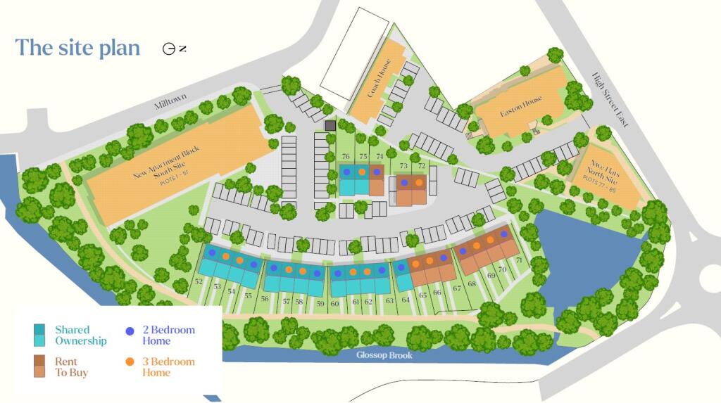
Thoughtfully designed, affordable homes in the heart of Glossop. The Development Weirbrook is a beautiful new development of 25 2-and-3-bedroom homes in one of Derbyshire?s most characterful locations. Nestled beside a gently flowing brook and and surrounded by natur...
Property Oracle says ..
This is a modern terraced property in Howard Town, Glossop. The property is in excellent condition and benefits from its proximity to local amenities and transportation links. The property is smaller than average for the area, which is reflected in the price. The Duke Of Norfolk Cofe Primary School is nearby, but has a ‘Requires improvement’ Ofsted rating. The property has limited land.
Therefore, we give this property 6 / 10. *Disclaimer: This is our option and does constitute a recommendation or financial advice. Do your own research. *
- Price
- 7
- Condition
- 9
- Location
- 7
- Land
- 3
- Bedrooms
- 2
- Bathrooms
- 2
- Sqft (est)
- 440.00
The heatmap indicates the level of crime in the area. The color of the heatmap indicates the crime severity and recency.
Metrics Year-on-Year
- Average area value
- 207,155.00 £Decreased by 4.75 %
- Est sale value
- 116,160.00 £Increased by 0.76 %
- Average area rental value
- 960.00 £/moIncreased by 7.14 %
- Est letting value
- 440.00 £/moUnchanged by 0.00 %
- Est rental Yield
- 5.56 %Increased by 12.55 %
- Crime Rate
- 11.00 %Unchanged by 0.00 %
Agent Activity
Redwing created the listing.
Nearby Schools
| Name | Type | Ofsted | Distance |
|---|---|---|---|
| Duke Of Norfolk Cofe Primary School | Voluntary Controlled School | Requires improvement | 0.21 KM |
| St Mary'S Catholic Voluntary Academy | Academy Sponsor Led | 0.59 KM | |
| All Saints Catholic Voluntary Academy | Academy Converter | 0.76 KM | |
| Glossop Children'S Centre | Children's Centre | 0.93 KM | |
| St Luke'S Cofe Primary School | Voluntary Controlled School | Good | 1.36 KM |
Images
Nearby Streets
| Name | Average Price | Average Sqft | Distance |
|---|---|---|---|
| Corn Street | £ 0 | 0 | 0.00 KM |
| Gladstone Close | £ 0 | 0 | 0.00 KM |
| Uplands Roads | £ 0 | 0 | 0.00 KM |
| Uplands Road | £ 0 | 0 | 0.00 KM |
| Nursery Close | £ 147,667 | 0 | 0.00 KM |
Nearby Transport
| Name | NLC | TLC | Distance |
|---|---|---|---|
| Glossop | 2895 | GLO | 0.55 KM |
| Dinting | 2893 | DTG | 2.96 KM |
| Hadfield | 2896 | HDF | 3.00 KM |
| Broadbottom | 2892 | BDB | 8.01 KM |
Nearby Listings
| Address | Price | Type | Score | Distance |
|---|---|---|---|---|
| Gowda Way, Glossop, Derbyshire, SK13 | £ 124,000 | BUY | 6 / 10 | 0.00 KM |
| Gowda Way, Glossop, Derbyshire, SK13 | £ 213,750 | BUY | 6 / 10 | 0.00 KM |
| Gowda Way, Glossop, Derbyshire, SK13 | £ 199,500 | BUY | 6 / 10 | 0.00 KM |
| Gowda Way, Glossop, Derbyshire, SK13 | £ 232,500 | BUY | 6 / 10 | 0.00 KM |
| Mill Street, Glossop, SK13 | £ 200,000 | BUY | 5 / 10 | 0.12 KM |
Nearby Properties
| Address | Price | Distance |
|---|---|---|
| 42 High Street East | £ 69,000 | 0.01 KM |
| 44 High Street East | £ 91,000 | 0.01 KM |
| 109 High Street East | £ 225,000 | 0.01 KM |
| 72 High Street East | £ 73,000 | 0.01 KM |
| 87 High Street East | £ 96,000 | 0.01 KM |